Description
Regenerated Residential Complex in Lomas de Cabo Roig – Renovated Apartments
Apartments in a Prime Location
Discover this exclusive opportunity to own a renovated apartment in Lomas de Cabo Roig, a sought-after area in Orihuela Costa. This residential complex, originally built in 2008, is undergoing a renovation of some units and will be delivered in June 2025. A show home is available for viewing, allowing you to see the quality finishes firsthand.
Property Options to Suit Every Need
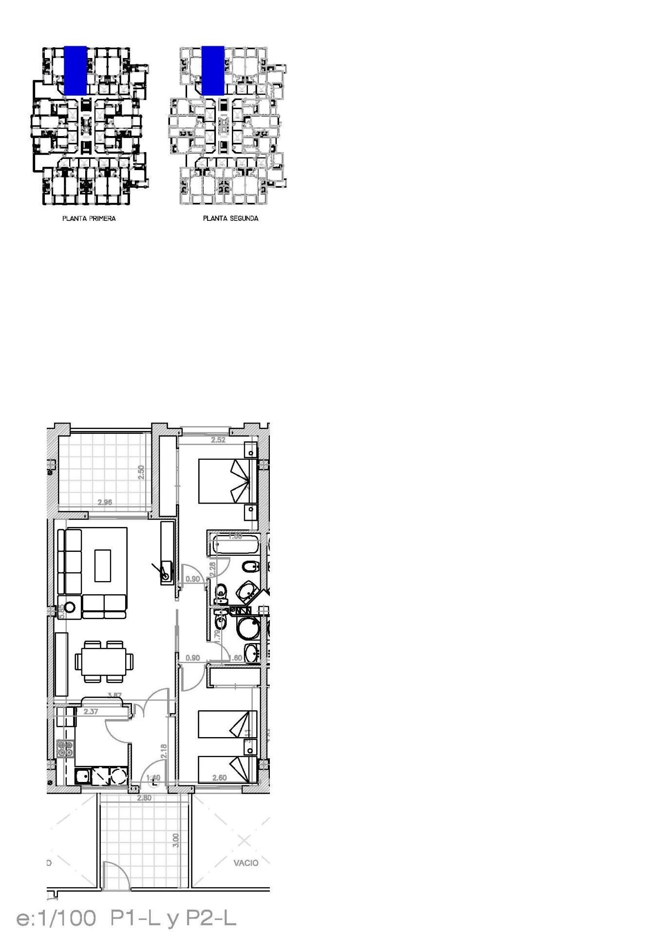
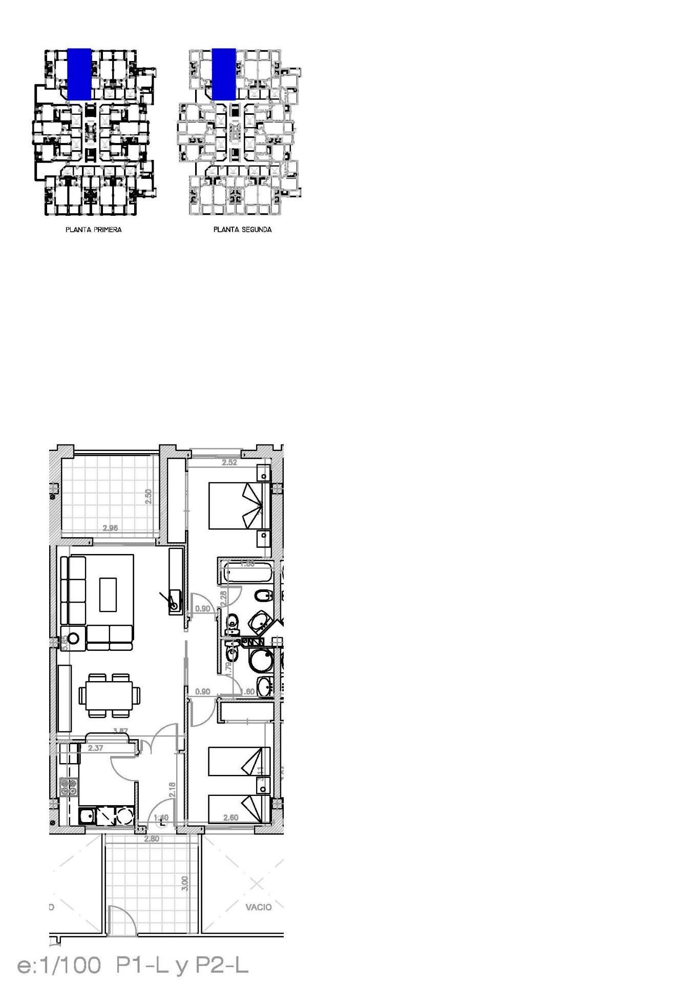
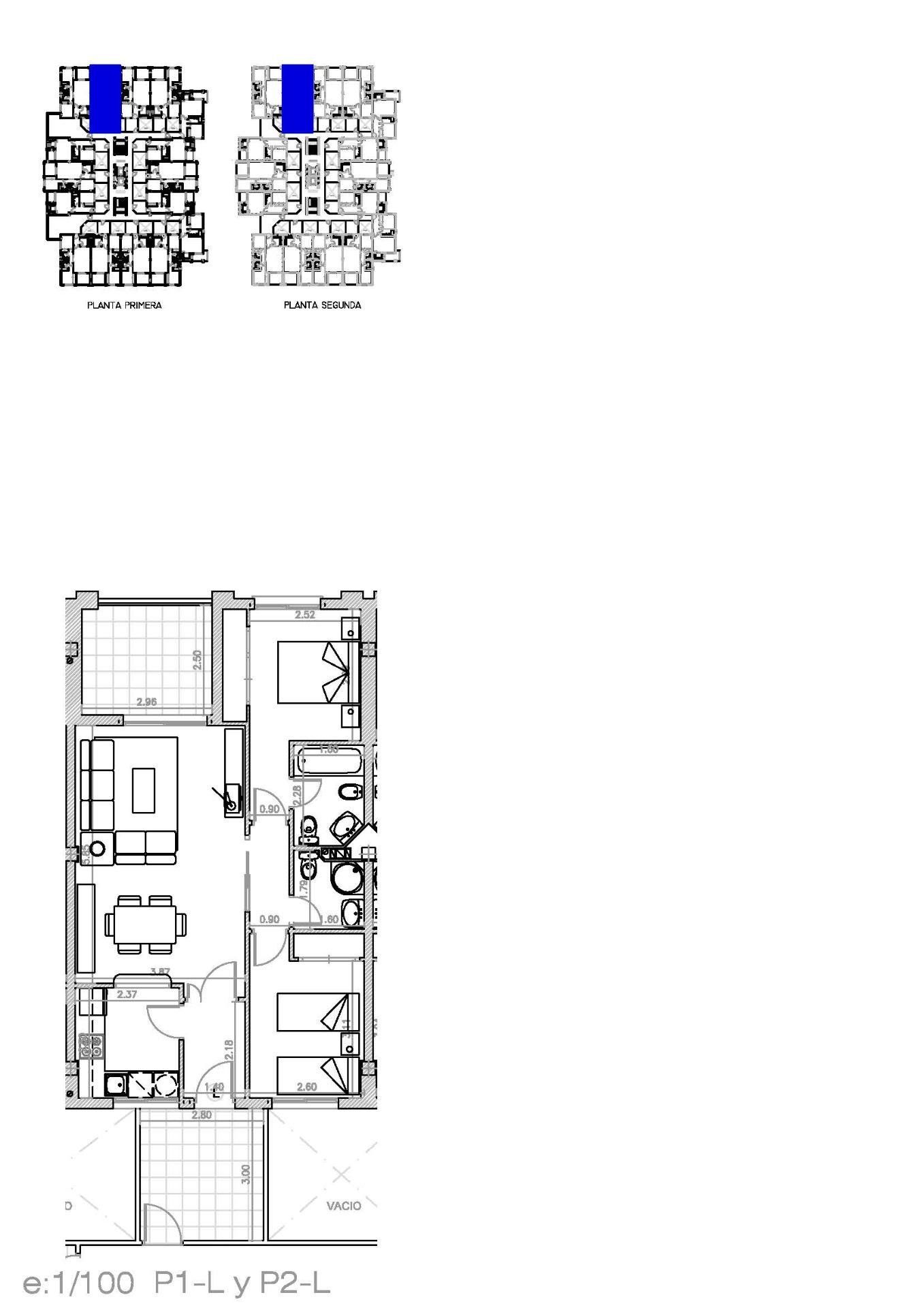
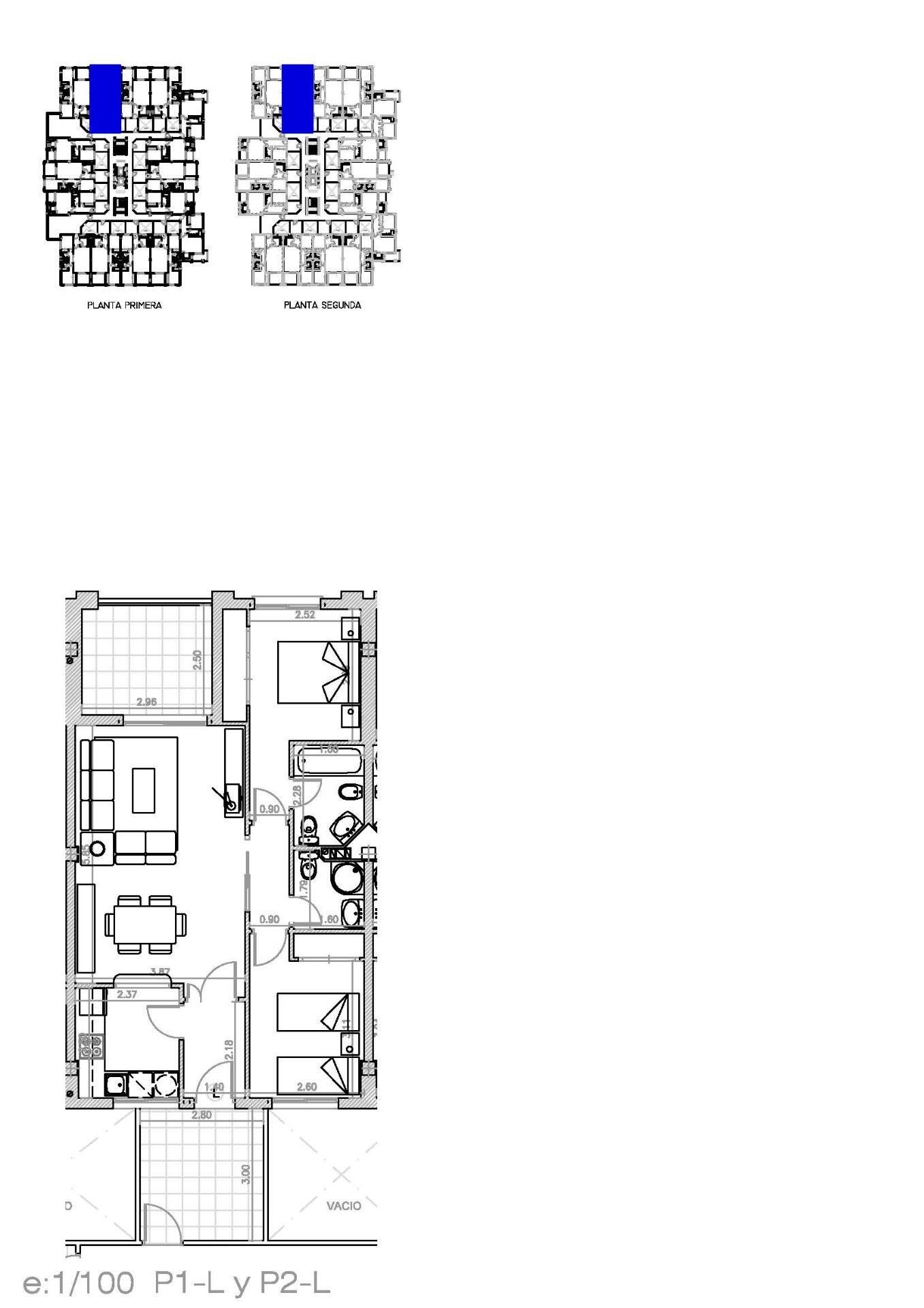
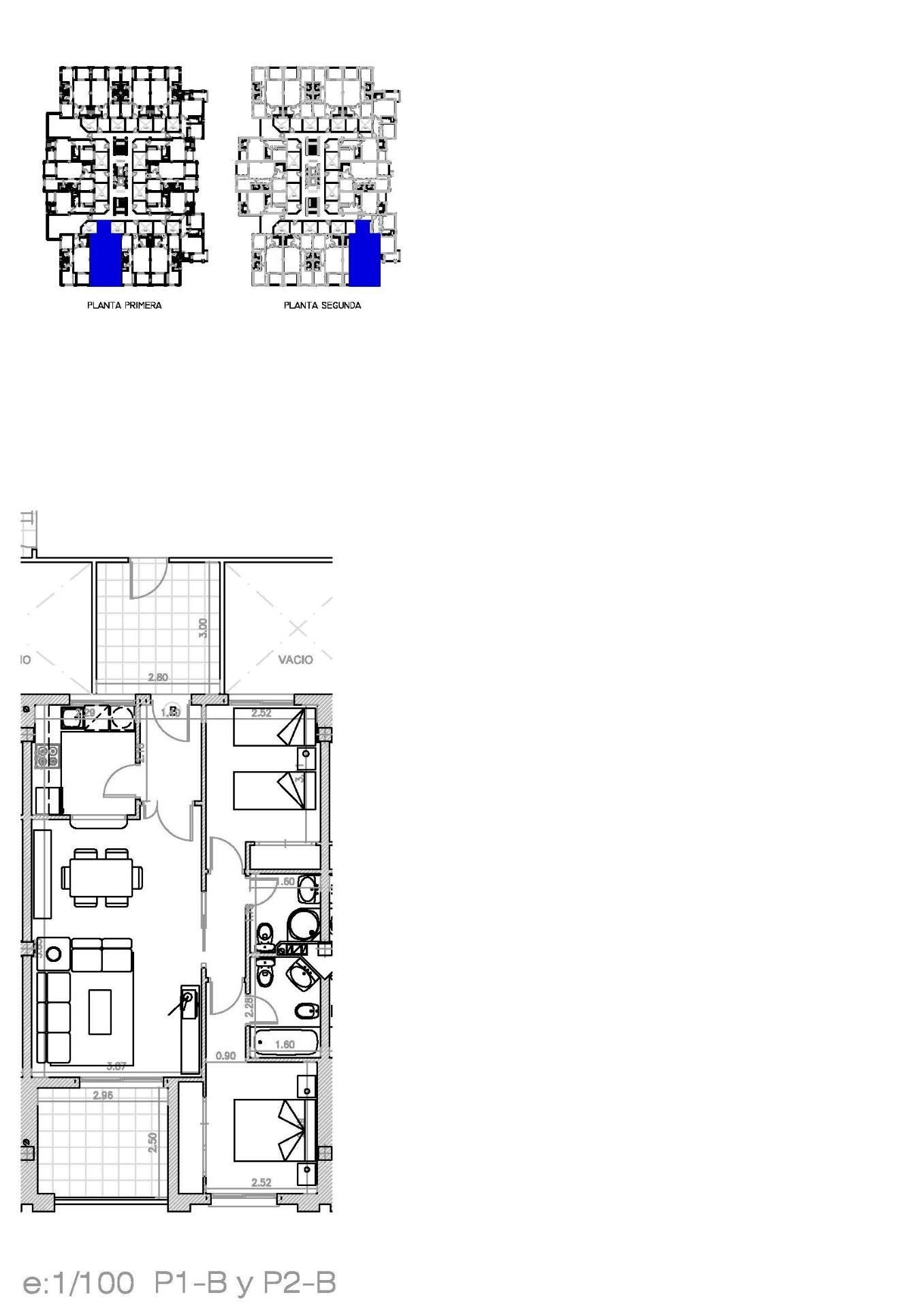
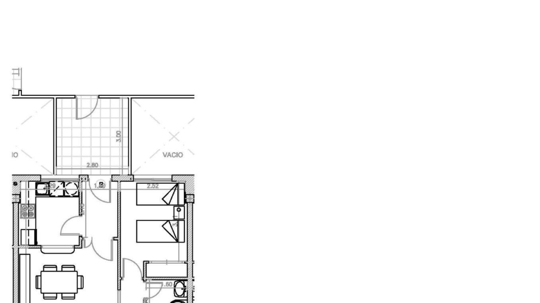
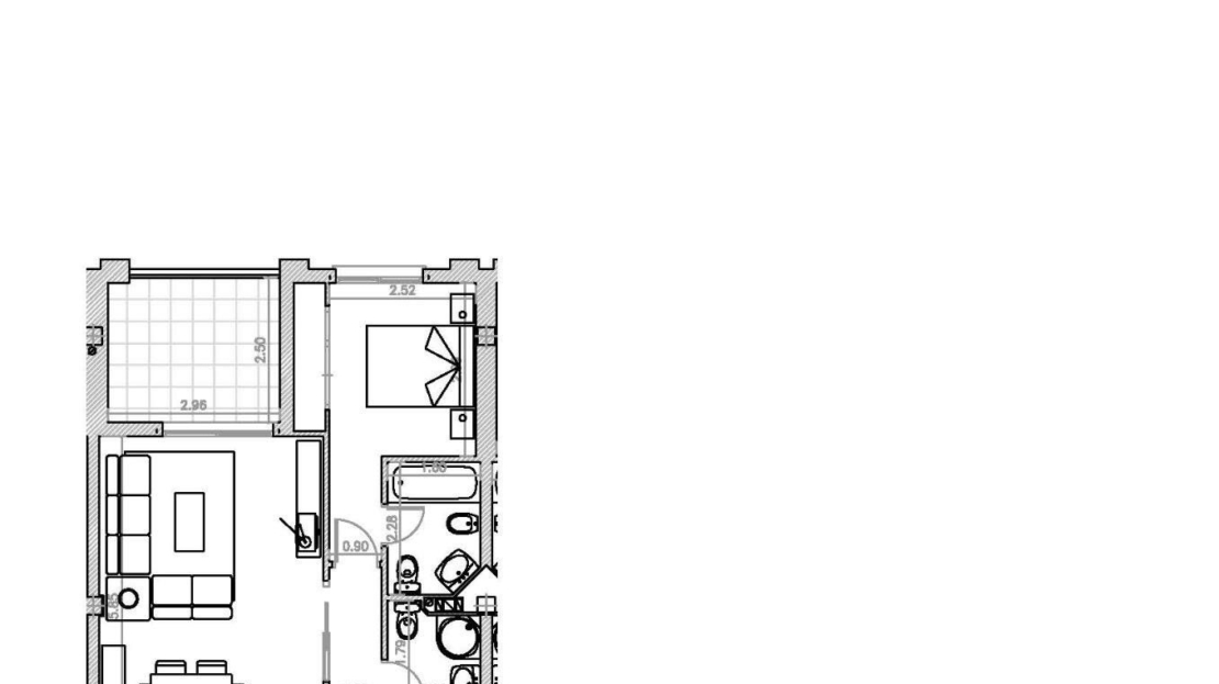
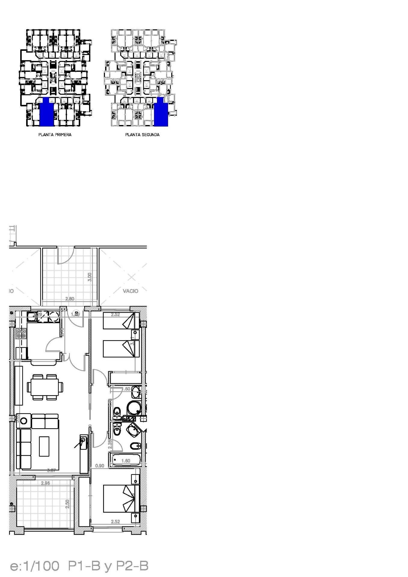
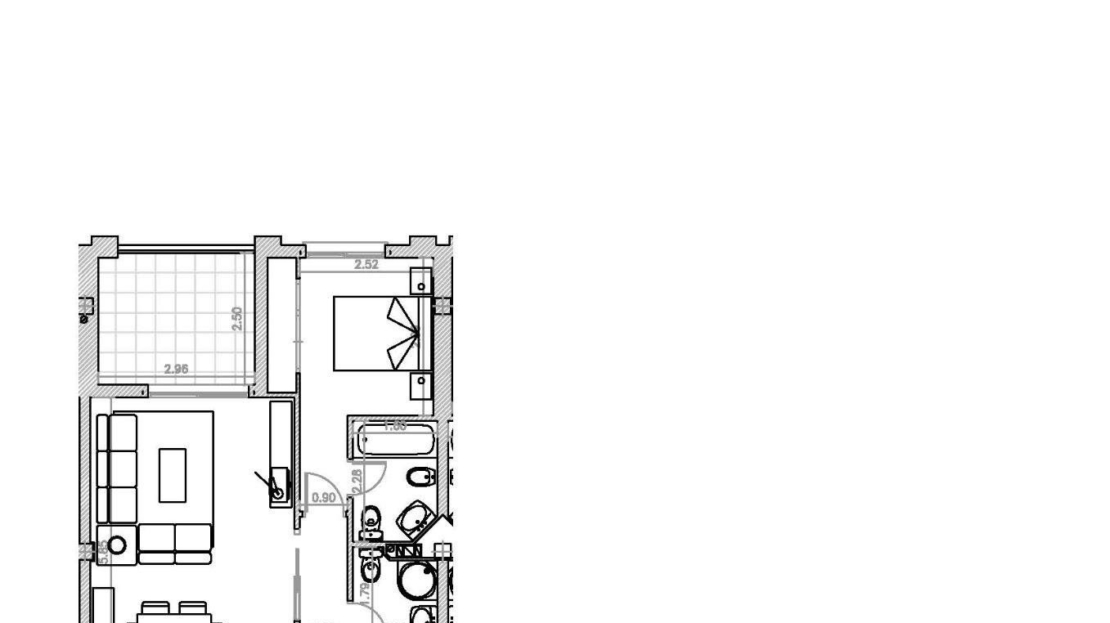
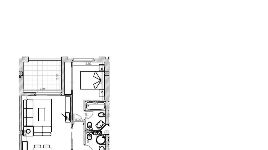
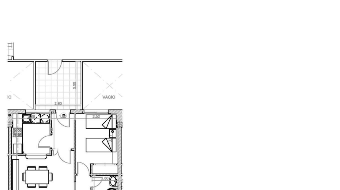
This development offers 27 refurbished apartments, with a variety of layouts:
1 and 2-bedroom units, ideal for holiday homes or investment.
Ground-floor apartments with private gardens, perfect for outdoor living.
Middle-floor apartments with spacious terraces, ideal for enjoying the Mediterranean climate.
Penthouses with private solariums, offering open views and maximum privacy.
Each home is delivered with shower screens in the bathrooms and fully equipped kitchens with appliances, ensuring a turnkey solution for buyers.
Exclusive Community Amenities
The residential complex is designed for comfort and relaxation, featuring:
A communal swimming pool surrounded by beautiful landscaped gardens.
An elevator for easy access to all floors.
Optional underground parking spaces available at an additional cost.
An Unbeatable Location in Orihuela Costa
Lomas de Cabo Roig is a prestigious residential area located just 2 km from the coastline of Cabo Roig, home to some of the most beautiful beaches in Orihuela Costa. The area is well-connected by road and offers a wide range of services, including shops, restaurants, supermarkets, and shopping centers.
Distances to key points of interest:
Beaches of Cabo Roig and Campoamor – 5-minute drive.
Zenia Boulevard Shopping Center – 5 km.
Villamartín Golf Course – 4 km.
Alicante Airport – 30 minutes by car.
Murcia-Corvera Airport – 1 hour by car.
A Smart Investment in the Costa Blanca
With its excellent location, fully renovated apartments, and top-tier amenities, this development is an ideal opportunity for investment, holiday living, or permanent residence. Don’t miss out on this unique chance to own a home in one of the most desirable areas of the Costa Blanca at an unbeatable price.
Contact us today for more information or to schedule a visit!







































































































































































