Description
Newly built villas located in the municipality of Aspe.
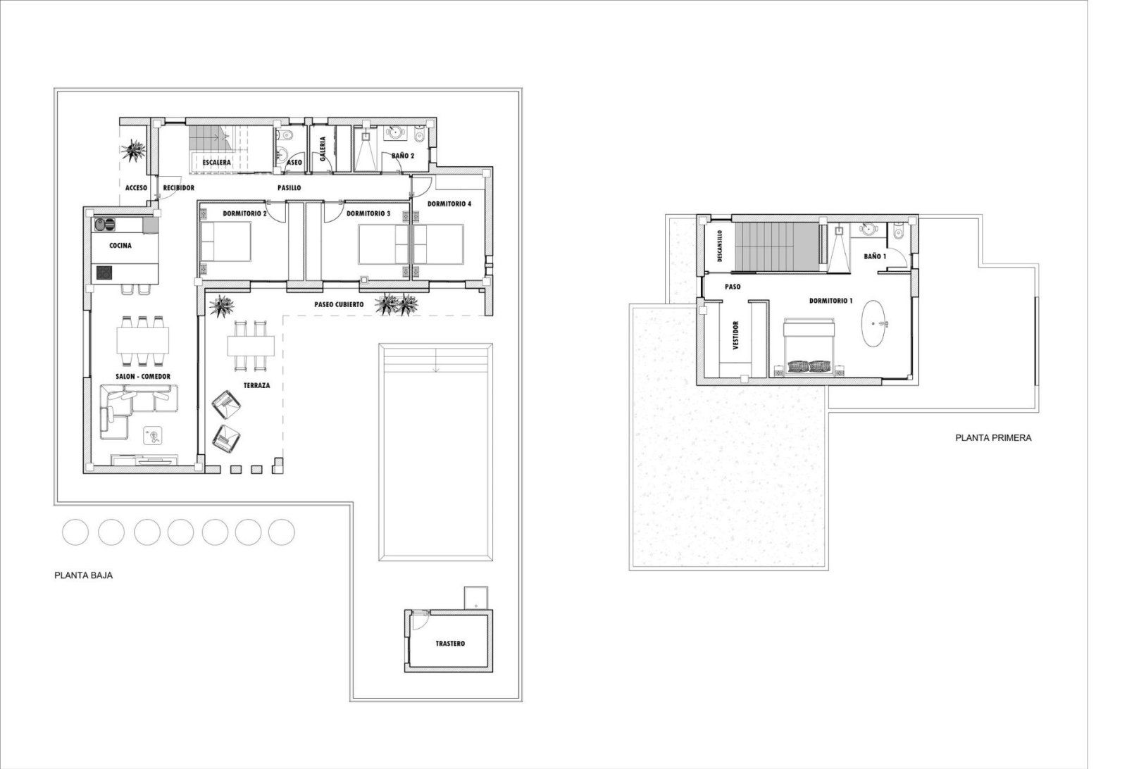
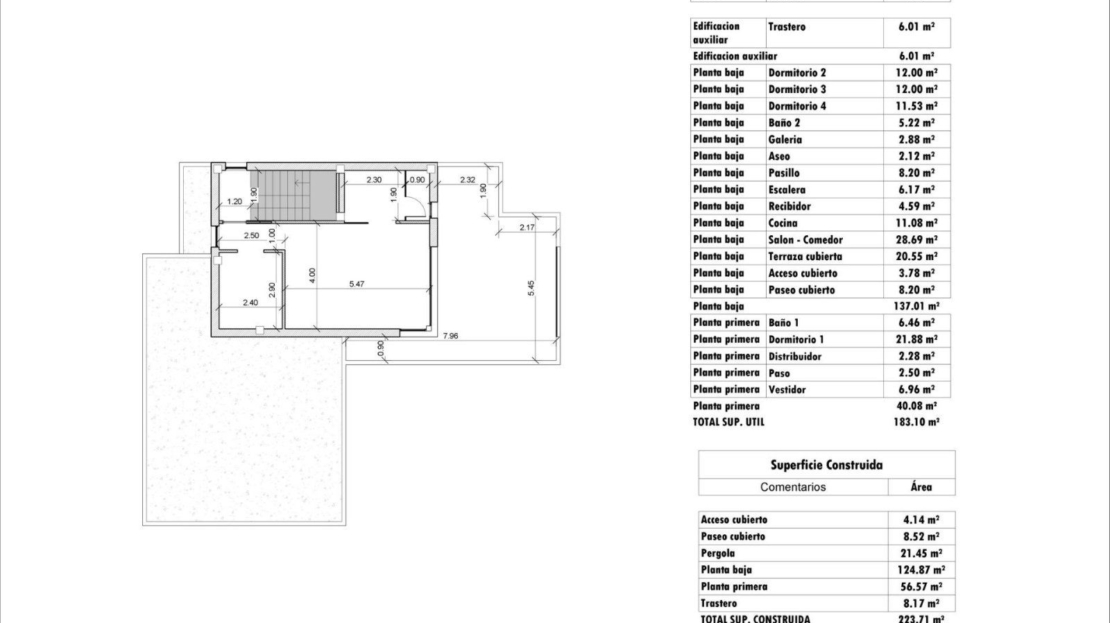
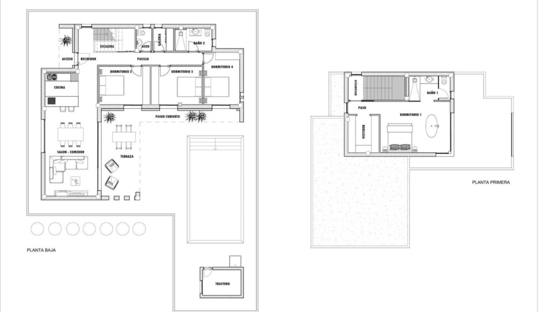
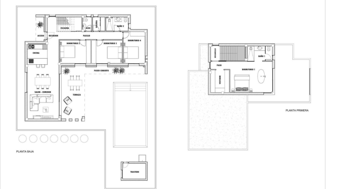
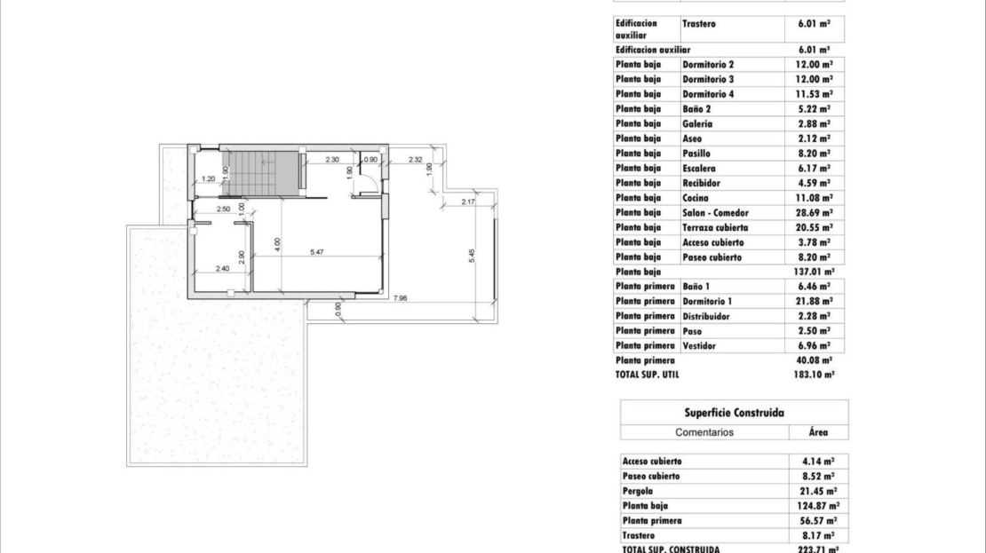
Newly built villas with several models to choose from, with 2, 3 or 4 bedrooms, on one or two floors and built with slabs or with a structure: depending on the model and the plot chosen, the exact price will be calculated.
All the villas are built on rustic plots of over 10,000 m2, of which around 2,500 m2 will be fenced off.
The villas have an open-plan kitchen with living room, built-in wardrobes, private swimming pool, porch, storage room and outdoor parking space.
There are several plots to choose from. The price is based on a plot priced at €75 000 (if another plot is chosen, the difference will be paid or credited according to the price of the plot).
Self-build project, delivery in approximately 12 months from the granting of the licence.
If you are looking for a quiet environment, close to typical Spanish villages away from tourist crowds, surrounded by mountains, with a very large plot and about 30 minutes from the sea, this is your home.
Aspe is a typical Spanish village with all the amenities for everyday life, surrounded by mountains and with several natural areas nearby where you can go hiking or mountain biking.
Located 25 km from the beach, 9 km from Elche and about 20 km from Alicante airport.











































