Description
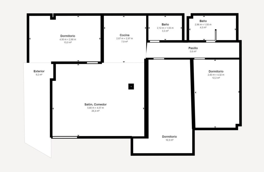
Une opportunité rare à Torrevieja – Quartier AcequionNous vous invitons à découvrir un véritable bijou immobilier dans l’un des secteurs les plus prisés de Torrevieja : le prestigieux quartier d’Acequion. Cet appartement entièrement rénové allie élégance moderne, confort absolu et emplacement de rêve.Dès l’entrée, vous serez séduit par un espace raffiné, pensé dans les moindres détails pour créer une atmosphère chaleureuse et accueillante. La distribution harmonieuse offre trois chambres spacieuses, baignées de lumière naturelle, où chaque recoin respire sérénité et confort. La suite parentale, avec sa vue privilégiée sur la Méditerranée, promet des réveils inoubliables face à l’horizon.Les deux salles de bains, au design contemporain, sont de véritables cocons de bien-être : matériaux haut de gamme, douches spacieuses et finitions élégantes transforment chaque instant en une expérience de détente.Le cœur de la maison ? Un vaste espace salon-cuisine à concept ouvert, inondé de lumière, où convivialité et modernité se rencontrent. La cuisine, équipée d’électroménagers haut de gamme, devient l’endroit idéal pour exprimer vos talents culinaires tout en partageant des moments uniques avec vos proches.À cela s’ajoute un espace de rangement pratique ainsi qu’un balcon orienté sud-est, véritable havre de paix ensoleillé. Imaginez-vous savourant un café au lever du soleil ou un verre de vin au crépuscule, tout en profitant d’une vue imprenable sur la mer Méditerranée.Cet appartement est idéal si vous recherchez une résidence principale au bord de la mer ou une propriété de vacances exclusive dans l’une des zones les plus demandées de la Costa Blanca. Son agencement fonctionnel, ses vues magnifiques, son orientation sud-est ainsi que sa proximité immédiate de la plage et du centre de Torrevieja en font une opportunité unique. Chaque détail a été soigneusement pensé pour que votre quotidien soit confortable, agréable et empreint de qualité de vie.Cet appartement n’est pas seulement une propriété, c’est un style de vie exclusif dans l’un des coins les plus recherchés de la Méditerranée.





































