Description
Nybyggede villaer på store rustikke tomter i Pinoso, Alicante
Rolig middelhavsliv i hjertet av naturen
Oppdag dette eksklusive prosjektet med nybyggede villaer i Pinoso, en sjarmerende landsby i provinsen Alicante, kjent for sin tradisjonelle spanske karakter, vakre fjellandskap og rolige omgivelser. Disse villaene er perfekte for deg som ønsker privatliv og plass. De er bygget på rustikke tomter på over 10 000 m2 og tilbyr den perfekte kombinasjonen av moderne komfort og livet på landet, bare 45 km fra kysten.
Tilpassbare villaer med flere planløsningsalternativer
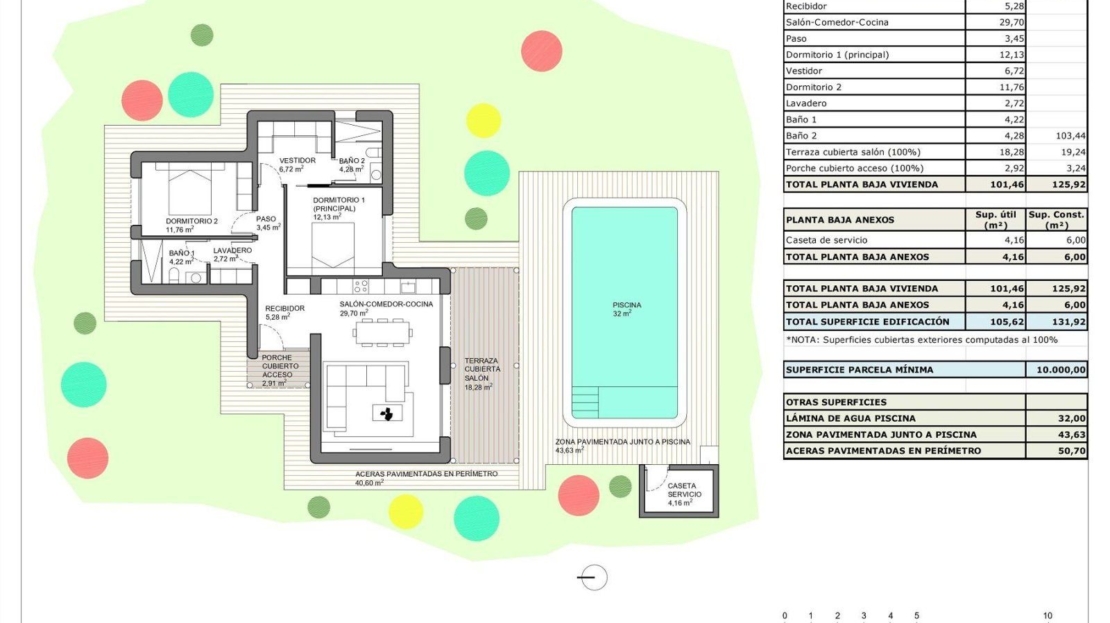
Velg mellom flere villaer med 2, 3 eller 4 soverom og 2 bad (det ene en suite), alle designet i ett plan for å tilby maksimal komfort. Den endelige prisen beregnes ut fra valgt design, byggesystem (betongplate eller struktur) og valgt tomt. For denne annonsen er det lagt til grunn en tomt til en pris av 73 000 euro. Hvis du velger en annen tomt, må du betale differansen ut fra prisen på den valgte tomten.
Hver villa har et stort kjøkken og stue i åpen planløsning, innebygde skap og høykvalitets finish i alle rom. De store vinduene fyller boligene med naturlig lys og gir en perfekt integrasjon mellom innendørs og utendørs områder.
Eksepsjonelle uteområder med privat svømmebasseng
Hver eiendom ligger i et inngjerdet område på ca. 2500 m² innenfor en rustikk tomt på 10 000 m², noe som garanterer stor privatliv og plass. Villaene har et privat svømmebasseng på 8 x 4 m, en veranda, et bod og en privat utendørs parkeringsplass.
Nyt den rolige utsikten over landskapet og fjellene rundt mens du slapper av i bassenget eller tar imot gjester i den store hagen.
Høy kvalitet og moderne funksjoner
Hver villa er bygget etter en selvbyggingsplan med overlevering ca. 12 måneder etter godkjenning av byggetillatelsen, og er utstyrt med førsteklasses spesifikasjoner, inkludert:
Pansret inngangsdør og motorisert port for kjøretøy
Motoriserte persienner i soverommene
Fullt utstyrt kjøkken
Bad med møbler, speil og dusjvegger
Forhåndsinstallert for sentral klimaanlegg
Aerotermisk varmtvannssystem
Privilegert beliggenhet nær viktige destinasjoner
Pinoso tilbyr alle nødvendige tjenester, som butikker, restauranter, skoler og helsetjenester, samtidig som det har en avslappet og autentisk spansk atmosfære. Det er omgitt av naturparker, vingårder og turstier, ideelt for friluftsentusiaster.
Viktige avstander:
Elche: 33 km
Strendene på Costa Blanca: 45 km
Alicante flyplass: 45 km
Din perfekte landlige tilflukt i Alicante
Disse nybygde villaene i Pinoso kombinerer roen i landlivet med komforten i moderne design, noe som gjør dem ideelle for permanent opphold, ferie eller som investering.
Kontakt oss i dag for mer informasjon eller for å begynne å designe ditt drømmehus i Pinoso.















