Description
Villa moderne neuve près de la mer à Javea
Une vie méditerranéenne exclusive à Javea
Découvrez cette superbe villa contemporaine située dans l’un des quartiers les plus prisés et les plus paisibles de Javea, à seulement 800 mètres de la mer. Nichée entre les pins et à proximité des célèbres Cala de la Barraca et Cala del Portixol, cette résidence offre un cadre de vie privilégié, entouré par la nature et la beauté du littoral. Javea, située sur la Costa Blanca entre Alicante et Valence, est connue pour ses eaux cristallines, sa charmante vieille ville et son climat doux toute l’année, ce qui en fait l’une des destinations les plus prisées de la Méditerranée.
Design élégant et espaces ouverts lumineux
Conçue pour le confort et le style, cette villa présente une architecture moderne aux lignes douces, de grandes fenêtres et une intégration fluide entre l’intérieur et l’extérieur. La lumière naturelle baigne chaque recoin, créant une ambiance chaleureuse et accueillante, idéale pour vivre et recevoir.
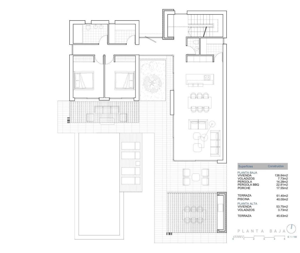
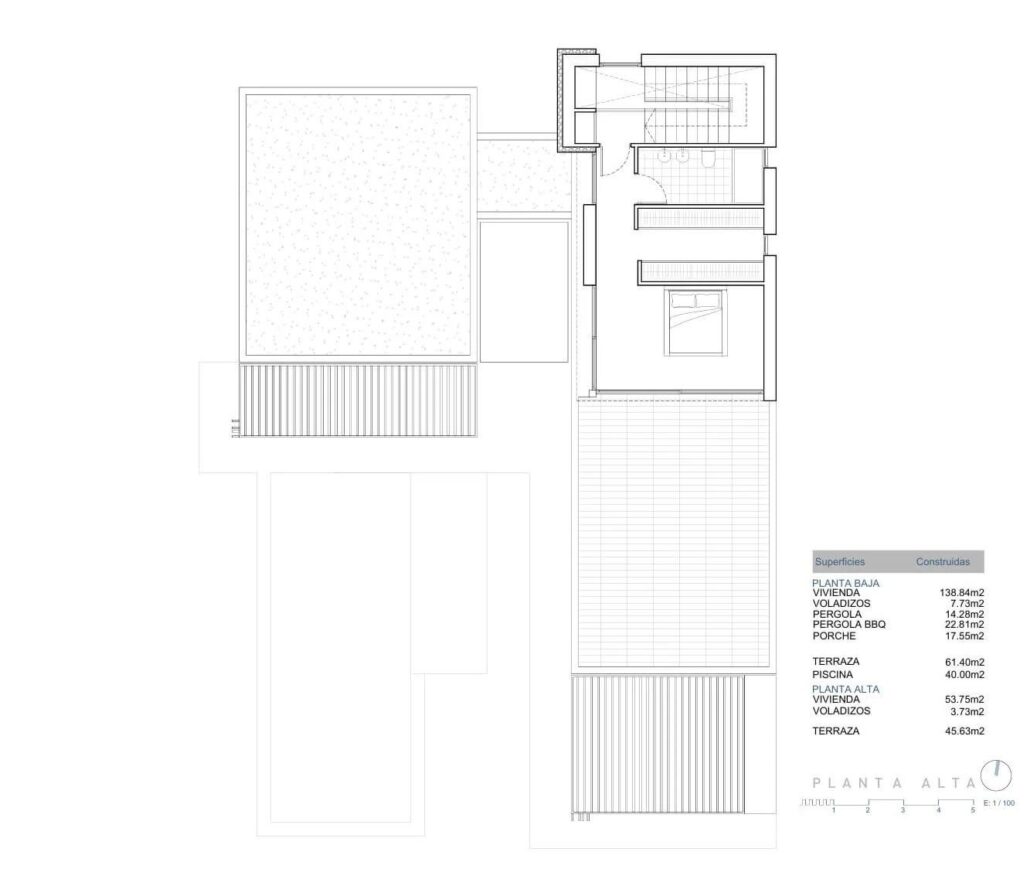
La villa est répartie sur deux étages et comprend
Un salon et une salle à manger ouverts avec accès direct aux terrasses et à la piscine
Une cuisine ouverte entièrement équipée
3 chambres et 2 salles de bains, plus 1 toilette pour invités
Une buanderie et un cellier
Un jardin privé, des terrasses et une piscine avec cuisine d’été
Suite parentale privée et style de vie en plein air
Le rez-de-chaussée comprend deux chambres, une salle de bains et de spacieux espaces de vie. À l’étage supérieur, la chambre principale offre un sanctuaire privé avec salle de bains attenante, un grand dressing et une terrasse de 45 m², parfaite pour profiter du lever du soleil et de la brise méditerranéenne. L’espace extérieur a été conçu pour la détente, avec une piscine privée, des terrasses ensoleillées et un environnement luxuriant qui garantissent tranquillité et intimité.
Emplacement privilégié sur la Costa Blanca Nord
Javea offre un style de vie exceptionnel avec de belles plages, des sentiers de randonnée, des marinas, des terrains de golf et des restaurants gastronomiques. La ville se trouve à 92 km d’Alicante et à 105 km de Valence.
Distances clés
Plage et Cala del Portixol : 0,8 km
Port et marina de Javea : 8 km
Club de golf de Javea : 10 km
Aéroport d’Alicante : 100 km
Aéroport de Valence : 125 km
Votre maison méditerranéenne vous attend
Que vous recherchiez une résidence permanente, une retraite de vacances de luxe ou un investissement haut de gamme, cette villa offre intimité, confort et un cadre côtier exceptionnel. Contactez-nous dès aujourd’hui pour obtenir plus d’informations ou pour organiser une visite de cette maison moderne exclusive à Javea.











