Beskrivelse
NØKKELFERDIG TO-BOLIG VILLA I FUENTE ALAMO, MURCIA
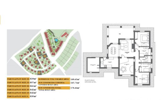
Bolig med rekkehus, uavhengige og tomannsboliger i Fuente Álamo, Murcia.
Det er syv forskjellige husmodeller å velge mellom, designet for å passe alles smak.
Rustikk design kombinert med materialer av topp kvalitet og fokus på komfortabel stue, er det noe for enhver smak.
Beboerne i dette private fellesskapet av vakre, romslige hjem vil også kunne nyte sine egne felles hager og svømmebassenger.
Denne tomannsvillaen i uvanlig design har 2 soverom og 1 bad, uavhengig kjøkken, stue med terrassedører som fører ut til den overbygde verandaen og en delvis overbygd takterrasse.
Et alternativ for et privat basseng mot en ekstra kostnad.
Fuente Álamo de Murcia er en by og kommune i regionen Murcia i Sør-Spania. Det ligger 22 km nordvest for Cartagena og 35 km sørvest for Murcia.
Byen ligger i bassenget til Mar Menor omgitt av fjellene Algarrobo, Los Gómez, Los Victorias og Carrascoy.
Vannet fra disse fjellene renner ned i Rambla de Fuente Álamo og deretter inn på Mar Menor.
Fuente Álamo ligger 30 minutter fra Murcia – Corvera flyplass.

































































