Opis
NOWY BUDYNEK MIESZKALNY W PLAYA FLAMENCA!!!
Od dobrze znanego dewelopera z dumą oferujemy to właśnie wypuszczone nowe osiedle zaledwie 500 m od morza w popularnej Playa Flamenca (Orihuela Costa).
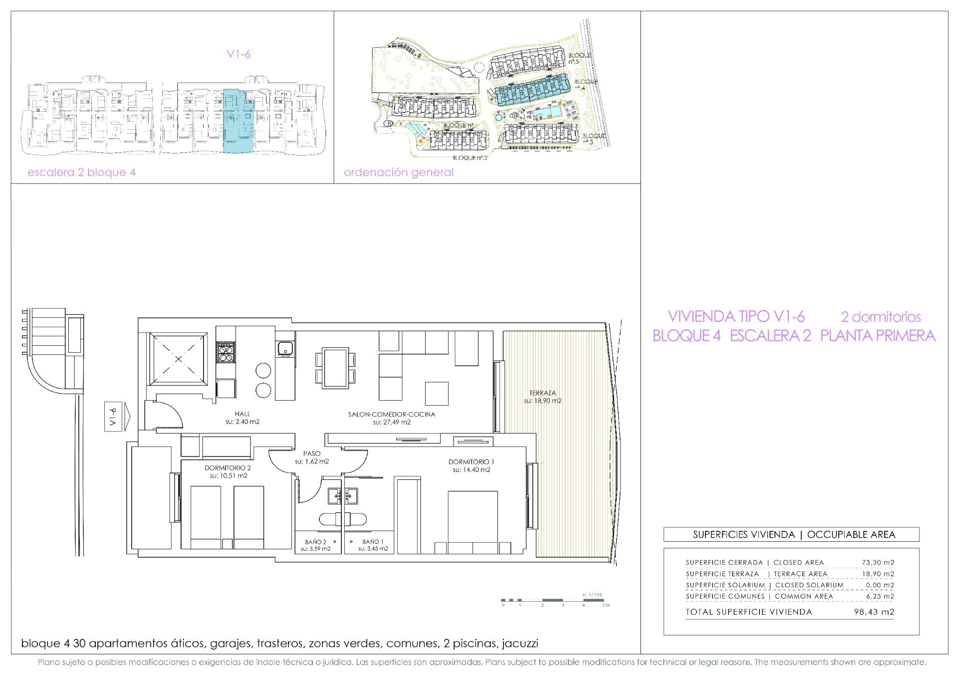
Mieszkanie z ładnymi basenami komunalnymi, jacuzzi i ładnymi wspólnymi ogrodami. Wszystkie usługi, takie jak supermarkety, bary i restauracje, itp., znajdują się w odległości spaceru w bardzo centralnym miejscu w Orihuela Costa.
Szeroki wybór typów do wyboru: apartamenty z 2, 3 lub 4 sypialniami. Niskie piętra z prywatnymi ogrodami lub najwyższe piętra z prywatnymi solariami. Wszystkie domy posiadają miejsce parkingowe oraz komórkę lokatorską w cenie.
Centrum handlowe Zenia Boulevard oddalone o 1 km i kilka pól golfowych, takich jak Villamartin, Campoamor w odległości 5 km od tej rezydencji, będzie idealnym miejscem na wakacje lub stałe mieszkanie.































































