Opis
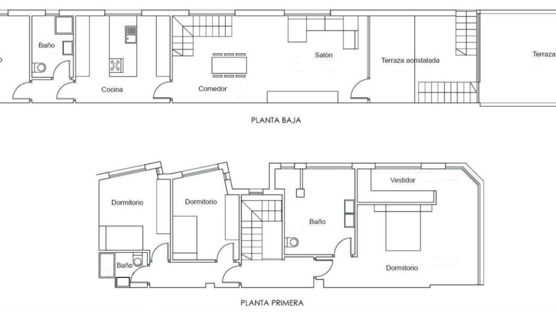
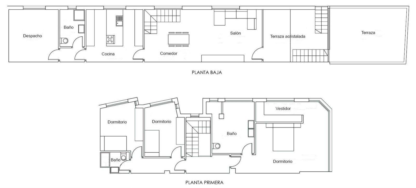
Dwupoziomowy Apartament Przy Plaży z Widokiem na Morze, Tarasami i Parkingiem! Przestronny i jasny apartament dwupoziomowy z prywatnym wejściem, kilkoma tarasami i niesamowitym widokiem na morze — zaledwie kilka kroków od plaży Playa del Cura. W cenie miejsce parkingowe. Na parterze: zadaszony taras zimowy, przestronny taras zewnętrzny (20 m²), salon z jadalnią, duża kuchnia z wyspą, jedna sypialnia oraz łazienka z prysznicem. Na piętrze: główna sypialnia z łóżkiem typu king size, prywatna łazienka z prysznicem i wanną oraz jasna garderoba z oknem. Do tego dwie dodatkowe sypialnie i trzecia łazienka z prysznicem. W pełni umeblowane, klimatyzowane, w doskonałym stanie – idealne do zamieszkania na stałe lub na wakacje. Najważniejsze zalety: – Pierwsza linia brzegowa z widokiem na morze – Prywatne wejście i dwie kondygnacje – 4 sypialnie, 3 łazienki – Główna sypialnia z garderobą i oknem – Duże, słoneczne tarasy tuż przy plaży – Parking 20 000 euro – Gotowe do zamieszkania Nie przegap tej wyjątkowej okazji – skontaktuj się z nami już dziś, aby dowiedzieć się więcej lub umówić się na prezentację!






































