Opis
Nowe apartamenty w samym sercu Torrevieja, zaledwie 400 m od plaży Playa del Cura
Doskonała lokalizacja w centrum Torrevieja
Ten nowy budynek mieszkalny cieszy się doskonałą lokalizacją w centrum Torrevieja, zaledwie 400 m od plaży Playa del Cura. Otoczony sklepami, supermarketami, restauracjami i punktami usługowymi, oferuje wszystko, czego potrzebujesz w odległości spaceru. W okolicy znajdują się również parki, strefy rekreacyjne i tereny zielone, co zapewnia idealną równowagę między miejskimi udogodnieniami a chwilami relaksu.
Nowoczesne domy z 2 i 3 sypialniami
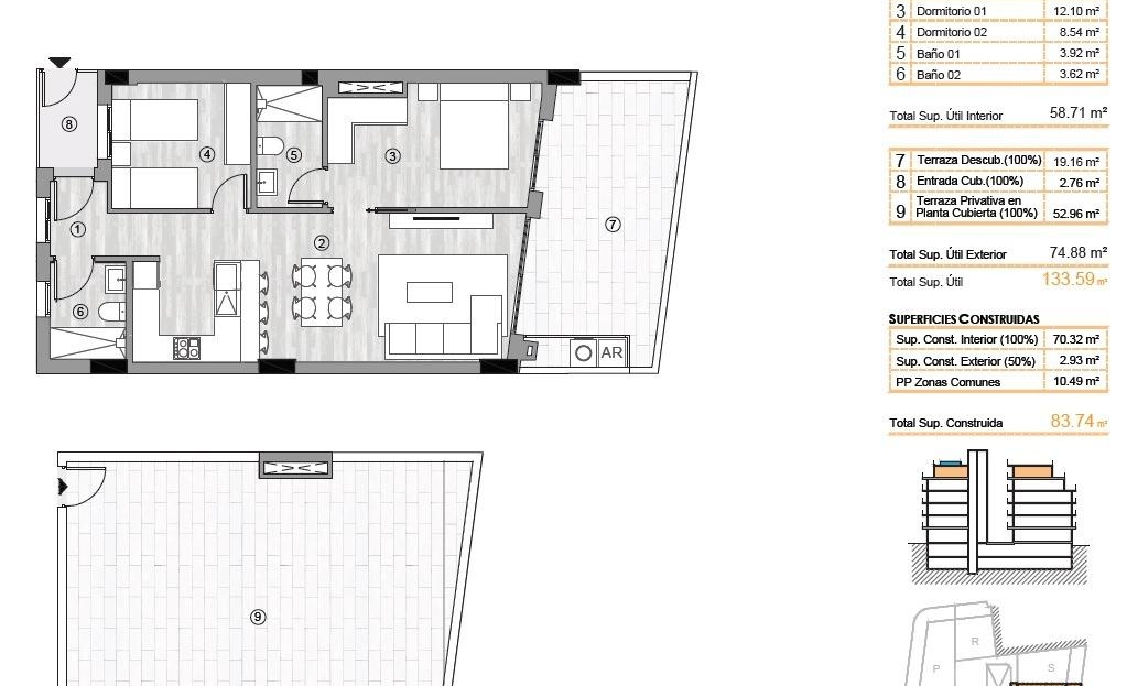
Inwestycja oferuje wybór apartamentów z 2 i 3 sypialniami, w tym penthouse’ów, z których część posiada prywatne solaria. Każdy dom został zaprojektowany w stylu współczesnym, z otwartym planem, dużymi tarasami i zintegrowanymi kuchniami w stylu amerykańskim. Łazienki są w pełni wyposażone w meble, kabiny prysznicowe i ogrzewanie podłogowe. Kuchnie wyposażone są w sprzęt AGD, a każdy apartament posiada instalację pod klimatyzację kanałową. Opcjonalnie dostępne są podziemne miejsca parkingowe i komórki lokatorskie.
Obiekty wypoczynkowe zapewniające dobre samopoczucie
Mieszkańcy mogą korzystać z szeregu ekskluzywnych udogodnień. Na parterze znajduje się w pełni wyposażona siłownia, idealna do codziennych treningów. Solarium na dachu stanowi prawdziwą oazę relaksu z leżakami, sauną fińską i mini basenem. Zarówno winda, jak i schody łączą się bezpośrednio z dachem, zapewniając maksymalną wygodę i dostępność.
Życie w wyjątkowym środowisku naturalnym i nadmorskim
Torrevieja słynie z ciepłego klimatu śródziemnomorskiego, ze średnią roczną temperaturą 20ºC, co czyni ją idealnym miejscem do życia przez cały rok. Miasto słynie z naturalnych słonych lagun i chronionego parku przyrodniczego La Mata i Torrevieja, położonego zaledwie 4 km od inwestycji. Jego różowe i zielone jeziora, malownicze trasy spacerowe i bogata różnorodność biologiczna oferują zdrowy i inspirujący styl życia.
Odległości do najważniejszych punktów
Playa del Cura 0,4 km
Marina Torrevieja 1 km
Park przyrodniczy La Mata 4 km
Villamartin Golf 8 km
Lotnisko w Alicante 45 km
Lotnisko w Murcji 60 km
Poznaj śródziemnomorski styl życia
Nie przegap okazji, aby stać się właścicielem nowoczesnego domu w jednym z najbardziej pożądanych nadmorskich miast Costa Blanca. Skontaktuj się z nami już dziś, aby umówić się na wizytę i zapewnić sobie miejsce w tej wyjątkowej nowej inwestycji.





















