Opis
Nowoczesne apartamenty z widokiem na winnicę w Hondón de las Nieves
Stylowe, nowo wybudowane apartamenty w spokojnej dolinie
Odkryj te nowoczesne apartamenty w Hondón de las Nieves, uroczym miasteczku położonym w malowniczej dolinie otoczonej gajami oliwnymi i drzewami migdałowymi. Ten ekskluzywny kompleks mieszkaniowy oferuje apartamenty z 1, 2 i 3 sypialniami, wszystkie zaprojektowane z myślą o komforcie, efektywności energetycznej i zapierających dech w piersiach widokach na winnice Vinalopó.
Położona w regionie Vinalopó Medio, ta spokojna okolica jest idealna dla osób poszukujących zrelaksowanego śródziemnomorskiego stylu życia z łatwym dostępem do natury i podstawowych usług.
Wysokiej jakości funkcje dla nowoczesnego życia
Każdy apartament jest zbudowany z najwyższej jakości materiałów i wykończeń, zapewniając zarówno styl, jak i funkcjonalność:
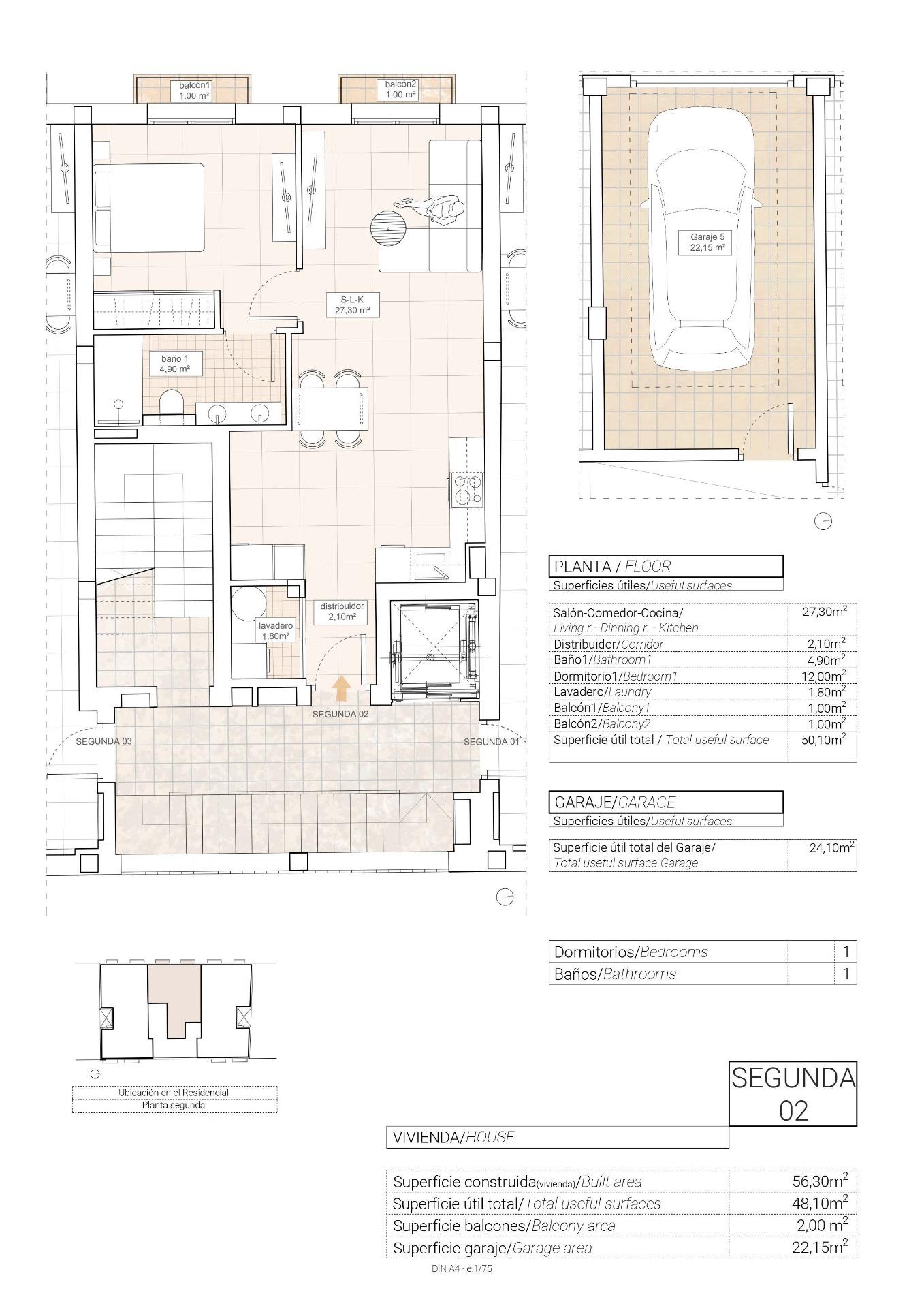
Przestronne wnętrza z otwartym planem.
W pełni umeblowane kuchnie z granitowymi blatami.
Wysokiej klasy łazienki z wbudowanymi spłuczkami i najwyższej jakości armaturą sanitarną.
Energooszczędna konstrukcja z aerotermalnym ogrzewaniem wody.
Wstępnie zainstalowana klimatyzacja kanałowa zapewniająca komfort przez cały rok.
Aluminiowe okna z podwójnymi szybami i izolacją termiczną.
Wzmocnione drzwi wejściowe dla większego spokoju.
Prywatny garaż na parterze wliczony w cenę.
Dostęp do windy dla wygody.
Dodatkowo na dachu zainstalowano panele słoneczne w celu zwiększenia efektywności energetycznej i obniżenia kosztów mediów.
Doskonała lokalizacja w Hondón de las Nieves
Hondón de las Nieves to urocza hiszpańska wioska znana z produkcji wina, tradycyjnej kultury i malowniczych krajobrazów. W mieście znajdują się zabytkowe budynki, lokalne rynki i naturalne szlaki piesze, dzięki czemu jest to fantastyczna lokalizacja zarówno do stałego zamieszkania, jak i wakacyjnego wypoczynku.
Ta nowa inwestycja znajduje się w spokojnej, ale dobrze skomunikowanej okolicy, oferując łatwy dostęp do podstawowych usług i kluczowych lokalizacji:
Lotnisko Alicante – 30 km (30 minut jazdy samochodem)
Plaże Alicante – 35 km (35 minut jazdy)
Elche – 20 km (20 minut jazdy samochodem)
Park przyrody Crevillente – 10 km (15 minut jazdy)
Pola golfowe – 25 km (30 minut jazdy)
Twój idealny dom w sercu wiejskiej okolicy Alicante
Ciesz się spokojem doliny Hondón, pozostając blisko tętniących życiem miast Alicante i Elche. Niezależnie od tego, czy szukasz domu wakacyjnego, nieruchomości inwestycyjnej, czy spokojnego miejsca do życia przez cały rok, te nowoczesne apartamenty są idealnym wyborem.
Skontaktuj się z nami już dziś, aby uzyskać więcej informacji lub umówić się na oglądanie!






