Opis
RYNEK PIERWOTNY BUNGALOWY W ROLDAN
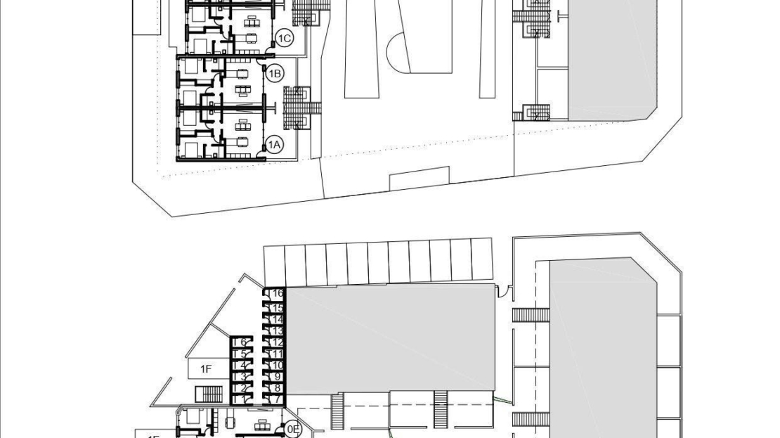
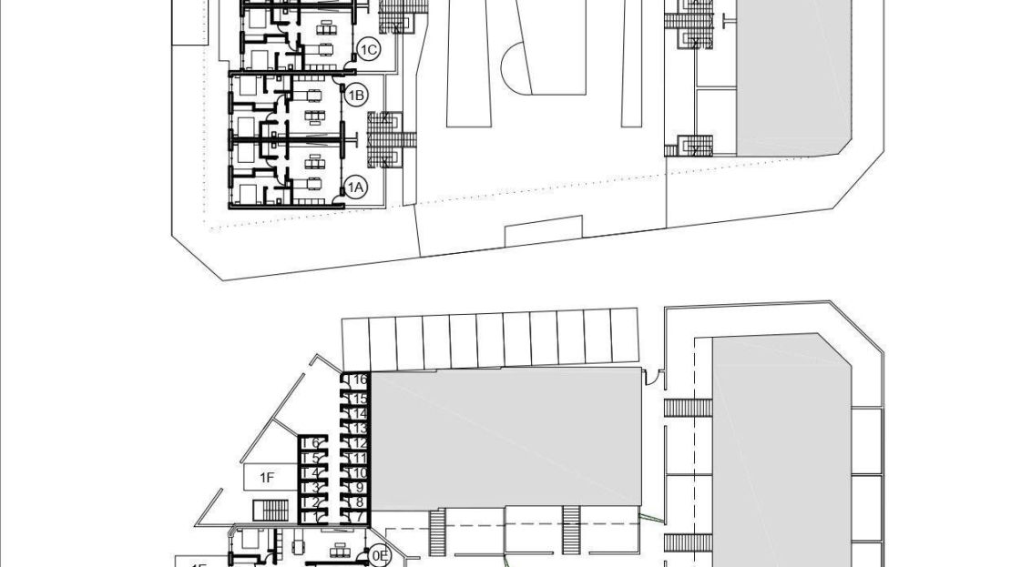
Rynek Pierwotny ogrodzony kompleks apartamentów typu bungalow położony w Roldán w Murcji.
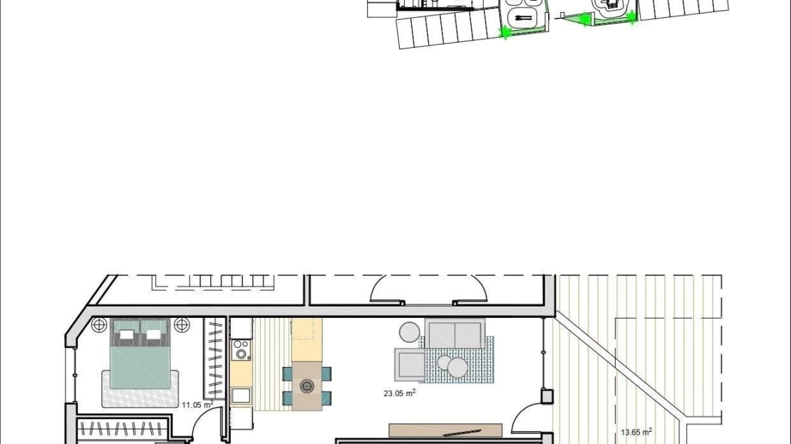
Te ekskluzywne bungalowy zostały zaprojektowane z 3 sypialniami i 2 łazienkami, tarasem na parterze oraz z 2 sypialniami i 2 łazienkami oraz solarium na piętrze.
Wnętrza, eleganckie i funkcjonalne, mają wysokiej jakości podłogi, w pełni wyposażone kuchnie w kolorze białym w połączeniu z imitacją drewna, w tym urządzenia elektryczne. Łazienki wyposażone są w toaletkę z umywalką i oświetleniem. W sypialniach znajdują się wyłożone wykładziną szafy z szufladami i przesuwanymi drzwiami, a każda nieruchomość ma wstępną instalację klimatyzacji kanałowej.
Zewnętrzne elementy są nie mniej imponujące, w tym wspólny basen i piękny teren sportowy oraz plac zabaw dla dzieci na sztucznej trawie.
Każda nieruchomość posiada miejsce parkingowe.
Pomieszczenia gospodarcze są opcjonalne za dodatkową opłatą.
Samo Roldan to tradycyjne miasteczko ze wszystkimi lokalnymi udogodnieniami, w tym supermarketami, restauracjami, barami, przychodnią zdrowia, apteką, posterunkiem policji, stacją benzynową, mechanikami, dentystami, lekarzami i nie tylko.
Pobliskie ośrodki golfowe La Torre i Terrazas są łatwo dostępne, lotnisko Corvera znajduje się 15 minut jazdy samochodem, a plaże Mar Menor zaledwie 20 minut jazdy samochodem.

































