Opis
Nowe apartamenty w Rojales w pobliżu pola golfowego i plaż
Nowoczesne życie w rozwijającej się okolicy Rojales
Ta nowa inwestycja mieszkaniowa znajduje się w nowoczesnej dzielnicy rozbudowywanego uroczego miasteczka Rojales, w samym sercu południowego wybrzeża Costa Blanca. Pierwsza faza projektu obejmuje 14 nowych domów, zaprojektowanych z myślą o komforcie, jakości i doskonałej lokalizacji. Okolica zapewnia łatwy dostęp do wszystkich codziennych usług, takich jak supermarkety, restauracje, banki i apteki, dzięki czemu jest idealna zarówno do stałego zamieszkania, jak i na wakacje.
Wybór domów na parterze lub na najwyższym piętrze
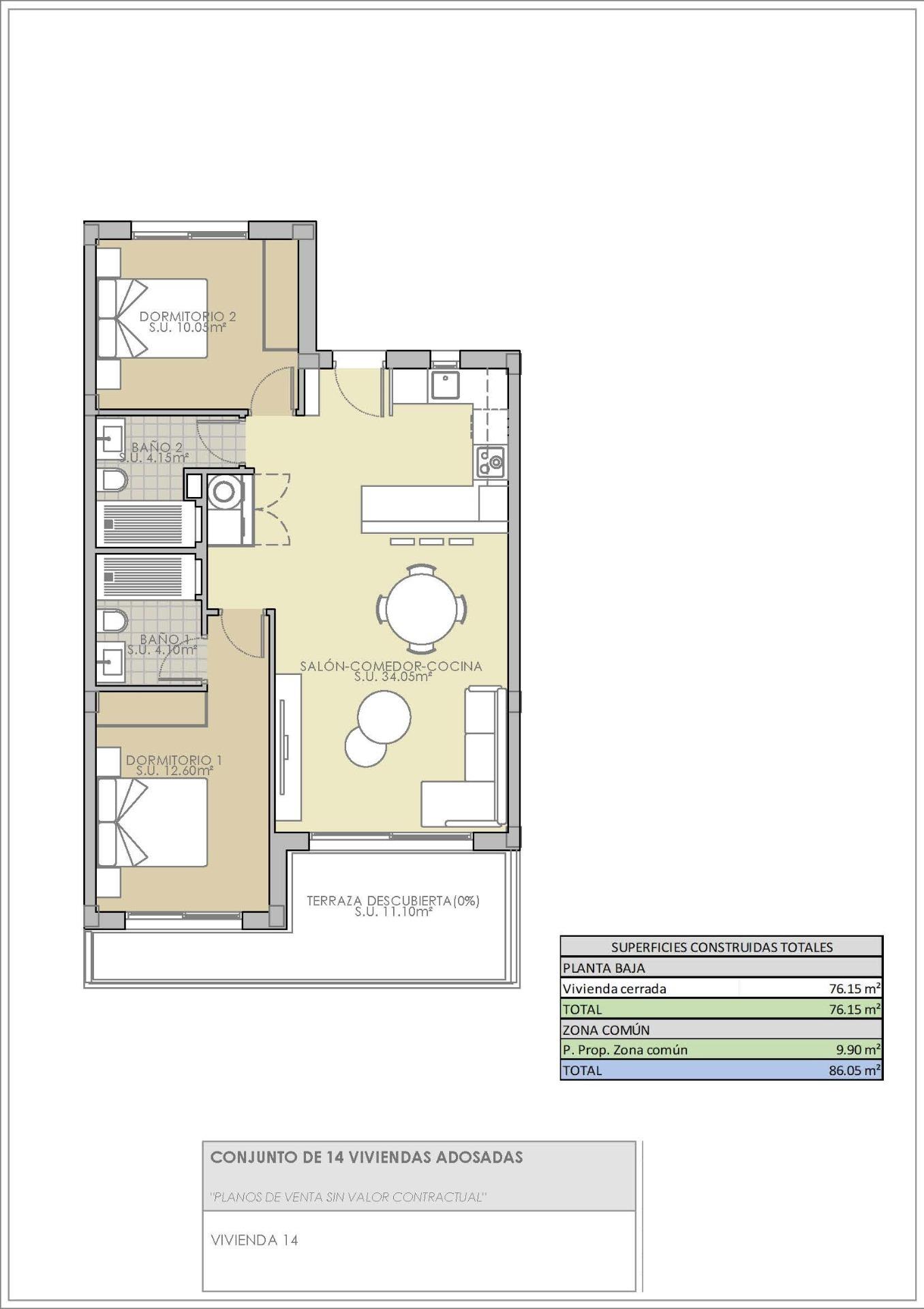
Inwestycja oferuje nowoczesne apartamenty z 2 sypialniami i 2 łazienkami, w tym główną sypialnią z łazienką. Kupujący mogą wybierać między nieruchomościami na parterze z przestronnymi prywatnymi tarasami, idealnymi do spędzania czasu na świeżym powietrzu, a mieszkaniami na najwyższym piętrze z tarasem i prywatnym solarium, idealnymi do opalania się i relaksu. Niektóre apartamenty na najwyższym piętrze są dostępne windą, co zapewnia dodatkową wygodę i dostępność.
Wysokiej jakości wykończenie i efektywność energetyczna
Wszystkie domy są zbudowane z wysokiej jakości materiałów i zgodnie z nowoczesnymi specyfikacjami. Łazienki wyposażone są w ogrzewanie podłogowe, meble z lustrami i kabiny prysznicowe. Kuchnie są w pełni umeblowane i wyposażone w sprzęt AGD, oferując nowoczesny i funkcjonalny design. W wyposażeniu znajdują się rolety z napędem elektrycznym oraz instalacja pod klimatyzację kanałową. Każda nieruchomość posiada również instalację paneli fotowoltaicznych o mocy 1 kW, co przyczynia się do poprawy efektywności energetycznej i obniżenia kosztów eksploatacji, a także instalację pod prywatne jacuzzi.
Parking i komfort społeczności
Każdy dom posiada prywatne miejsce parkingowe w podziemnym garażu, zapewniające bezpieczeństwo i komfort. Projekt osiedla koncentruje się na praktyczności i nowoczesnym stylu życia, oferując spokojne otoczenie w dobrze zaplanowanej nowej dzielnicy Rojales.
Styl życia i okolice Rojales
Rojales to tradycyjne hiszpańskie miasteczko znane z przyjaznej atmosfery i doskonałej jakości życia. Oferuje wszystkie niezbędne usługi, a także pobliski park przyrodniczy idealny do spacerów i aktywności na świeżym powietrzu. Okolica jest szczególnie popularna wśród miłośników golfa, ponieważ pole golfowe La Marquesa znajduje się niecałe 2 km od hotelu, a dwa dodatkowe pola golfowe są oddalone o kilka minut jazdy samochodem. Plaże Guardamar del Segura, oznaczone Błękitną Flagą, znajdują się zaledwie 7 km od hotelu i oferują długie piaszczyste plaże oraz piękną promenadę. W pobliżu znajdują się również parki wodne i obiekty rekreacyjne w Rojales i Torrevieja.
Odległości do głównych atrakcji
Pole golfowe La Marquesa: 2 km
Plaże Guardamar: 7 km
Torrevieja: 12 km
Lotnisko w Alicante: 45 km
Lotnisko Murcia Corvera: 55 km
Twój nowy dom na Costa Blanca
Te nowo wybudowane apartamenty w Rojales oferują doskonałe połączenie lokalizacji, jakości i stylu życia. Skontaktuj się z nami już dziś, aby uzyskać więcej informacji lub umówić się na oglądanie nieruchomości i zapewnić sobie nowy dom na południowym wybrzeżu Costa Blanca.

































