Opis
NOWY BUDYNEK REZYDENCJALNY W LOS BALCONES, TORREVIEJA
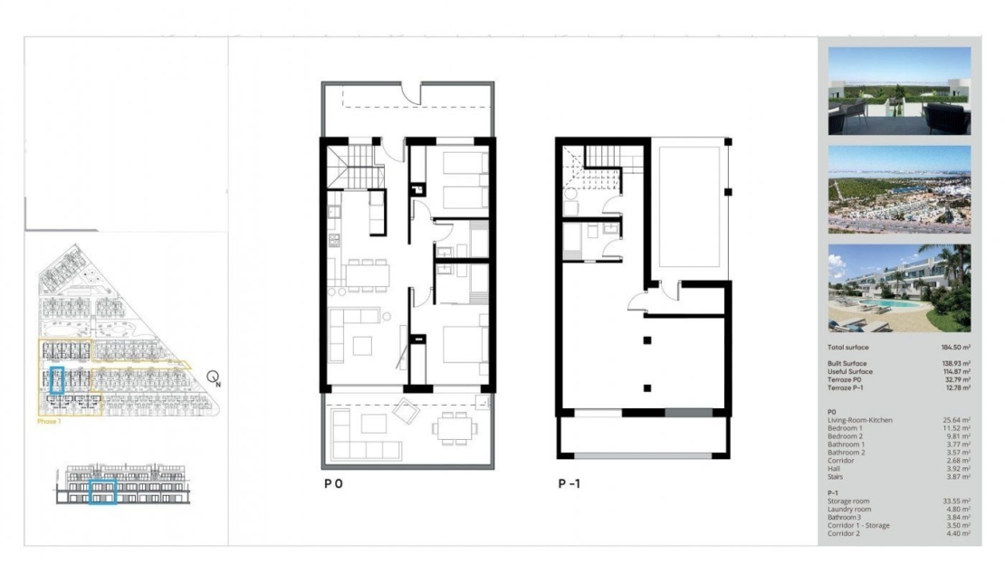
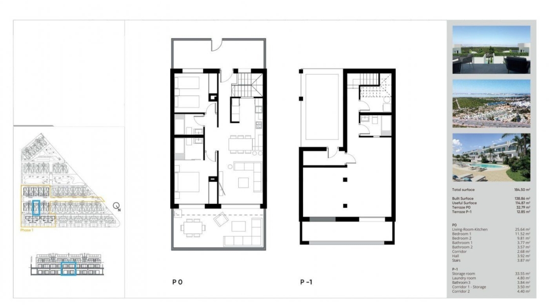
New Build residential complex of semi-detached villas and bungalows located in Los Balcones with the views to the pink lake.
Bungalowy na ostatnim piętrze posiadają 2 sypialnie, 2 łazienki, otwartą kuchnię z przestronnym salonem, wbudowane szafy, taras, prywatne solarium oraz parking podziemny.
Nowa ekskluzywna rezydencja z dużymi wspólnymi obszarami; ogrody, ogród-siłownia, plac zabaw, 2 duże wspólne baseny – jeden z nich dla dorosłych, a drugi dla dzieci.
Los Balcones to małe miasteczko położone w pobliżu południowej części Torrevieja.
Torrevieja to hiszpańskie miasto w prowincji Alicante, na wybrzeżu Costa Blanca.
Znane jest z typowo śródziemnomorskiego klimatu i linii brzegowej. Posiada deptaki z kurortami wzdłuż swoich piaszczystych plaż.
Małe Muzeum Morza i Soli mieści wystawy dotyczące rybackiej i solnej historii miasta.
Wewnątrz, Lagunas de La Mata-Torrevieja Natural Park ma szlaki i dwie słone laguny, jeden różowy i drugi zielony.
Lotnisko w Alicante oddalone o 40 minut, a lotnisko w Murcji o około 1 godzinę drogi.






































