Beskrivning
NYBYGGD BOSTAD I LOS BALCONES, TORREVIEJA
Nybyggt bostadsområde med parhus och bungalows i Los Balcones med utsikt över den rosa sjön.
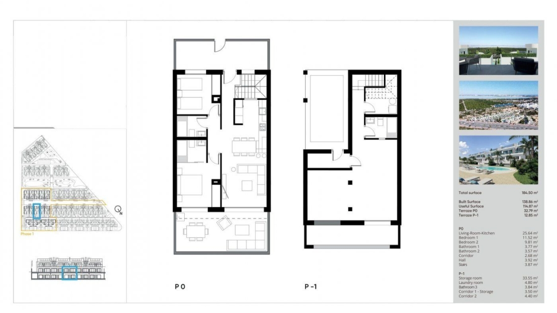
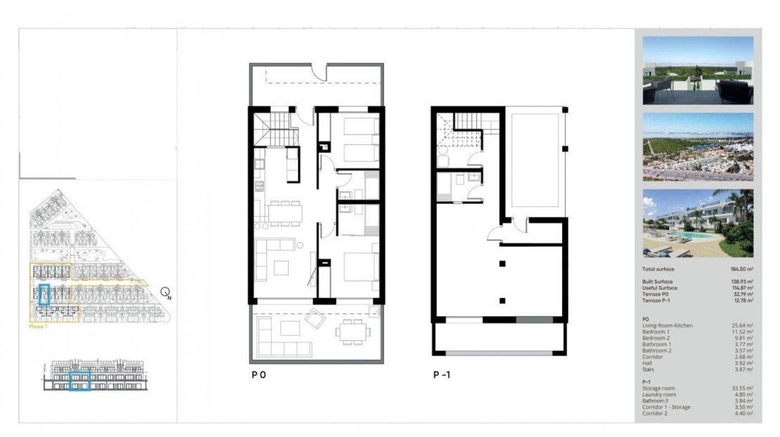
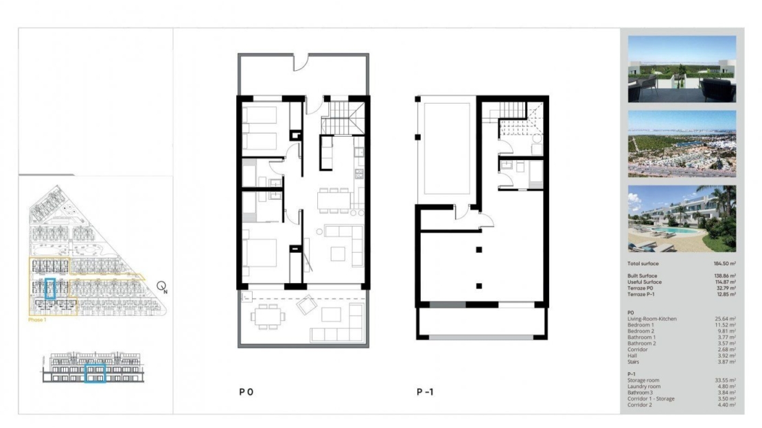
Nybyggda bungalows på översta våningen har 2 sovrum, 2 badrum, öppet kök med rymligt vardagsrum, inbyggda garderober, terrass, privat solarium och underjordisk parkeringsplats.
Nytt exklusivt bostadsområde med stora gemensamma områden; trädgårdar, trädgårdsgym, lekplats, 2 stora gemensamma pooler – en av dem för vuxna och den andra för barn.
Los Balcones är en liten stad som ligger nära Torrevieja söderut.
Torrevieja är en spansk stad i provinsen Alicante på Costa Blanca.
Den är känd för sitt typiska medelhavsklimat och sin kustlinje. Den har strandpromenader med semesterorter längs sina sandstränder.
Det lilla havs- och saltmuseet rymmer utställningar om stadens fiske- och salthistoria.
I inlandet finns naturparken Lagunas de La Mata-Torrevieja med stigar och två saltlaguner, den ena rosa och den andra grön.
Alicantes flygplats ligger 40 minuter bort och Murcias flygplats ca 1 timme bort.






































