Opis
LUKSUSOWA WILLA Z WIDOKIEM NA MORZE
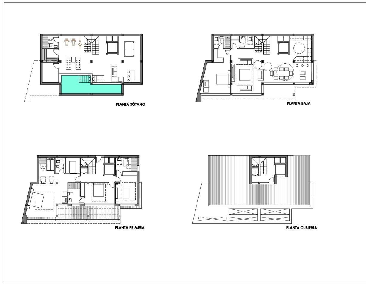
Nowoczesna, wolnostojąca, luksusowa willa z przepięknym widokiem na morze.
Nieruchomość posiada windę, która łączy 3 piętra domu. Ze wszystkich sypialni oraz z salonu można podziwiać spektakularne widoki na morze.
Jego basen typu infinity pozwoli Ci wziąć relaksującą kąpiel, podczas której poczujesz jak łączysz się z horyzontem, Morzem Śródziemnym i jego błękitnym niebem.
Rozwój znajduje się mniej niż 2 km od plaży i centrum Calpe, z wszystkich niezbędnych usług.
Lotnisko w Alicante znajduje się 70 km od hotelu, a Benidorm z bogatą ofertą rozrywkową jest oddalony o 20 km.
Z Calpe masz dostęp do szerokiej gamy pól golfowych, międzynarodowych szkół, portów i sportów morskich, zróżnicowanej gastronomii, a wszystko to w klimacie z 300 słonecznymi dniami w roku i średnią roczną temperaturą 20ºC.
















