Opis
NOWE LUKSUSOWE WILLE W FINESTRAT Z WIDOKIEM NA MORZE
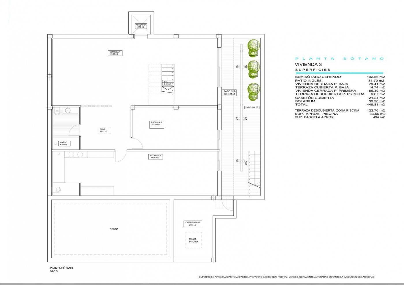
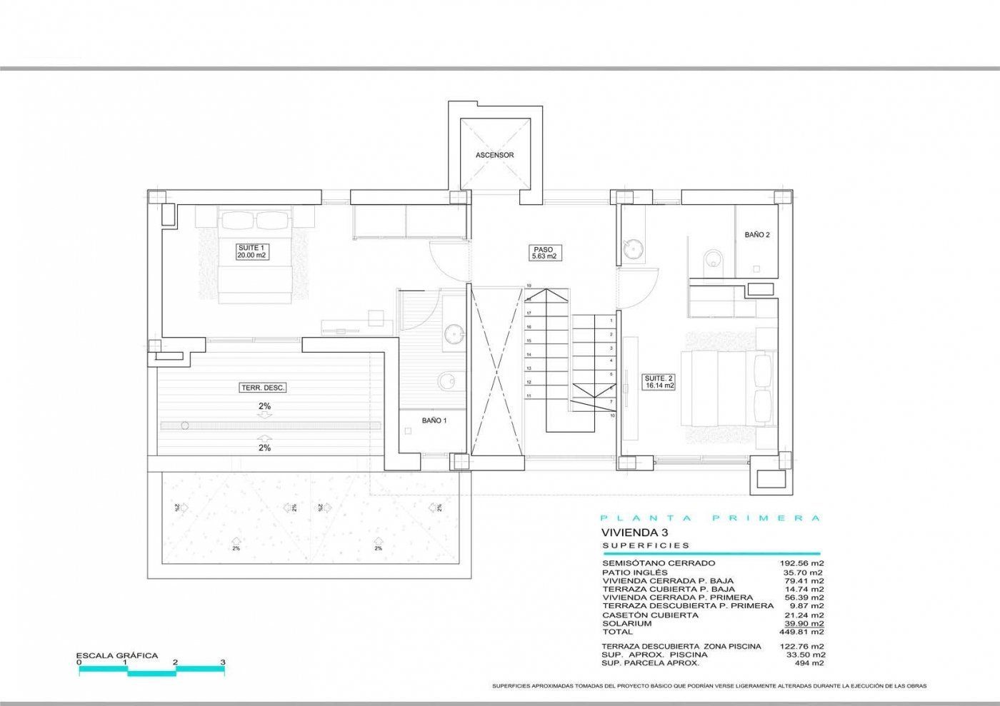
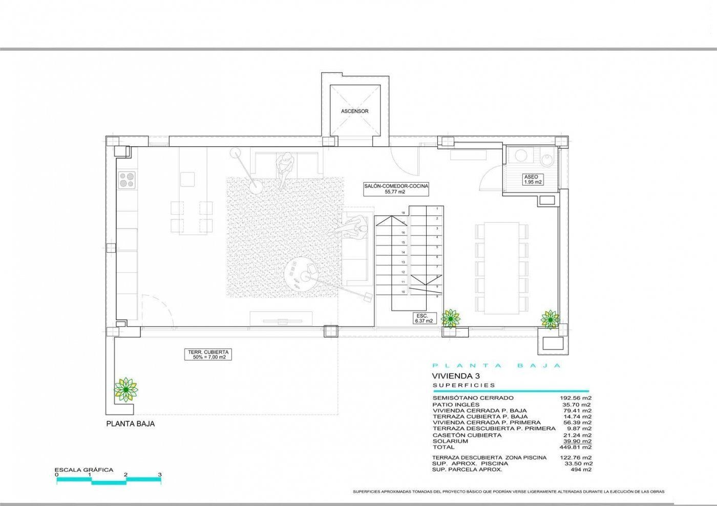
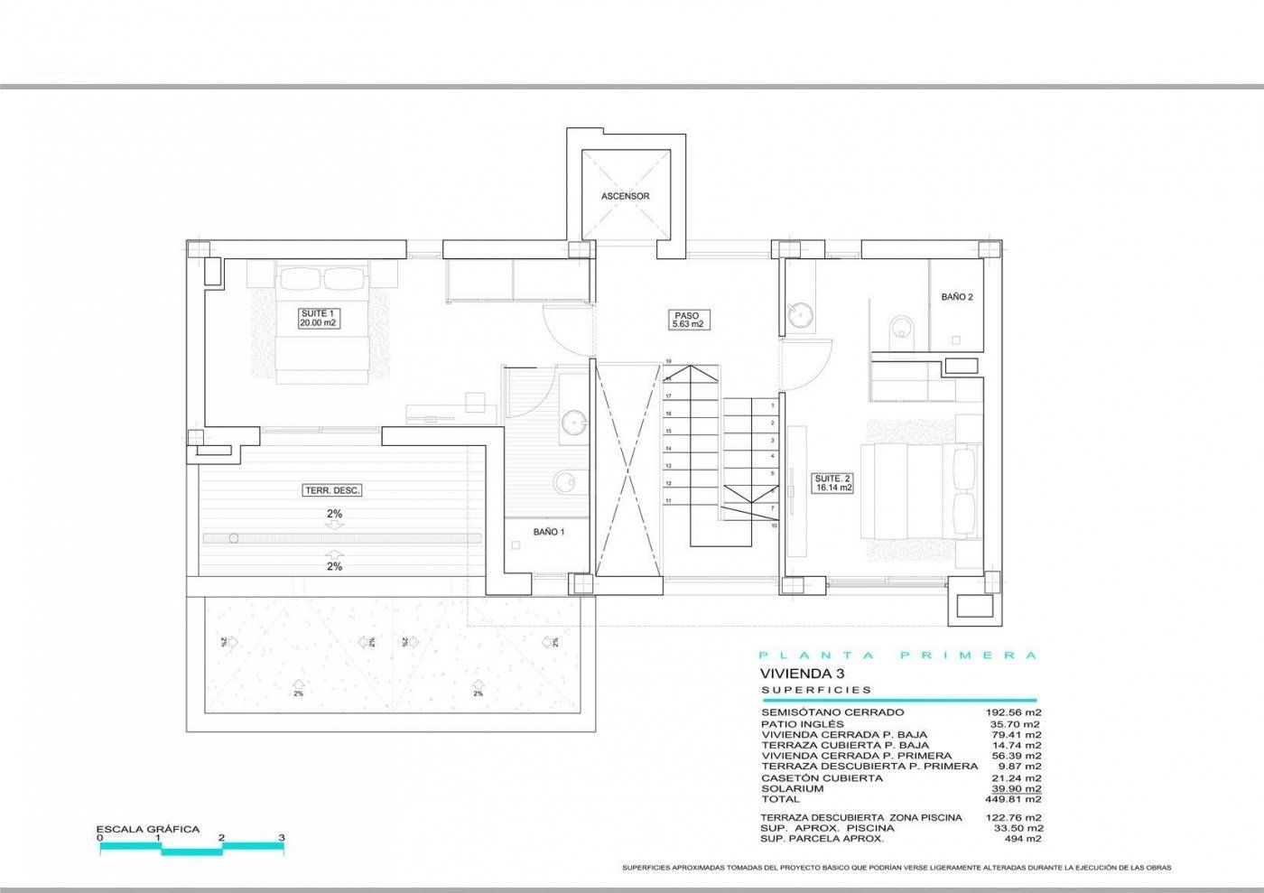
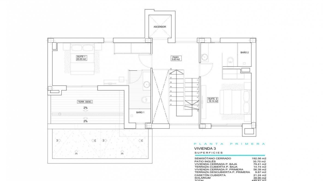
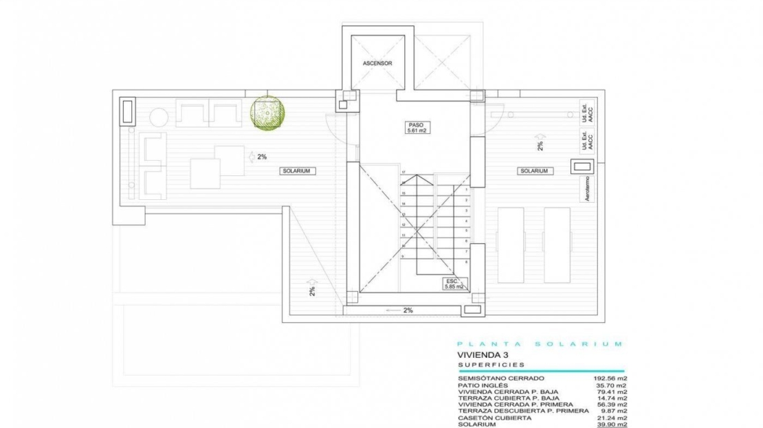
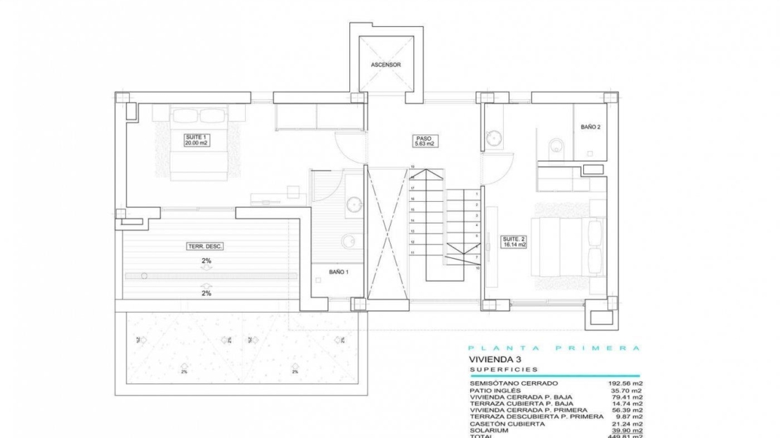
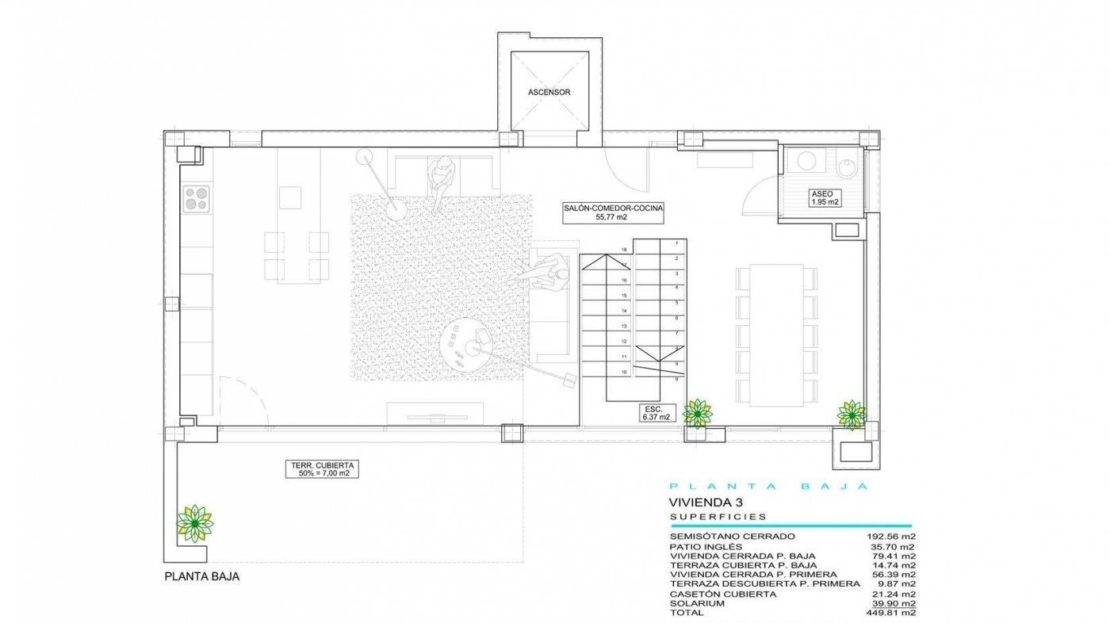
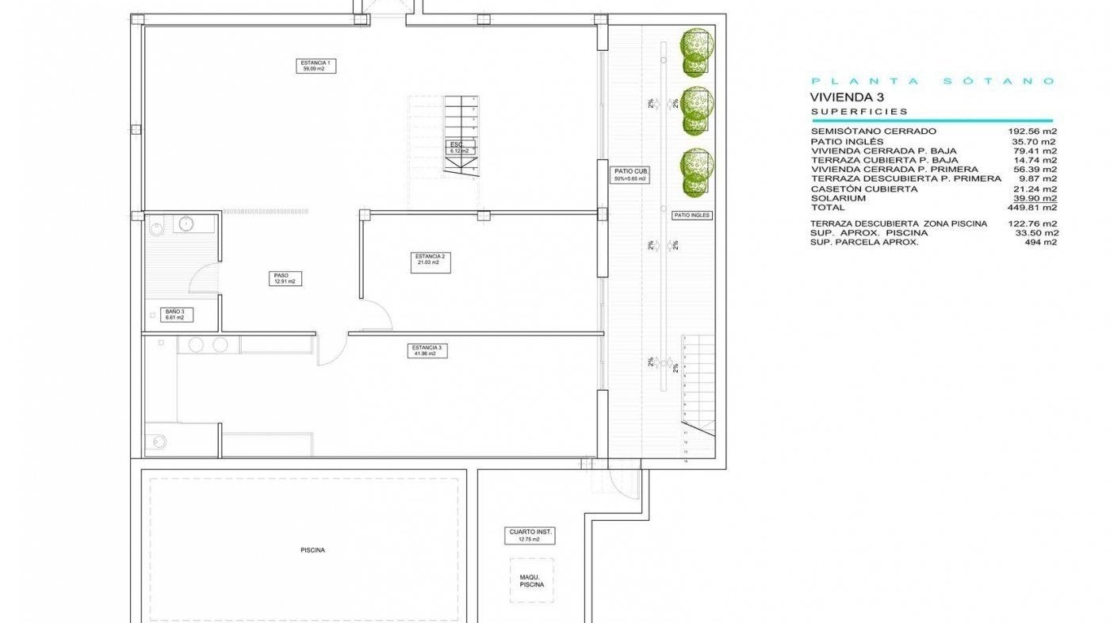
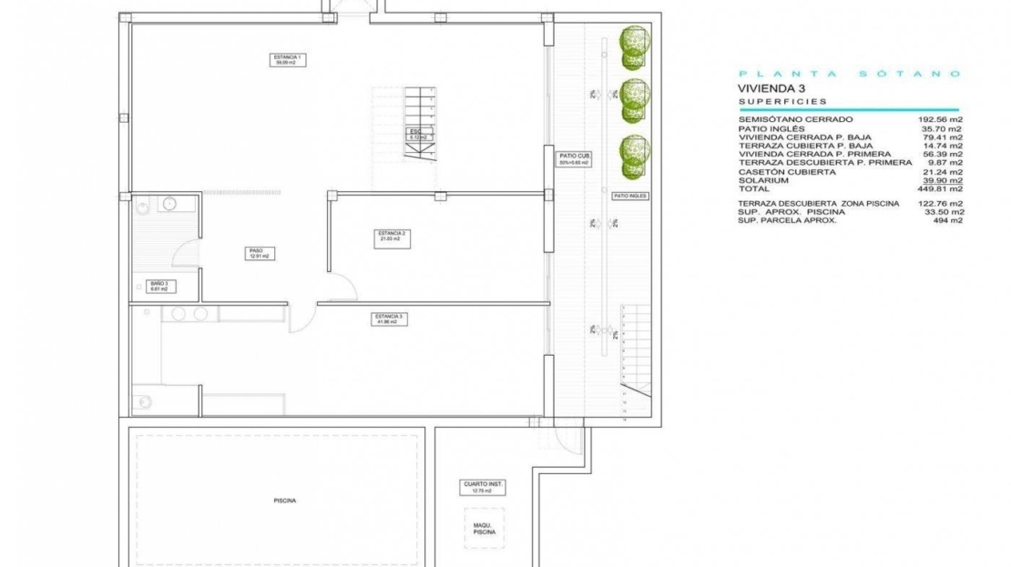
Luksusowe wille zlokalizowane w kompleksie mieszkaniowym New Build w Finestrat. Ta willa składa się z dwóch pięter, solarium, piwnicy i wewnętrznego ogrodu z prywatnym basenem.
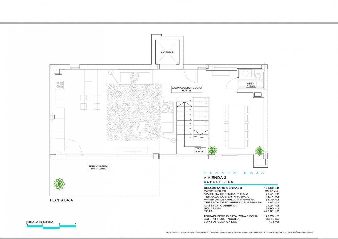
Każda willa posiada własną windę.
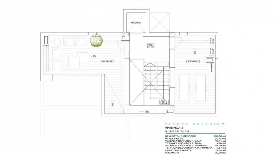
Solarium oferuje szeroki i niezapomniany widok na Benidorm i morze.
Wille te są wyjątkowe ze względu na swój projekt i udogodnienia: duży salon, duże sypialnie z łazienkami na pierwszym piętrze, solarium do relaksu i podziwiania zachodów słońca, nowoczesny basen bez krawędzi i duży taras na wakacje i relaks.
Budynek mieszkalny położony 5 minut samochodem od wszystkich usług, które może zaoferować Benidorm, w środowisku o średniej rocznej temperaturze 20ºC i 300 słonecznych dni w roku, 44 km od lotniska Alicante, 3 km od morza i 200 metrów do golf.















































