Opis
RYNEK PIERWOTNY WILLE W FINESTRAT
Rynek Pierwotny Nowy projekt budowy 10 nowocześnie zaprojektowanych willi, w naturalnym otoczeniu z widokiem na morze i góry, w pobliżu pola golfowego Puig Campana i w niewielkiej odległości od miast Finestrat i Benidorm.
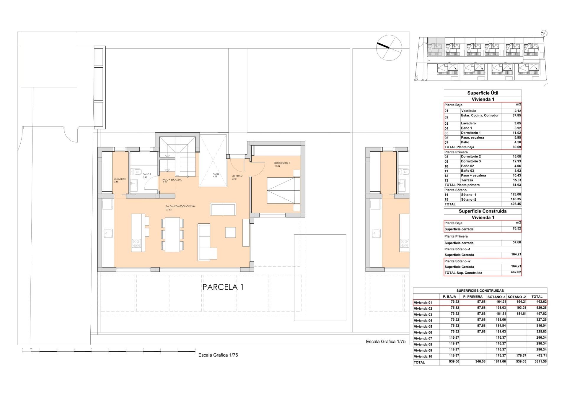
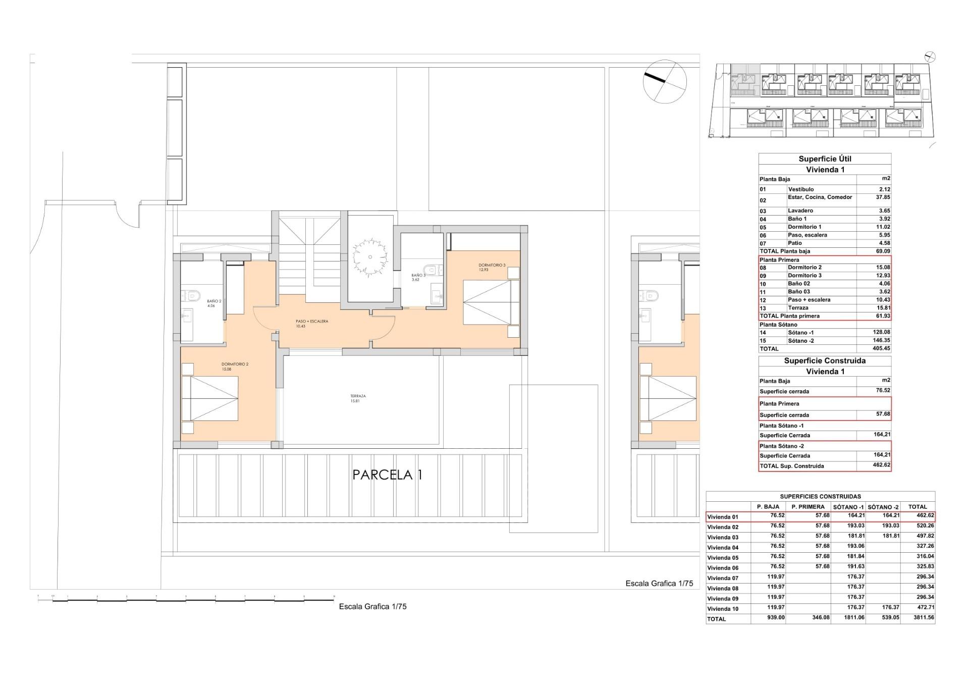
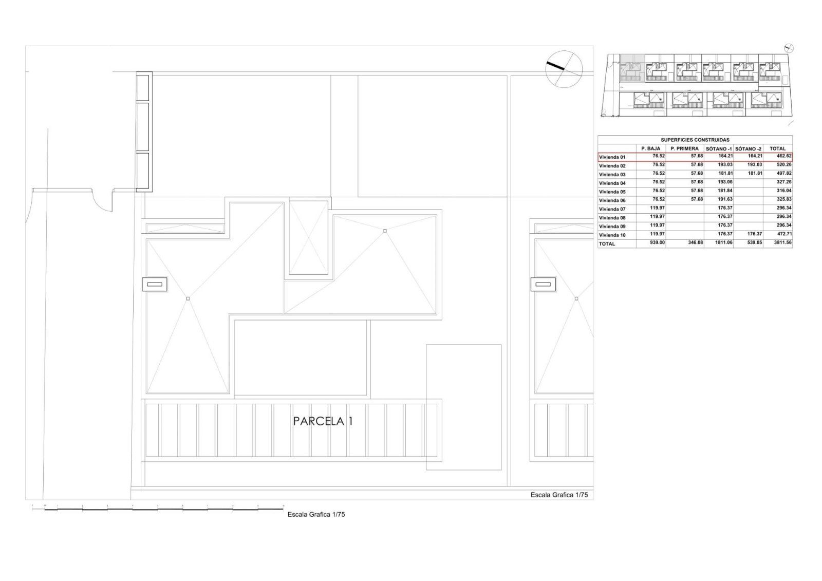
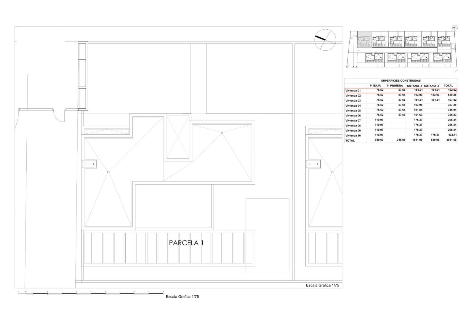
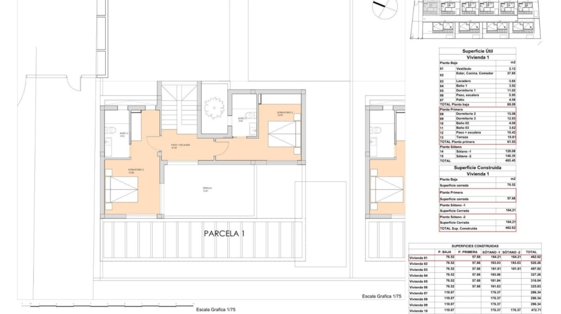
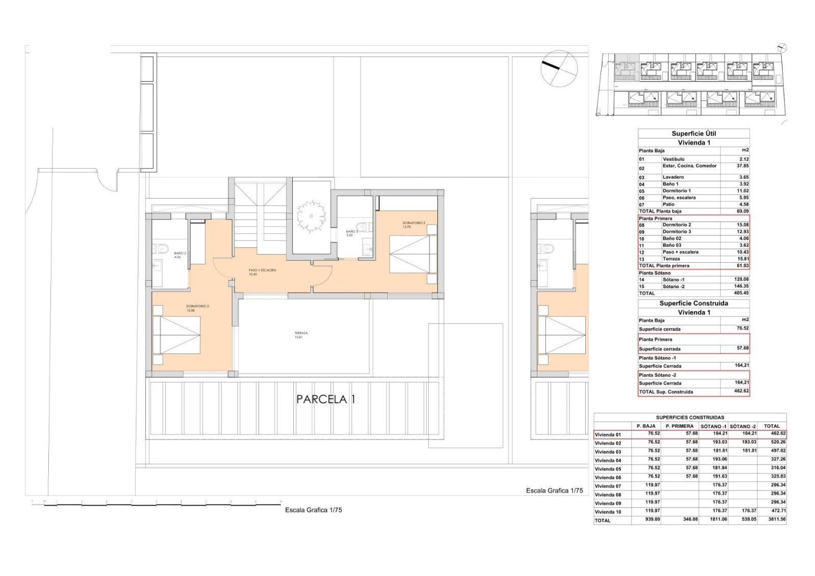
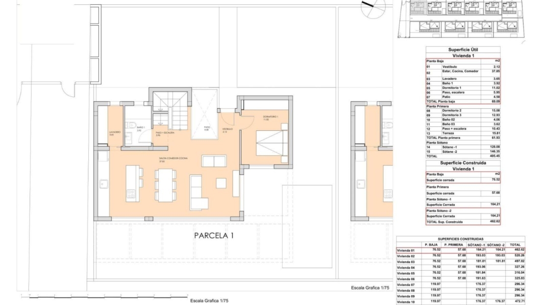
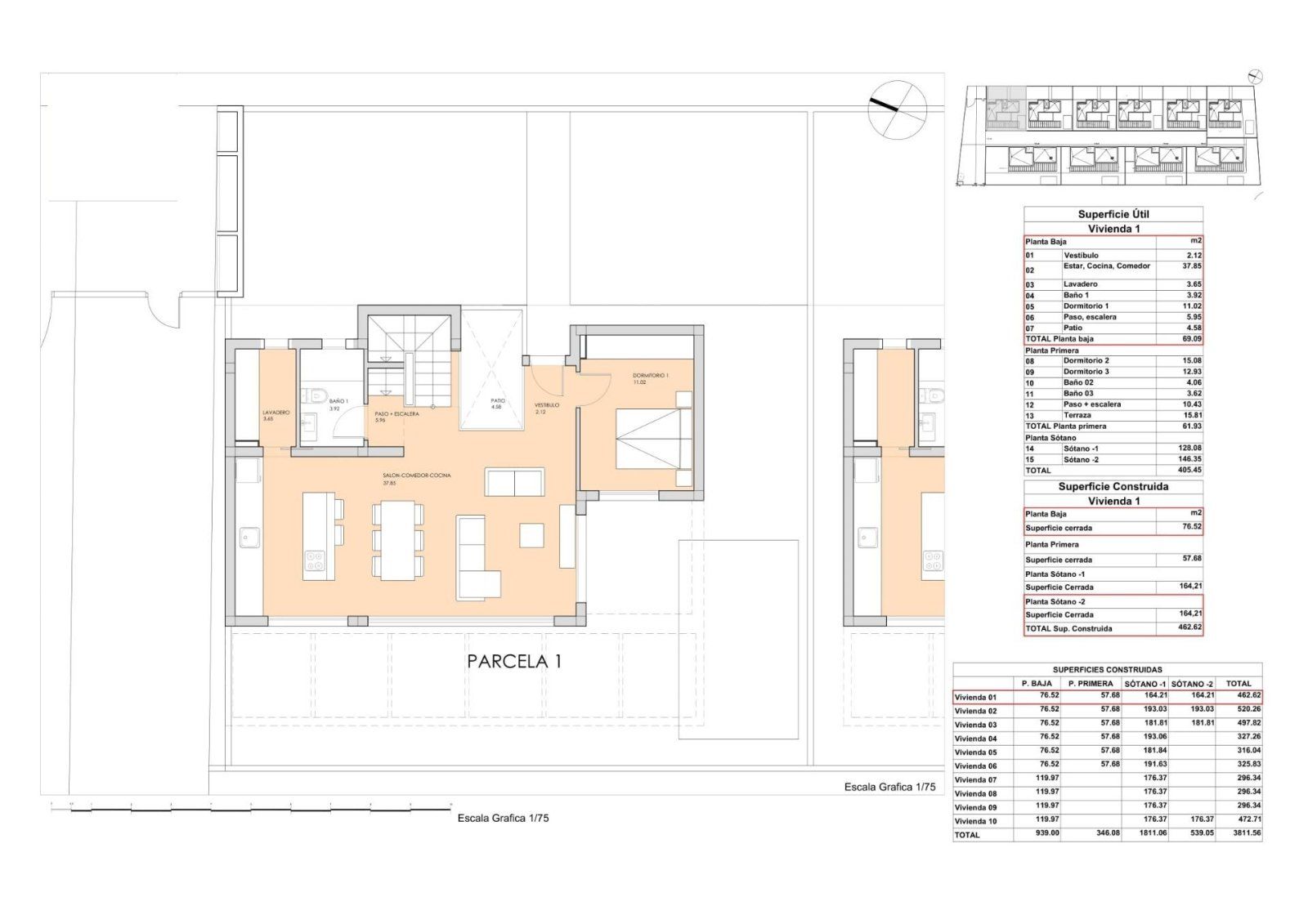
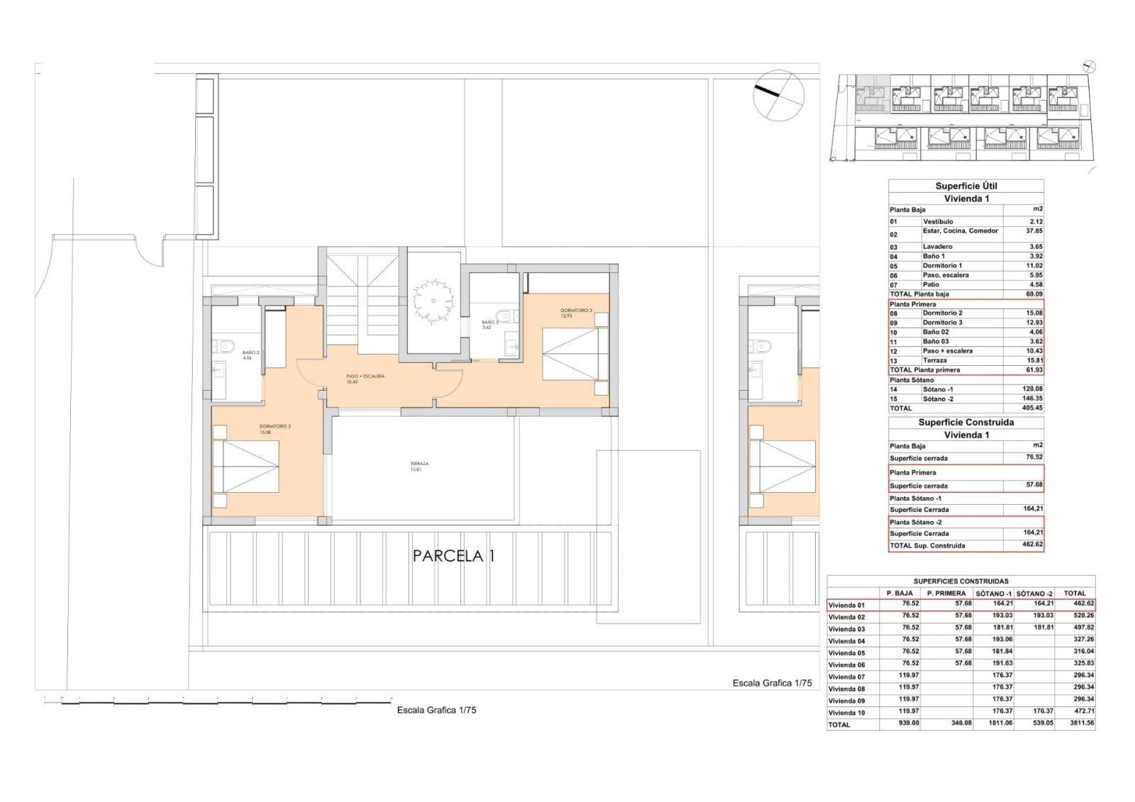
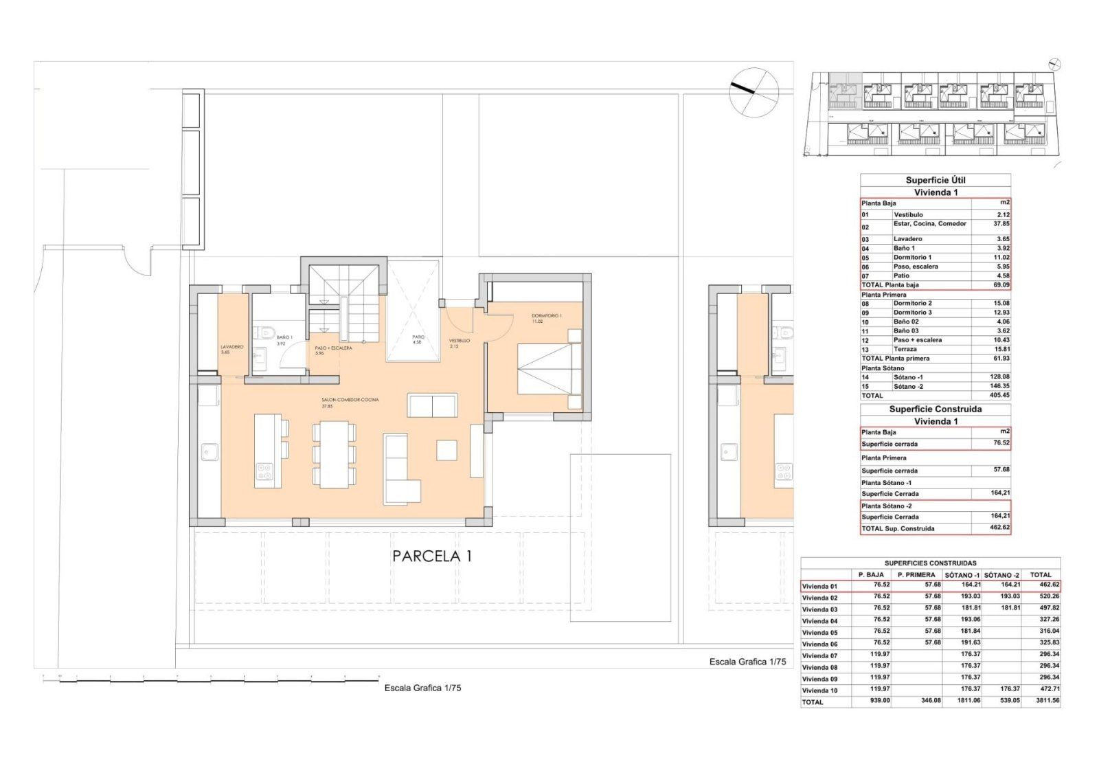
Projekt zostanie podzielony na dwa etapy budowy, które z kolei obejmują dwa rodzaje domów, z 1 lub 2 piętrami, 3 sypialniami dwuosobowymi, 2 lub 3 kompletnymi łazienkami, salonem-jadalnią ze zintegrowaną kuchnią, pralnią, dużym tarasem i ogrodem, prywatnym basenem, parkingiem zewnętrznym, 1 lub 2 wielofunkcyjnymi piwnicami oraz w niektórych modelach zamknięty garaż podziemny.
Opcje solarium za dodatkową opłatą.
Wille zbudowane z najlepszych cech i najnowszych osiągnięć w budownictwie, między innymi:
– Szklane balustrady, które nie przerywają ciągłości widoków.
– Podłogi z gresu porcelanowego pierwszej jakości.
– Opancerzone drzwi wejściowe.
– Aluminiowa stolarka zewnętrzna z mostkiem termicznym i podwójnym szkłem izolacyjnym o niskiej emisyjności z komorą powietrzną i zabezpieczeniem w obszarach zagrożonych pęknięciem.
– Gładka stolarka wewnętrzna, wykonana z lakierowanego na biało drewna z uchwytami i okuciami ze stali nierdzewnej.
– W pełni wyposażone szafy przesuwne i garderoby.
– Produkcja ciepłej wody użytkowej poprzez system pompy ciepła ze zbiornikiem akumulacyjnym 100L, przy wsparciu paneli słonecznych na dachu.
– Wysokiej klasy instalacja elektryczna 9,2kw.
– Instalacja klimatyzacji poprzez kanały z maszynami w zestawie.
– Minimalistycznie zaprojektowane kuchnie, w pełni wyposażone z wyspą, meblami i urządzeniami wliczonymi w cenę.
– Prywatny basen z oświetleniem i plażą z chodnikiem lub sztuczną trawą.
– W pełni konfigurowalna wielofunkcyjna piwnica, w zależności od modelu z miejscem garażowym na samochód i wstępną instalacją dla pojazdu elektrycznego.
Wille znajdują się w uprzywilejowanym otoczeniu na Costa Blanca, na wzniesieniu u podnóża gór, w otoczeniu przyrody i innych podobnych urbanizacji, z doskonałym widokiem na morze i okolicę. Bardzo dobre połączenie drogowe z pobliskim miastem Finestrat, 10 minut jazdy samochodem od centrów handlowych, autostrady A7, plaż i pobliskich miast Benidorm i Villajoyosa oraz 30 minut od miasta Alicante i jego międzynarodowego lotniska.





































































