Opis
Nowa inwestycja mieszkaniowa składająca się z willi i domów szeregowych w Fuente Álamo, w regionie Murcja.
Lokalizacja ta oferuje wyjątkowe otoczenie przyrody, z dala od zgiełku dużych miast i turystycznego natężenia na wybrzeżu. Ponadto jesteśmy zaangażowani w działania na rzecz zrównoważonego rozwoju, minimalizując nasz wpływ na środowisko i maksymalizując integrację z lokalną społecznością. Tutaj Twoje marzenia o spokojnym i zrównoważonym stylu życia stają się rzeczywistością. Wyobraź sobie, że każdego ranka budzisz się w imponującym otoczeniu natury, w spokoju i wśród wyjątkowego piękna murcyjskiej wsi.
W tej inwestycji priorytetem jest energooszczędność, wykorzystanie materiałów przyjaznych dla środowiska oraz harmonijna integracja z otoczeniem. Od projektu nieruchomości po planowanie inwestycji – wszystko ma na celu zmniejszenie naszego śladu węglowego i promowanie odpowiedzialnych praktyk we wszystkich działaniach.
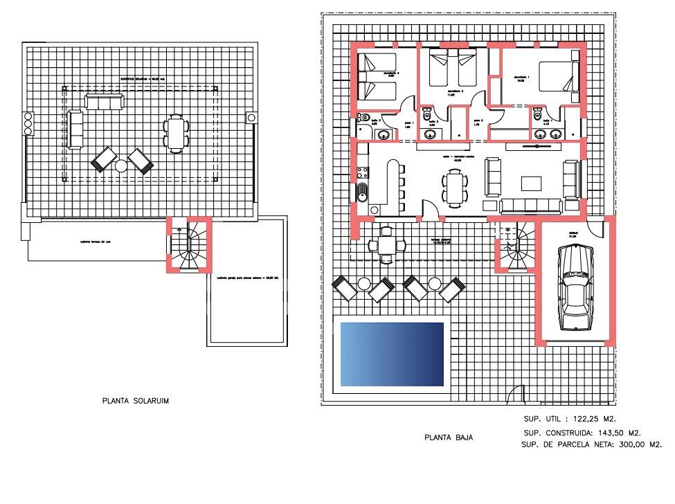
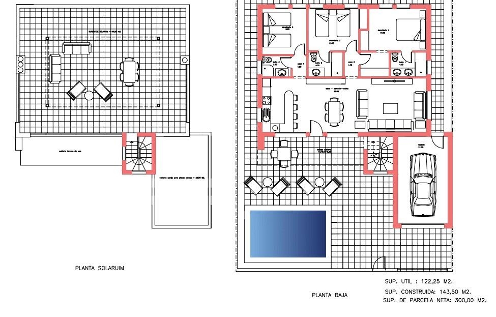
Kompletna instalacja klimatyzacji kanałowej, chłodzenie/ogrzewanie.
System wideodomofonu.
Drzwi wejściowe w kolorze lakierowanym, z zamkiem i okuciami antywandalskimi.
Szafy z bagażnikiem, wyłożone wewnątrz, lakierowane na biało.
Meble kuchenne wraz z wyposażeniem AGD.
Ciepła woda z aerotermii.
Elektryczne rolety.
Pergole w solarium.
Prywatny basen o wymiarach 2,5 x 4,5 m z podwodnym oświetleniem i systemem oczyszczania chlorem solnym.
Instalacja pod kuchnię zewnętrzną/jacuzzi w solarium.
Fuente Álamo de Murcia to miejscowość i gmina w regionie Murcji, na południu Hiszpanii. Położona jest 22 km na północny zachód od Kartageny i 35 km na południowy zachód od Murcji.
Miasto leży w dorzeczu Morza Menor, otoczone pasmami górskimi Algarrobo, Los Gómez, Los Victorias i Carrascoy. Woda z tych gór spływa w dół Rambla de Fuente Álamo, a następnie do Morza Menor.
Fuente Álamo znajduje się 30 minut od lotniska Murcia – Corvera. Najbliższe sklepy znajdują się w odległości 6 km.































































































