Opis
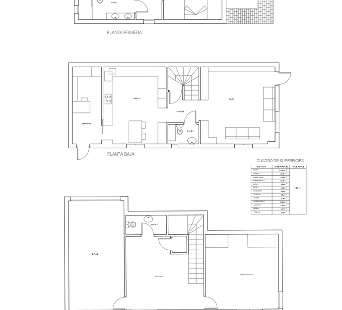
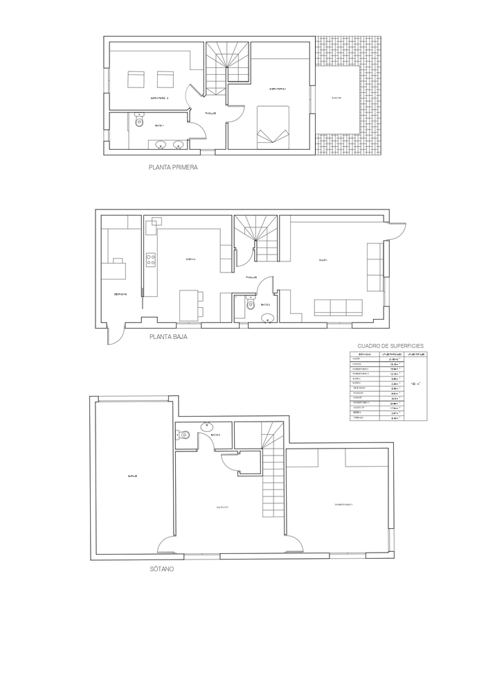
Spacious triplex with terrace/garden, located in an open and sunny position in the Torre de la Horadada area.Bedrooms: 3Bathrooms: 3Constructed area: 130 m²Charming three-level corner terraced property with three bedrooms, three bathrooms, a private closed garage, and a private splash pool.Welcome to this corner triplex in the heart of Torre de la Horadada. This home offers generous space both as a holiday home and for year-round living, featuring a pleasant paved sunny garden that allows you to enjoy the sun by the pool or dine al fresco. Combining modern design with high-quality features, this triplex is ideal for those seeking a property with spacious rooms.The property is within walking distance of some of the best beaches in the area and all essential services, including restaurants, shops, a pharmacy, and a supermarket.This carefully designed home features an open-plan living and dining area connected to a fully equipped modern kitchen with Bosch/Siemens appliances, two fridge/freezers, and ample storage solutions. Adjacent to the kitchen is a practical utility room/home office with space for a washing machine and storage, and with direct access to the garden.The property offers three spacious bedrooms, all with built-in wardrobes. The master bedroom provides direct access to a private balcony, offering additional space for relaxation. All three bathrooms are modern.From the living room, there is access to a paved garden with three awnings, perfect for providing shade on hot days (two of them electric).The highlight of the property is undoubtedly the spaciousness of the rooms and the abundance of practical storage space. Relax in the lounge area or sunbathe on the sunbeds around the pool.Many extras, such as:Individually controlled hot/cold air conditioningCeiling fansGas central heating and gas for hot waterLow community fee: only €100/yearPrivate garageThe popular La Zenia Boulevard shopping centre, offering a wide variety of shops and entertainment options, is just a short distance away. The area’s stunning beaches and golf courses are only a few minutes’ drive away.





















































