Descripción
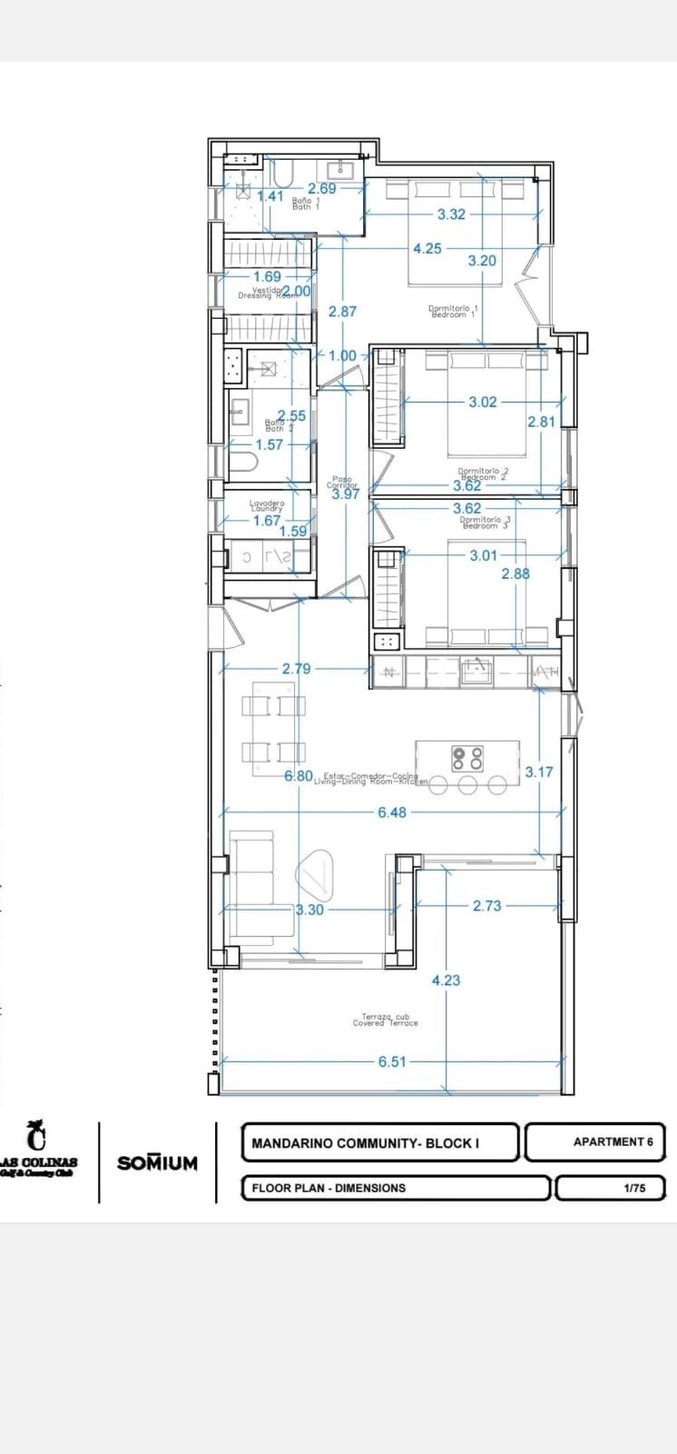
Apartamento de lujo de obra reciente (2023) ubicado en el exclusivo Residencial Los Mandarinos, dentro de Las Colinas Golf & Country Club, Orihuela Costa.~~La vivienda cuenta con 113 m2 construidos y una magnífica terraza de 20 m2, desde donde se disfrutan vistas abiertas y espectaculares al entorno natural. Dispone de 3 amplios dormitorios y 2 baños, uno de ellos en suite con vestidor. La cocina americana totalmente equipada se integra con un luminoso salón, todo exterior, diseñado para aprovechar al máximo la luz y las vistas. Se vende amueblado, con aire acondicionado por conductos, plaza de garaje y trastero. El residencial ofrece una elegante piscina comunitaria infinity.~~Las Colinas Golf es una de las zonas más exclusivas de la Costa Blanca, rodeada de naturaleza protegida, tranquilidad y privacidad, con un prestigioso campo de golf, seguridad 24h y cercanía a playas, servicios y restaurantes de alto nivel. Ideal para quienes buscan lujo, confort y calidad de vida.



































































