Description
Villa de lujo en La Zenia – A minutos de la playa y el golf
Descubre esta impresionante villa en el corazón de La Zenia, donde el lujo, la comodidad y una ubicación privilegiada se combinan a la perfección. Situada a pocos pasos de una amplia selección de restaurantes, a solo 800 metros de las playas de La Zenia y Cabo Roig, y a minutos a pie del famoso centro comercial Zenia Boulevard.
Para los amantes del golf, la zona cuenta con algunos de los mejores campos de la Costa Blanca. Las Ramblas, Villamartín y Campoamor están a solo 5 minutos en coche, mientras que el exclusivo Las Colinas Golf & Country Club se encuentra a 10 minutos.
Detalles de la propiedad:
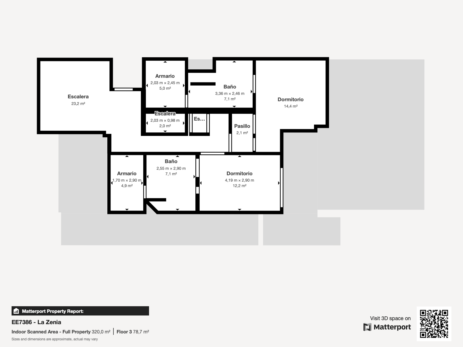
Construida en 2015, esta elegante villa se encuentra en una parcela de 700 m², con una superficie habitable de 280 m². Diseñada para el máximo confort, dispone de 2 amplios dormitorios con baño en suite y vestidor. Además, cuenta con un sótano de 140 m² con un espacioso salón, sauna finlandesa y bodega, ideal para relajarse y disfrutar con amigos o familiares.
Características destacadas:
2 dormitorios | 4 baños
Superficie construida Total: 420 m²
Garaje Privado
Piscina y jardín privados
Ascensor y solárium
Sauna finlandesa y bodega
Orientación Ssur
Extras:
Totalmente amueblada
Amplia terraza
Puerta automática y seguridad
Aire acondicionado y trastero
Zona de barbacoa exterior
Distancias:
Playa: 800 m
Aeropuerto de Alicante: 65 km
Campos de golf: 3,5 km
Esta villa excepcional ofrece un estilo de vida exclusivo en una de las zonas más cotizadas de la Costa Blanca. Ya sea como residencia permanente o como retiro vacacional de lujo, esta propiedad lo tiene todo.
Contáctanos hoy mismo para más información o para agendar una visita.























































































































































