Beskrivning
Moderna duplexlägenheter i hjärtat av Alicante
Exklusivt nybyggnadsprojekt i stadsdelen Benalúa
Upptäck en exceptionell möjlighet att äga en elegant duplexlägenhet i Benalúa, en av de mest livliga och välförbundna stadsdelarna i Alicante. Detta unika projekt förvandlar sex outnyttjade kommersiella enheter till moderna bostadsloft, som erbjuder en modern urban livsstil bara 1 km från Medelhavskusten. Benalúa är känt för sina lokala butiker, kaféer, kulturella aktiviteter och närheten till stadens centrum, vilket gör det till ett mycket eftertraktat område för både boende och investerare.
Modern design i loftstil
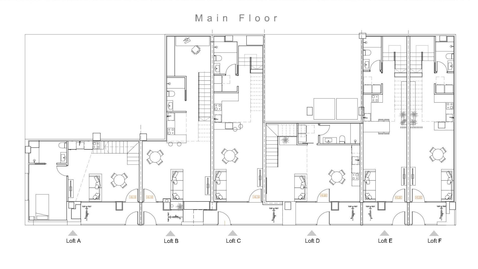
Varje bostad har totalrenoverats för att erbjuda en fräsch, öppen och elegant boyta. Projektet omfattar duplexloft med 1 och 2 sovrum och 2 badrum, alla med imponerande dubbelhöjd som förstärker det naturliga ljuset och ger en äkta loftkänsla. På övervåningen finns ett sovrum och ett komplett badrum, vilket skapar avskildhet och komfort.
Med egen ingång från gatan och privat terrass kombinerar varje lägenhet modern arkitektur med praktisk boendekvalitet. Högkvalitativa ytbehandlingar, modern planlösning och ljusa interiörer gör dessa loft till ett utmärkt val för den som söker stil och funktionalitet.
Komfort och gemensamma bekvämligheter
Boende har tillgång till en gemensam pool i byggnaden, som erbjuder en avkopplande och uppfriskande atmosfär under varma medelhavsdagar. De privata terrasserna och separata ingångarna ger extra bekvämlighet och exklusivitet.
Utmärkt läge nära viktiga sevärdheter
Projektet har ett perfekt läge för både boende och investeringar och omges av viktiga tjänster och stora attraktioner:
Alicantes strandpromenad: 1 km
Renfe tågstation: 0,8 km
El Corte Inglés shoppingcenter: 0,7 km
Alicantes rättspalats: 0,5 km
Alicantes flygplats: 12 km
Alicantes marina och hamn: 2 km
Golfbanor (Alicante Golf): 7 km
Området erbjuder utmärkta kollektivtrafikförbindelser, kulturella sevärdheter, grönområden och enkel tillgång till stadens vackra stränder.
En smart investering i Alicantes kustnära livsstil
Oavsett om du letar efter en permanentbostad, en semesterbostad eller en investering med stark uthyrningspotential, representerar dessa duplexloftlägenheter i Benalúa en unik möjlighet i ett av Alicantes mest lovande områden.
Kontakta oss idag för att reservera ditt exklusiva loft och njut av ett modernt boende i hjärtat av Alicante.
* Tillgång till pool i väntan på godkännande från bostadsrättsföreningen när ändringen av lokalernas användningsområde genomförs.





































