Description
Introducing a unique property by Esentya, positioned in Aguilas, your gateway to the delights of Costa Blanca.
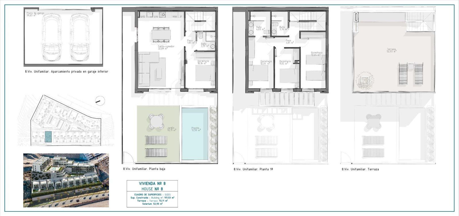
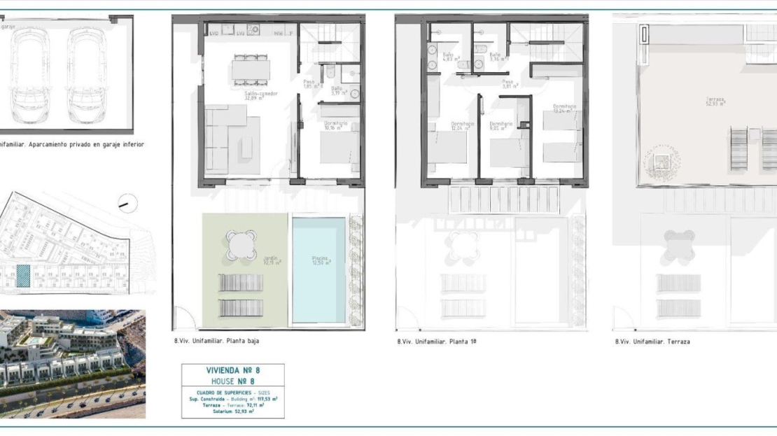
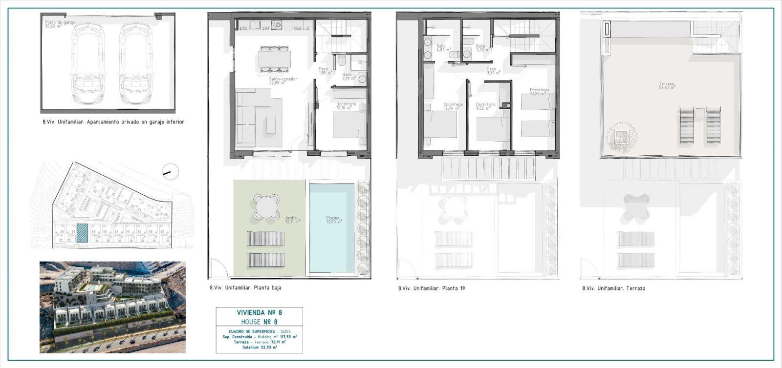
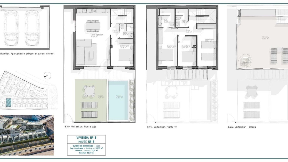
Designed for your ultimate wellbeing, this property accommodates 4 bedrooms and 3 bathrooms, unfolding over a 117 sq.m built area. Each nook and corner exhibits careful detailing.
Features:
– Solarium: Yes
– Pool: Private
Situated at a distance of 0.6 km from the sea, this property offers more than a mere living space.
Specifics of the house:
– 4 Bedrooms
– 3 Bathrooms
– Built Area: 117 m²
– Plot: 90 m²
– Terrace: 72 m²
To explore more about this home, get in touch by completing the contact form.
At Esentya, our international team backed with vast real estate experience, eagerly awaits to help you in your quest for the perfect home.















































