Description
Luxury New Build Villas with in Finestrat near Benidorm
Exclusive Collection of Sustainable Independent Villas
This prestigious development features 36 independent villas in the sought after Bahia Golf urbanization in Finestrat, just 3.5 km from the Mediterranean coast. Designed to combine luxury, comfort and sustainability, these modern homes offer an exceptional lifestyle on the Costa Blanca, surrounded by nature yet close to all services.
Each villa offers 3 or 4 spacious bedrooms, private landscaped gardens and a private infinity pool. Selected units enjoy stunning sea views, while all properties are positioned on generous plots of more than 500 m2 with built areas starting from 222 m2.
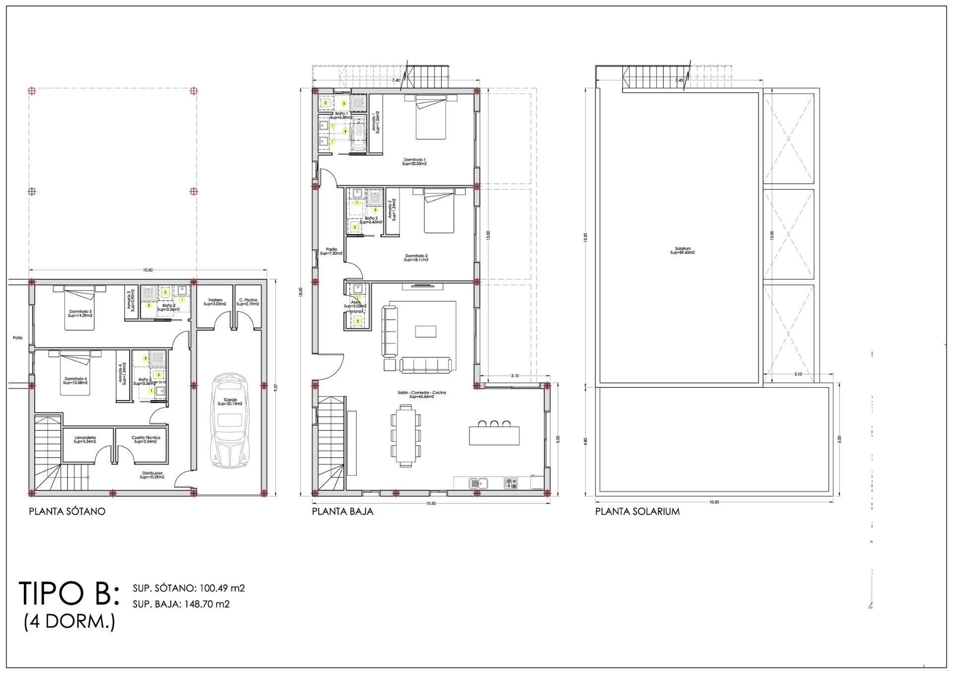
Flexible Layouts with Basement and Rooftop Solarium
Buyers can choose from four different layouts, all carefully designed to maximize space and natural light. Every villa includes a basement level with private parking, storage room, laundry area and two bedrooms with en suite bathrooms connected to an English patio for natural light and ventilation.
The ground floor features one or two additional en suite bedrooms, a guest toilet and an open plan kitchen connected to the living and dining area, with direct access to the terrace and pool. A rooftop solarium crowns each property, offering panoramic mountain or sea views and the option to install a jacuzzi.
High Quality Finishes and BREEAM Energy Efficiency
These villas are built according to BREEAM certification standards, ensuring excellent energy performance and environmental responsibility. Premium specifications include:
Double glazed aluminium windows with thermal break and electric shutters
Fully installed ducted air conditioning
Motorized vehicle access gate
Private swimming pool and landscaped garden
Modern kitchen by PORCELANOSA equipped with appliances
Designer bathrooms with furniture, mirrors and walk in showers
Porcelain tiles by PORCELANOSA
Prime Location Close to Beaches, Golf and Shopping
Finestrat is a charming town located between the mountains and the sea, offering tranquility while being just minutes from vibrant Benidorm. The area combines natural beauty with excellent infrastructure, international schools, restaurants and shopping centers.
Distances to Key Points of Interest
Benidorm beaches 3.5 km
La Marina Shopping Centre 1 km
Puig Campana Golf 3 km
Benidorm Old Town 4 km
Alicante Airport 55 km
Access to A7 motorway 2 km
Live the Mediterranean Dream in Finestrat
These villas offer the perfect balance between luxury, nature and connectivity on the Costa Blanca. Contact us today to receive more information or to arrange a private viewing of these exceptional new build homes in Finestrat.

















































