Descripción
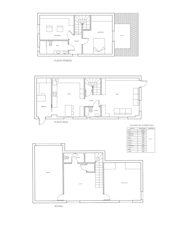
Amplio tríplex con terraza/jardin, situado en una posición abierta y soleada en la zona de Torre de la Horadada.Dormitorios: 3
Baños: 3
Superficie construida: 130 m²Encantadora vivienda adosada en esquina de tres niveles, con tres dormitorios, tres baños, garaje privado cerrado y piscina privada tipo splash pool.Bienvenido a este tríplex en esquina en el corazón de Torre de la Horadada. Esta vivienda ofrece un amplio espacio tanto como casa de vacaciones como para vivir todo el año, con un agradable jardín soleado pavimentado que permite disfrutar del sol junto a la piscina o de comidas al aire libre. Combinando un diseño moderno con prestaciones de alta calidad, este tríplex es ideal para quienes buscan una propiedad con estancias amplias.
La propiedad se encuentra a poca distancia a pie de algunas de las mejores playas de la zona y de todos los servicios esenciales, incluidos restaurantes, tiendas, farmacia y supermercado.La vivienda cuidadosamente diseñada cuenta con una zona de salón-comedor de concepto abierto conectada a una moderna cocina totalmente equipada con electrodomésticos Bosch/Siemens, dos frigoríficos/congeladores y amplias soluciones de almacenamiento. Junto a la cocina se encuentra un práctico cuarto de lavandería/despacho en casa, con espacio para lavadora y almacenaje, y acceso directo al jardín.
La propiedad dispone de tres amplios dormitorios, todos con armarios empotrados. El dormitorio principal ofrece acceso directo a un balcón privado, proporcionando un espacio adicional para el descanso. Los tres baños son modernos.
Desde el salón se accede a un jardín pavimentado con tres toldos, perfectos para proporcionar sombra en los días calurosos (dos de ellos eléctricos).
El punto fuerte de la propiedad es, sin duda, la amplitud de sus estancias y la gran cantidad de espacio de almacenamiento práctico. Relájese en la zona de estar o tome el sol en las tumbonas alrededor de la piscina.
Muchos extras, como:
aire acondicionado frío/calor con control individual
ventiladores de techo
calefacción central de gas y tambien gas para el agua caliente
baja cuota de comunidad: solo 100 €/año
garaje privadoEl popular centro comercial La Zenia Boulevard, que ofrece una amplia variedad de tiendas y opciones de ocio, se encuentra a muy poca distancia. Las impresionantes playas de la zona y los campos de golf están a solo unos minutos en coche.





















































