Beskrivning
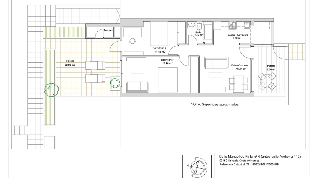
Renovated ground-floor apartment for sale near CC La Rioja in Villamartin.This renovated ground-floor property features a beautiful outdoor space with 2 terraces: 1 at the front, covered and with sun protection, and 1 at the back of 22 m² with storage and a view of the communal garden.The apartment has 2 bedrooms with built-in wardrobes, a bathroom with a walk-in shower, a bright living room with an integrated fitted kitchen with appliances, and a laundry room.This property lies in privileged surroundings on 3km from the beaches, in a consolidated urban area with all kinds of services and amenities nearby, with good links, and close to a junction of the AP-7 motorway. You have all kinds of services for daily living nearby like supermarkets, banks, pharmacies, transport services, etc. The Zenia Boulevard Shopping Centre, one of the most important in the area at over 80,000m2, is just 2 km away. You can enjoy 3 excellent 18-hole golf courses at Golf Villamartín, Real Club de Golf de Campoamor and Golf Las Ramblas de Campoamor, all within 2 km from the development.

















































