Description
Nybyggda lägenheter i Rojales nära golfbanor och stränder
Modernt boende i ett växande område i Rojales
Detta nya bostadsområde ligger i ett modernt expansionsområde i den charmiga staden Rojales, i hjärtat av Costa Blanca South. Projektet består av 14 nybyggda bostäder i sin första fas, utformade för att erbjuda komfort, kvalitet och ett utmärkt läge. Bostadsområdet ligger inom gångavstånd från alla dagliga bekvämligheter såsom stormarknader, restauranger, banker och apotek, vilket gör det idealiskt för både permanent boende och semesteranvändning.
Val mellan bostäder på bottenvåningen eller översta våningen
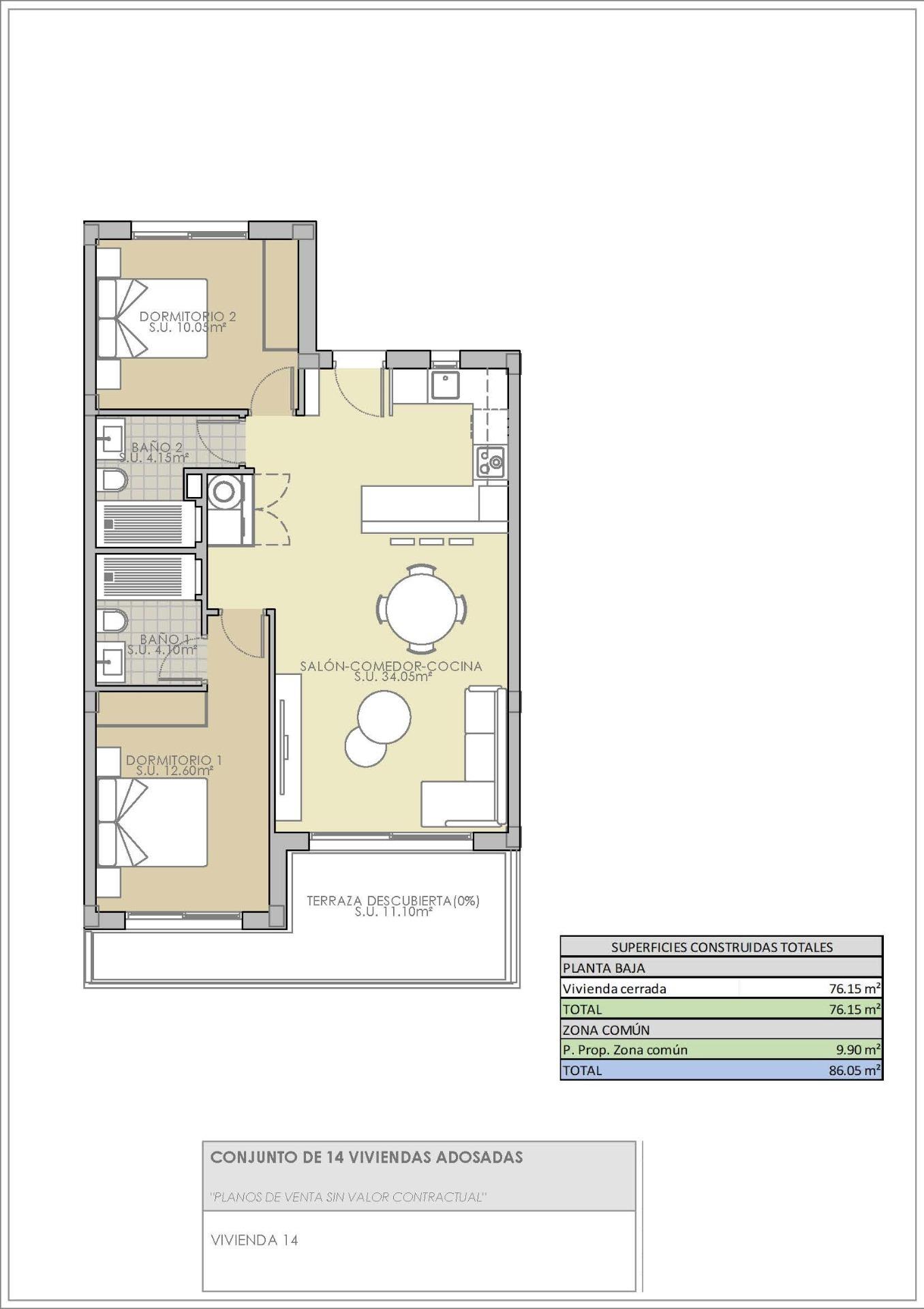
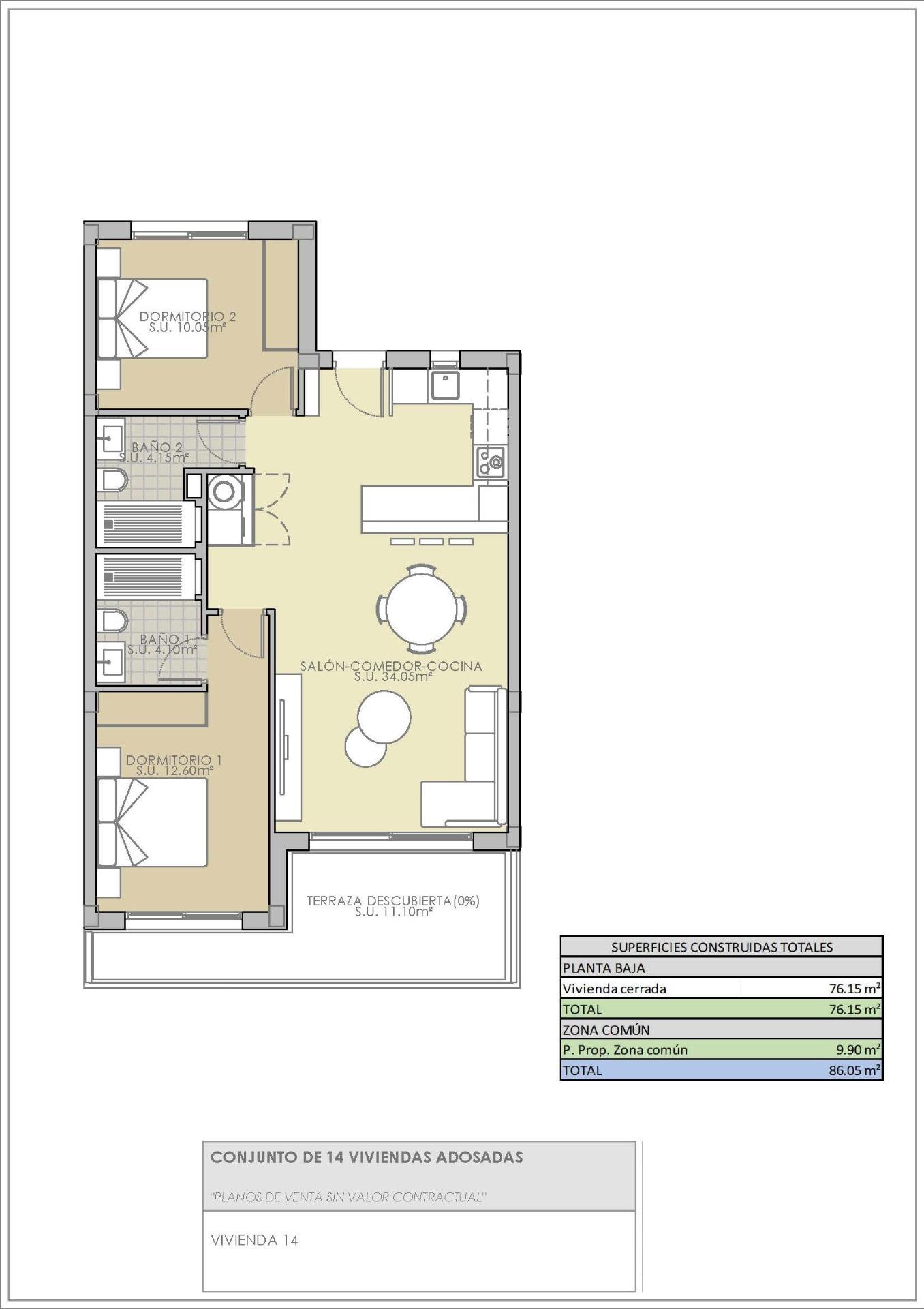
Bostadsområdet erbjuder moderna lägenheter med 2 sovrum och 2 badrum, inklusive ett master bedroom med eget badrum. Köpare kan välja mellan lägenheter på bottenvåningen med rymliga privata terrasser, perfekta för uteliv, eller lägenheter på översta våningen med terrass och privat solarium, idealiska för solbad och avkoppling. Vissa av lägenheterna på översta våningen är tillgängliga med hiss, vilket ger extra bekvämlighet och tillgänglighet.
Högkvalitativa ytbehandlingar och energieffektivitet
Alla lägenheter är byggda med högkvalitativa material och moderna specifikationer. Badrummen har golvvärme, inbyggda möbler med speglar och duschväggar. Köken är fullt möblerade och utrustade med elektriska apparater, med en modern och funktionell design. Motoriserade fönsterluckor ingår, tillsammans med förinstallation för luftkonditionering. Varje bostad har också 1 kW solcellspaneler installerade, vilket bidrar till förbättrad energieffektivitet och minskade driftskostnader, samt förinstallation för en privat jacuzzi.
Parkering och bekvämlighet i området
Varje bostad har en privat parkeringsplats i det underjordiska garaget, vilket ger säkerhet och komfort. Bostadsdesignen fokuserar på praktiskhet och modernt boende och erbjuder en lugn miljö i ett välplanerat nytt stadsområde i Rojales.
Livsstil och omgivning i Rojales
Rojales är en traditionell spansk stad som är känd för sin vänliga atmosfär och utmärkta livskvalitet. Här finns alla nödvändiga tjänster, samt en närliggande naturpark som är idealisk för promenader och utomhusaktiviteter. Området är särskilt populärt bland golfentusiaster, med La Marquesa Golf Course mindre än 2 km bort och ytterligare två golfbanor inom kort köravstånd. De blåflaggade stränderna i Guardamar del Segura ligger bara 7 km bort och erbjuder långa sandstränder och en vacker strandpromenad. Vattenparker och fritidsanläggningar i Rojales och Torrevieja ligger också i närheten.
Avstånd till viktiga sevärdheter
La Marquesa Golf Course: 2 km
Guardamars stränder: 7 km
Torrevieja: 12 km
Alicantes flygplats: 45 km
Murcia Corveras flygplats: 55 km
Ditt nya hem på Costa Blanca
Dessa nybyggda lägenheter i Rojales erbjuder en utmärkt kombination av läge, kvalitet och livsstil. Kontakta oss idag för att få mer information eller för att boka en visning och säkra ditt nya hem på Costa Blanca South.



































































