Beskrivning
Nybyggda bostadslägenheter i Los Balcones, Torrevieja
Moderna bostäder i ett förstklassigt bostadsområde
Upptäck detta attraktiva nybyggda bostadsområde i Los Balcones, ett av de mest populära och etablerade områdena i utkanten av Torrevieja. Beläget i en lugn miljö med utmärkt tillgång till alla nödvändiga tjänster, ligger detta bostadsområde bara 4 km från sandstränderna på Costa Blanca. Los Balcones är känt för sin avslappnade atmosfär, breda gator, grönområden och närhet till sjukhus, stormarknader, restauranger och shoppingcenter, vilket gör det idealiskt för boende året runt eller som semesterbostad.
Moderna lägenheter med privata utomhusutrymmen
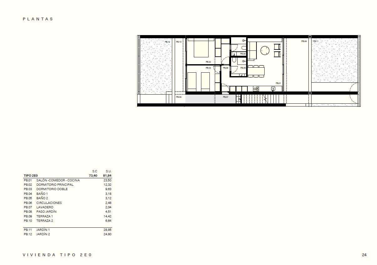
Komplexet består av 52 moderna lägenheter byggda på en total yta av 6700 m2. Varje fastighet har en privat parkeringsplats och ett förråd i källaren. Lägenheterna har 2 eller 3 sovrum och 2 badrum, varav ett är en suite.
Köpare kan välja mellan lägenheter på bottenvåningen med privat trädgård eller lägenheter på övre våningen med rymlig terrass och privat solarium. Dessa planlösningar är utformade för att maximera det naturliga ljuset och erbjuda bekväma inomhus- och utomhusutrymmen för att njuta av Medelhavsklimatet året runt.
Gemensamma utrymmen utformade för avkoppling
Projektet är uppdelat i fyra block som omger ett stort centralt gemensamt utrymme. Detta gröna hjärta i området har en pool med en särskild barnavdelning och vackert anlagda trädgårdar. Dessa gemensamma utrymmen är perfekta för avkoppling, umgänge och familjetid i en säker och vänlig miljö.
Kvalitetsdetaljer och energieffektiv design
Varje lägenhet är byggd enligt moderna standarder och inkluderar förinstallation av luftkonditionering, ett aerotermiskt varmvattensystem för förbättrad energieffektivitet, utomhusbelysning och dubbelglasade fönster. Köken är fullt utrustade och erbjuder ett funktionellt och stilfullt utrymme för det dagliga livet.
Dessa detaljer garanterar hög komfort, lågt underhåll och minskad energiförbrukning, vilket gör bostäderna både praktiska och hållbara.
Utmärkt läge nära stränder och golf
Los Balcones har ett strategiskt läge nära många sevärdheter. Stränderna i Torrevieja ligger cirka 4 km bort. Flera kända golfbanor som Villamartin Golf, Las Ramblas Golf och Campoamor Golf ligger inom 10 till 15 km. Universitetssjukhuset i Torrevieja ligger mindre än 2 km bort, vilket ger bekvämlighet och trygghet.
Torreviejas centrum ligger cirka 5 km bort och är anslutet med buss till Los Balcones, där du hittar ett brett utbud av butiker, restauranger, kulturella evenemang och en livlig småbåtshamn. Alicantes internationella flygplats ligger cirka 42 km bort och erbjuder enkla internationella förbindelser. Torreviejas hamn ligger cirka 6 km bort.
Perfekt för boende eller investering
Med sin moderna design, utmärkta gemensamma utrymmen och förstklassiga läge nära stränder, golfbanor och service är detta nya bostadskomplex i Los Balcones Torrevieja perfekt som permanentbostad, semesterbostad eller investeringsmöjlighet.
Kontakta oss idag för mer information eller för att boka en visning av dessa nybyggda lägenheter i Los Balcones, Torrevieja.
































