Beskrivning
Renoverad hörntakvåning med havsutsikt i La Mata.
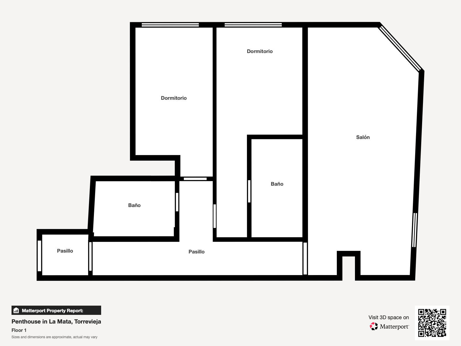
Takvåning på femte våningen, nyligen renoverad och belägen endast 50 meter från stranden i La Mata. Bostaden erbjuder 90 m² boyta och en stor terrass på 45 m² med havsutsikt.
Den har 2 sovrum, 2 badrum, öppet kök och ett ljust vardagsrum med direkt utgång till terrassen. Säljs fullt möblerad och utrustad, med luftkonditionering och västläge.
Egenskaper:
2 sovrum
2 badrum
90 m² byggt
45 m² terrass med havsutsikt
Öppet kök
Luftkonditionering
Västerläge
5:e våningen
Möblerad
Byggnad med hiss
Byggår: 2006
Årliga kostnader:
IBI: 250 €
Föreningsavgift: 400 €
Läge:
50 m till La Mata-stranden
50 m till barer och restauranger
100 m till supermarket
500 m till naturparken Laguna Salada de La Mata































































