Beskrivning
Nybyggda radhus med solarium och garage i källaren i Bigastro Vega Baja
Exklusivt projekt med endast två moderna bostäder
Detta exklusiva nybyggnadsprojekt består av endast två radhus i den lugna staden Bigastro, belägen i Vega Baja-området på Costa Blanca South. Dessa bostäder är utformade med en praktisk planlösning över flera våningar och kombinerar utrymme, komfort och energieffektivitet i ett välförbundet bostadsområde.
Bigastro är känt för sin lugna atmosfär, traditionella spanska karaktär och utmärkta tillgång till närliggande städer, stränder och service. Det erbjuder en avslappnad livsstil samtidigt som det ligger nära allt som behövs för det dagliga livet, vilket gör det idealiskt för både permanent boende och semesteranvändning.
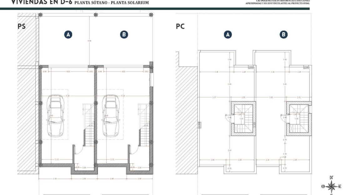
Rymlig planlösning över fyra våningar
Varje fastighet är fördelad över källare, bottenvåning, första våning och takterrass, vilket ger generösa inomhus- och utomhusutrymmen.
Källaren på 59 m2 är utformad som ett privat garage med motoriserad port, vilket erbjuder säker parkering och extra förvaringsutrymme.
På bottenvåningen finns ett ljust vardagsrum med öppen planlösning och kök, en gästtoalett och två terrasser, en på framsidan och en på baksidan, vilket ger naturligt ljus och ventilation under hela dagen.
På första våningen finns 3 sovrum och 2 badrum, varav ett är en-suite, samt en extra terrass. På översta våningen finns ett privat takterrass på cirka 40 m2 som är perfekt för att koppla av, sola eller skapa en utomhuschillout-yta.
Kvalitetsdetaljer och energieffektiva system
Dessa bostäder är byggda med moderna material och genomtänkta detaljer för att säkerställa komfort och effektivitet, inklusive:
Förstärkt säkerhetsdörr
Aerotermiskt system för varmvatten
Solcellspaneler
Elektriska fönsterluckor i vardagsrum och sovrum
Förinstallation av luftkonditionering
Motoriserad garageport
Boende har också tillgång till den gemensamma poolen inom urbanisationen, vilket ger extra värde för fritid och avkoppling.
Bra läge nära stränder och service
Bigastro centrum 0,5 km
Orihuela stad 5 km
Guardamar del Segura stränder 15 km
Zenia Boulevard Shopping Center 20 km
Vega Baja sjukhus 10 km
Alicante internationella flygplats 48 km
Flera golfbanor inom 15 km
Den närliggande motorvägen AP 7 erbjuder snabba förbindelser till Alicante, Murcia och de omgivande kuststäderna.
Ett utmärkt tillfälle i ett växande bostadsområde
Med lokala butiker, skolor, idrottsanläggningar, parker och restauranger blir Bigastro alltmer populärt bland både nationella och internationella köpare som söker livskvalitet och bra förbindelser.
Kontakta oss idag för att få mer information eller för att boka en visning av dessa exklusiva nybyggda radhus i Bigastro.



















































