Beskrivelse
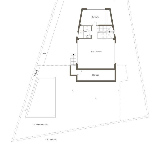
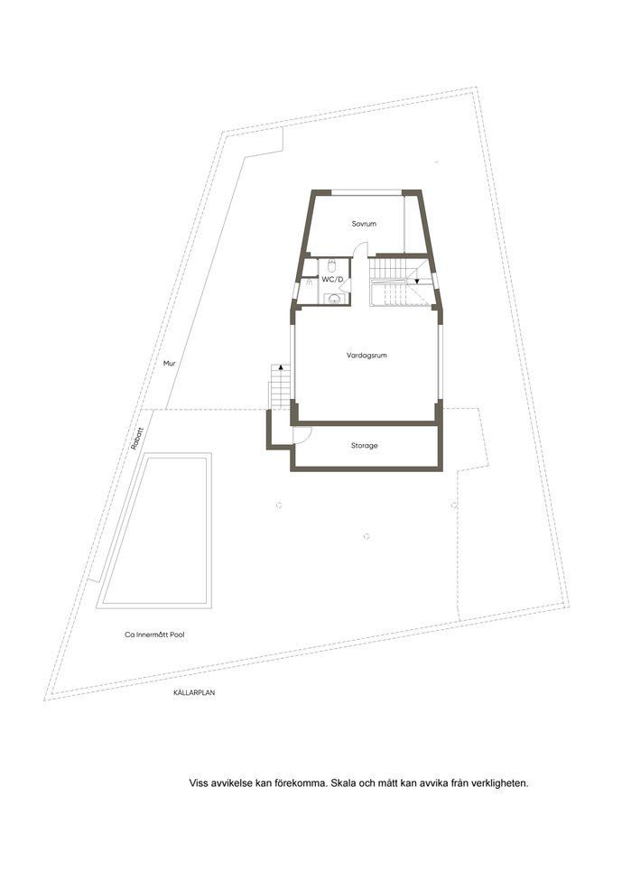
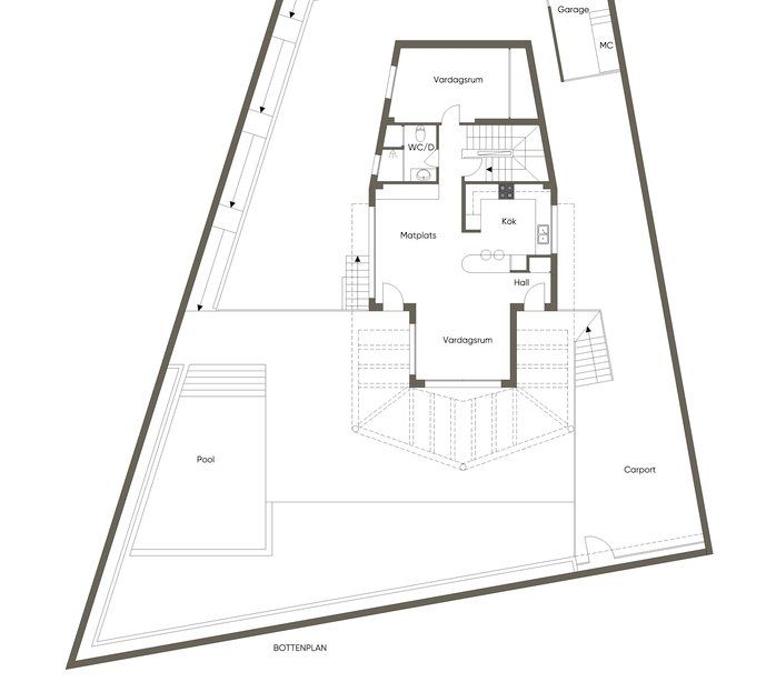
Welcome to this elegant and well-planned villa in the popular area of Rosaleda – a residence beyond the ordinary. Here you live only 100 metres from the sea, with fantastic views of the water and close to the beach, sun and swimming.The villa is located in a pleasant area within walking distance of cozy restaurants, small shops and public transport. For those interested in sports, there are several paddle courts within easy reach by car.When you enter, you are greeted by a bright and airy open-plan living room with space for both a sofa group and a dining table. The kitchen is modern and tastefully decorated with generous work surfaces, plenty of storage and all the equipment you could possibly need. The windows above the sink provide a nice light and create a homely feeling. From the living room you can access a spacious terrace – perfect for relaxing or socializing.As you enter, you are greeted by a bright and airy open-plan living room with space for both a sofa group and dining table. The kitchen is modern and tastefully decorated with generous work surfaces, plenty of storage and all the equipment you could possibly need. The windows above the sink provide a nice light and create a homely feeling. From the living room you can access a spacious terrace – perfect for relaxing or socializing.The villa has four bedrooms spread over three floors and three fully tiled bathrooms. All bedrooms have fitted wardrobes and plenty of storage. The two bedrooms upstairs also have access to a private terrace with views of the sea and surroundings. In the basement there is a large living room, perfect as an extra living room or games room.The generous roof terrace offers an unrivalled panoramic view of the sea and has space for sun loungers, a lounge area and a jacuzzi – an ideal place to enjoy the sunset.Among the many amenities of the house are a heated saltwater pool, conduct AC, underfloor heating throughout the house, central vacuum cleaner and a garage.This is a property that combines style, comfort and a great location – perfect for those looking for something special.Property tax (IBI): 726 euros/year































































