Beskrivelse
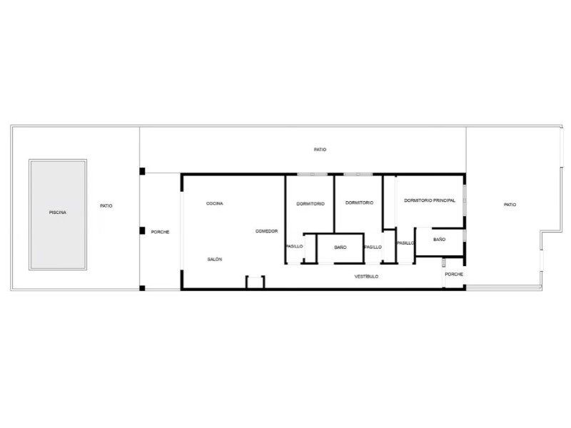
This newly renovated detached villa in the peaceful residential area of El Chaparral, Torrevieja, offers a perfect blend of elegance, comfort, and efficiency. Crafted with premium materials, it features three spacious bedrooms with built-in wardrobes and two sleek bathrooms, including a luxurious en suite. Both bathrooms boast stylish walk-in showers and underfloor heating. The heart of the villa is a bright, open-plan living area seamlessly connected to a fully equipped modern kitchen. This inviting space opens onto a covered terrace overlooking a private pool with an outdoor shower, perfect for enjoying the sunny southwest orientation.Designed for year-round comfort, the villa includes electric blinds in the living room, ducted air conditioning, and energy-saving features like solar panels and a solar water heater. The property also offers an electric entrance gate, private parking, a separate storage room, and an advanced security system.El Chaparral is a tranquil residential area on the outskirts of Torrevieja, surrounded by nature and close to the iconic La Mata and Torrevieja saltwater lakes. Renowned for its family-friendly ambiance, this location provides a wide array of amenities and excellent transport links. The beautiful beaches of Torrevieja and Guardamar are just a short drive away.This villa is ideal for both year-round living and unforgettable holidays, offering privacy, convenience, and a relaxed, high-quality lifestyle in a picturesque setting.

























