Beskrivelse
Nye boliger i skandinavisk stil i Aguas Nuevas Torrevieja
Eksklusivt nytt boligprosjekt
Velkommen til dette spennende nye boligprosjektet i Aguas Nuevas, et av de mest attraktive områdene i Torrevieja. Dette moderne prosjektet består av totalt 31 boliger, inkludert 16 stilige leiligheter og 15 romslige villaer, alle designet med materialer av høy kvalitet og planløsninger tilpasset moderne middelhavsliv. Prosjektet kombinerer komfort, design og en utmerket beliggenhet nær sjøen og alle daglige tjenester.
Skandinavisk inspirert design og naturlig lys
Boligene er inspirert av skandinavisk arkitektur, med åpen planløsning, rene linjer og store vinduer som fyller hvert rom med naturlig lys. Dette designet skaper lyse, luftige og innbydende boliger med en sterk følelse av rom og komfort, ideelt for både permanent boende og ferier på Costa Blanca.
Moderne leiligheter med private uteområder
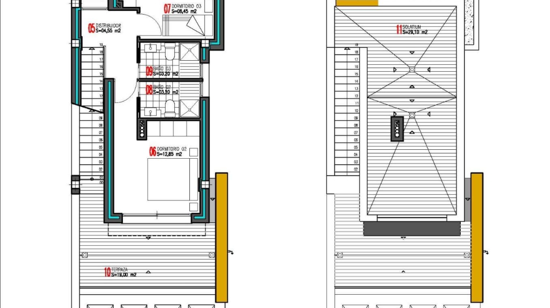
Leilighetene har 2 soverom og 2 bad, inkludert et hovedsoverom med eget bad. Leilighetene i første etasje har private hager, mens leilighetene i mellomste etasje og penthouse-leilighetene har store terrasser som er perfekte for uteservering og avslapning. Alle leilighetsblokkene er utstyrt med heiser, noe som sikrer komfort og tilgjengelighet for alle beboere.
Romslige villaer med privat basseng
Villaene har 3 soverom og 3 bad fordelt på to etasjer, pluss et privat solarium. Hver villa har et privat svømmebasseng og gulvvarme drevet av aerotermisk energi, som gir komfort og energieffektivitet hele året. Disse boligene er ideelle for de som søker privatliv, plass og en førsteklasses livsstil nær stranden.
Kvalitetsfunksjoner og fellesarealer
Alle boliger har elektriske persienner, pansrede inngangsdører, fullt utstyrte bad med møbler, speil og elektrisk håndklestativ, aerotermisk system for varmt vann, fullt installert kanalisert klimaanlegg, privat parkering og et interiørbelysningspakke. Fellesarealene inkluderer et vakkert svømmebasseng, et fullt utstyrt treningsstudio og praktiske parkeringsplasser for biler og sykler, noe som oppmuntrer til en aktiv og avslappet livsstil.
Førsteklasses beliggenhet i Torrevieja
Aguas Nuevas er et veletablert boligområde kjent for sin utmerkede infrastruktur, supermarkeder, restauranter og nærhet til kysten. Stranden ligger bare 0,8 km unna, mens det livlige sentrum av Torrevieja med sin promenade, marina og fritidstilbud ligger bare noen få minutter unna med bil eller buss. Området har et sunt middelhavsklima og er omgitt av naturområder og saltsjøer.
Avstander til interessante steder
Strand 0,8 km
Torrevieja marina 3 km
La Mata-stranden 2,5 km
Las Salinas naturpark 2 km
Villamartin Golf 10 km
Alicante flyplass 42 km
Ditt nye hjem på Costa Blanca
Dette nye prosjektet i Aguas Nuevas tilbyr en utmerket mulighet til å kjøpe et hjem av høy kvalitet til en konkurransedyktig pris i et av Torreviejas mest ettertraktede områder. Kontakt oss i dag for å få mer informasjon eller avtale et besøk og sikre deg ditt nye hjem ved Middelhavet.



































