Descripción
Apartamentos modernos con impresionantes vistas a los viñedos en Hondón de las Nieves
Elegantes apartamentos de nueva construcción en un apacible valle
Descubra estos modernos apartamentos en Hondón de las Nieves, una encantadora localidad enclavada en un pintoresco valle rodeado de olivares y almendros. Este exclusivo complejo residencial ofrece apartamentos de 1, 2 y 3 dormitorios, todos ellos diseñados para proporcionar confort, eficiencia energética e impresionantes vistas a los viñedos del Vinalopó.
Situada en la comarca del Vinalopó Medio, esta tranquila zona es perfecta para quienes buscan un estilo de vida mediterráneo relajado con fácil acceso a la naturaleza y a los servicios esenciales.
Características de alta calidad para una vida moderna
Cada apartamento está construido con materiales y acabados de primera calidad, garantizando tanto estilo como funcionalidad:
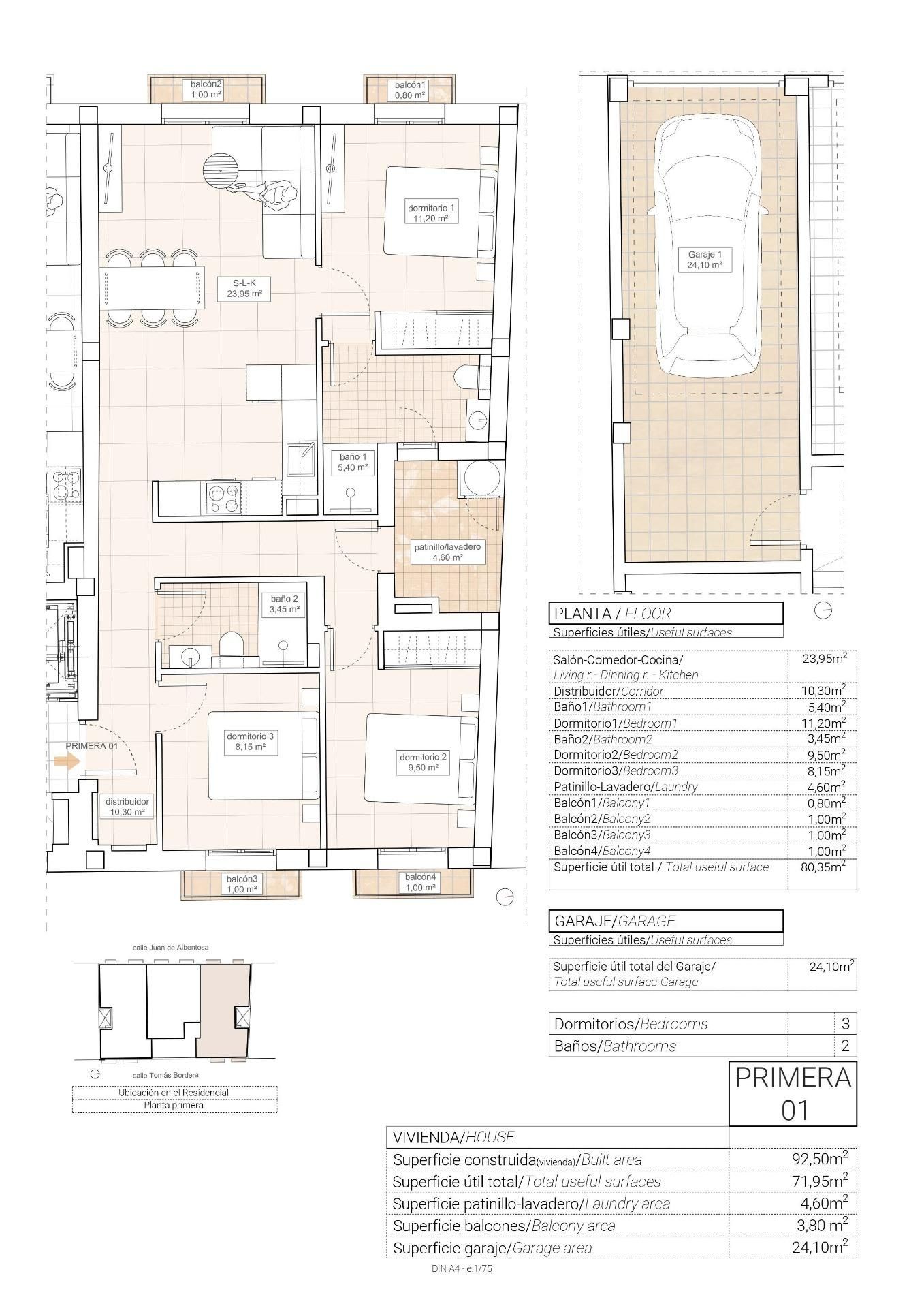
Amplios interiores con distribuciones diáfanas.
Cocinas totalmente amuebladas con encimeras de granito.
Baños de alta gama con cisternas empotradas y sanitarios de primera calidad.
Diseño energéticamente eficiente con calefacción de agua por aerotermia.
Preinstalación de aire acondicionado por conductos para mayor comodidad durante todo el año.
Ventanas de aluminio con doble acristalamiento y aislamiento térmico.
Puerta de entrada de seguridad reforzada para mayor tranquilidad.
Garaje privado en la planta baja incluido.
Acceso en ascensor para mayor comodidad.
Además, los paneles solares están instalados en la azotea para mejorar la eficiencia energética y reducir los costos de servicios públicos.
Ubicación privilegiada en Hondón de las Nieves
Hondón de las Nieves es un encantador pueblo español conocido por su producción de vino, su cultura tradicional y sus paisajes pintorescos. La ciudad cuenta con edificios históricos, mercados locales y senderos naturales, por lo que es un lugar fantástico tanto para la vida permanente y retiros de vacaciones.
Esta nueva promoción está situada en una zona tranquila pero bien comunicada, que ofrece fácil acceso a servicios esenciales y lugares clave:
Aeropuerto de Alicante – 30 km (30 minutos en coche)
Playas de Alicante – 35 km (35 minutos en coche)
Elche – 20 km (20 minutos en coche)
Parque Natural de Crevillente – 10 km (15 minutos en coche)
Campos de Golf – 25 km (30 minutos en coche)
Su hogar perfecto en el corazón de la campiña alicantina
Disfrute de la tranquilidad del Valle del Hondón mientras permanece cerca de las vibrantes ciudades de Alicante y Elche. Tanto si busca una casa de vacaciones, una inversión inmobiliaria o un lugar tranquilo para vivir todo el año, estos modernos apartamentos son la elección perfecta.
Póngase en contacto con nosotros hoy mismo para obtener más información o para concertar una visita.






