Description
APARTAMENTOS DE OBRA NUEVA EN TORREVIEJA CERCA DE LA PLAYA
Promoción de obra nueva de 8 apartamentos y áticos de lujo en Torrevieja situados a tan solo 150 metros de la playa.
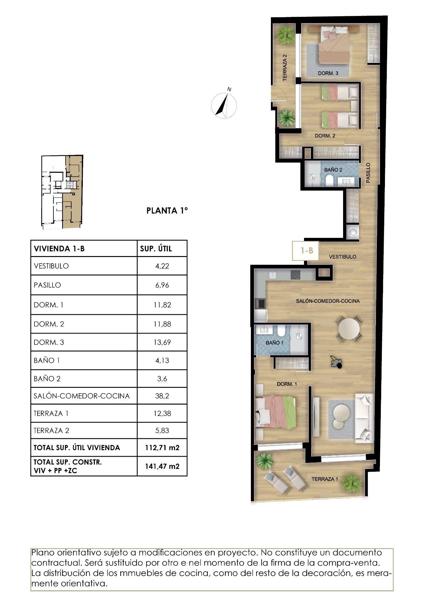
Las modernas viviendas disponen de 3 dormitorios, 3 baños, cocina americana con el salón, suelos radiantes en los baños, amplias terrazas, armarios y cocina totalmente equipados.
Áticos con solarium privado.
Piscina comunitaria y sauna de acabado, solarium en la azotea con barbacoa.
Una plaza de aparcamiento subterráneo opciones a un costo adicional.
Fecha de finalización a finales de 2025
Torrevieja es una ciudad española en la provincia de Alicante, en la Costa Blanca.
Es conocida por su clima típicamente mediterráneo y su costa. Cuenta con paseos marítimos con complejos turísticos a lo largo de sus playas de arena.
El pequeño Museo del Mar y de la Sal alberga exposiciones sobre la historia pesquera y salinera de la ciudad.
En el interior, el Parque Natural de las Lagunas de La Mata-Torrevieja cuenta con senderos y dos lagunas saladas, una rosa y otra verde.
El aeropuerto de Alicante está a 40 minutos y el de Murcia, a 1 hora.











































































































































