Descripción
Villa de lujo de nueva construcción en venta en La Zenia, Orihuela Costa
Vida exclusiva cerca de la playa en la Costa Blanca
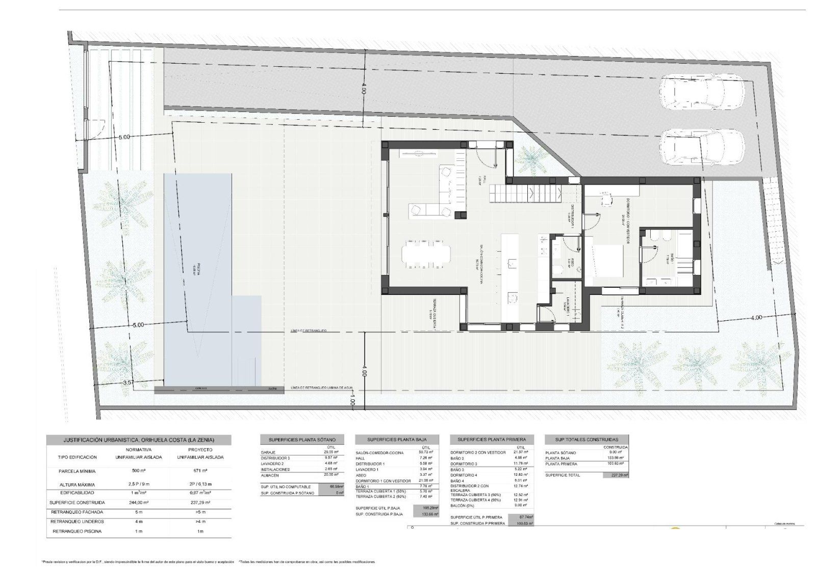
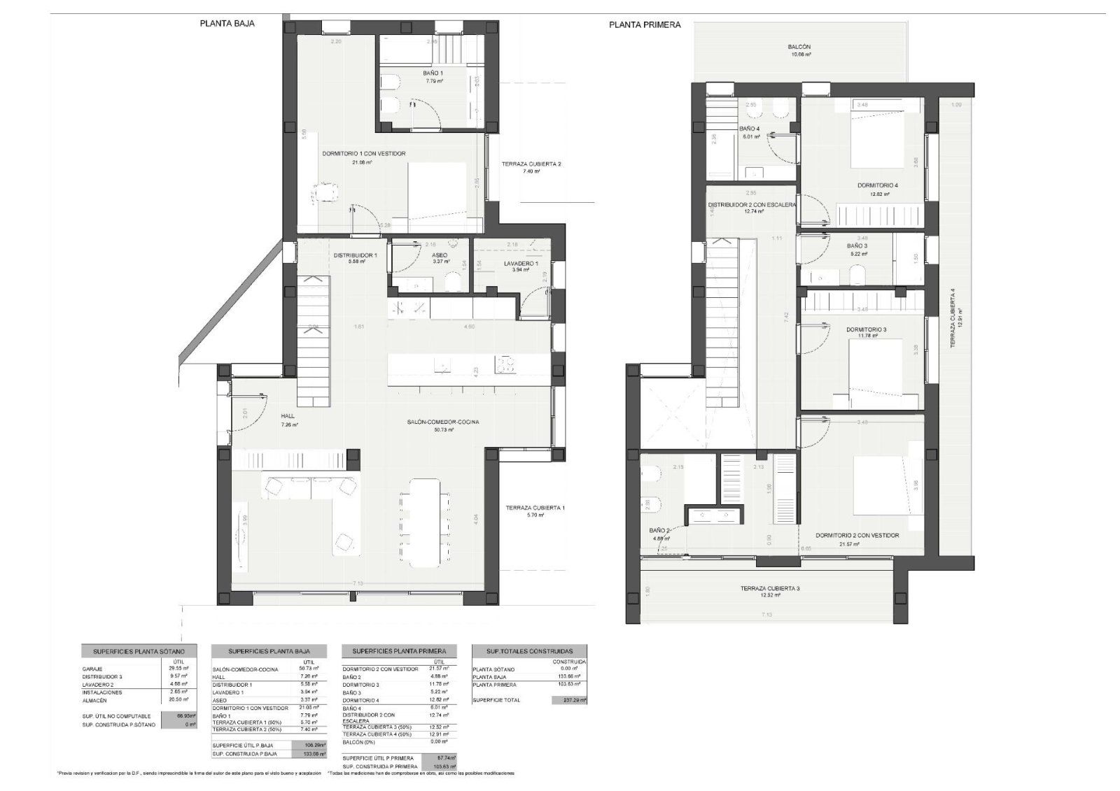
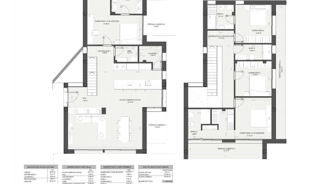
Situada a solo 600 m de las playas de arena de La Zenia, esta impresionante villa de lujo en Orihuela Costa ofrece el equilibrio perfecto entre comodidad, diseño y estilo de vida mediterráneo. Con 4 amplios dormitorios, cada uno con su propio cuarto de baño en suite, además de un aseo para invitados, esta casa es ideal para familias o para aquellos que buscan un espacioso refugio vacacional cerca del mar.
Diseño premium y características exteriores
Situada en una generosa parcela privada de 670 m2, la villa está diseñada con acabados de alta calidad y atención al detalle. Cuenta con:
Orientación sur-sureste para una óptima luz natural
Gran piscina privada
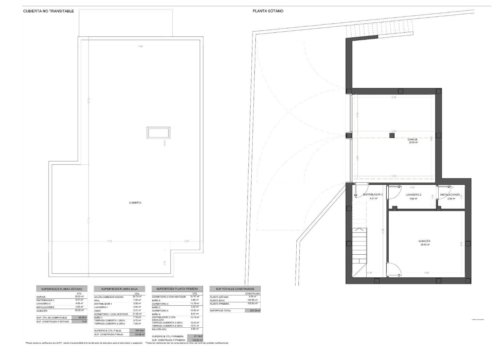
Garaje subterráneo privado con espacio para 2 vehículos y parking en superficie para varios vehículos adicionales.
Precioso jardín paisajístico ideal para la vida al aire libre
Esta propiedad le permite disfrutar del clima soleado de la Costa Blanca durante todo el año.
Ubicación privilegiada en La Zenia
La Zenia es una zona residencial muy cotizada en Orihuela Costa, conocida por su animada comunidad, sus servicios durante todo el año y su proximidad a la playa. Los residentes disfrutan de acceso a:
Centro comercial La Zenia Boulevard: 2,5 km
Campo de golf Villamartín: 4,5 km
Centro de Torrevieja: 9 km
Aeropuerto de Alicante: 40 km
Aeropuerto de Murcia-Corvera: 60 km
Rodeada de restaurantes, bares, colegios internacionales y supermercados, La Zenia es una de las zonas más dinámicas del sur de la Costa Blanca.
Asegúrese la villa de sus sueños en La Zenia
Tanto si busca una residencia familiar de lujo como una inversión de primera calidad en la costa mediterránea, esta villa es una oportunidad excepcional. Póngase en contacto con nosotros hoy mismo para obtener más información, concertar una visita y hacer realidad la casa de sus sueños antes de que sea demasiado tarde.

































































