Beskrivelse
NYBYGDE LEILIGHETER OG TOPPLEILIGHETER NÆR STRANDEN I TORREVIEJA
Nybygde leiligheter med en av de beste beliggenhetene du kan finne, som ligger 50 meter fra Los Locos-stranden.
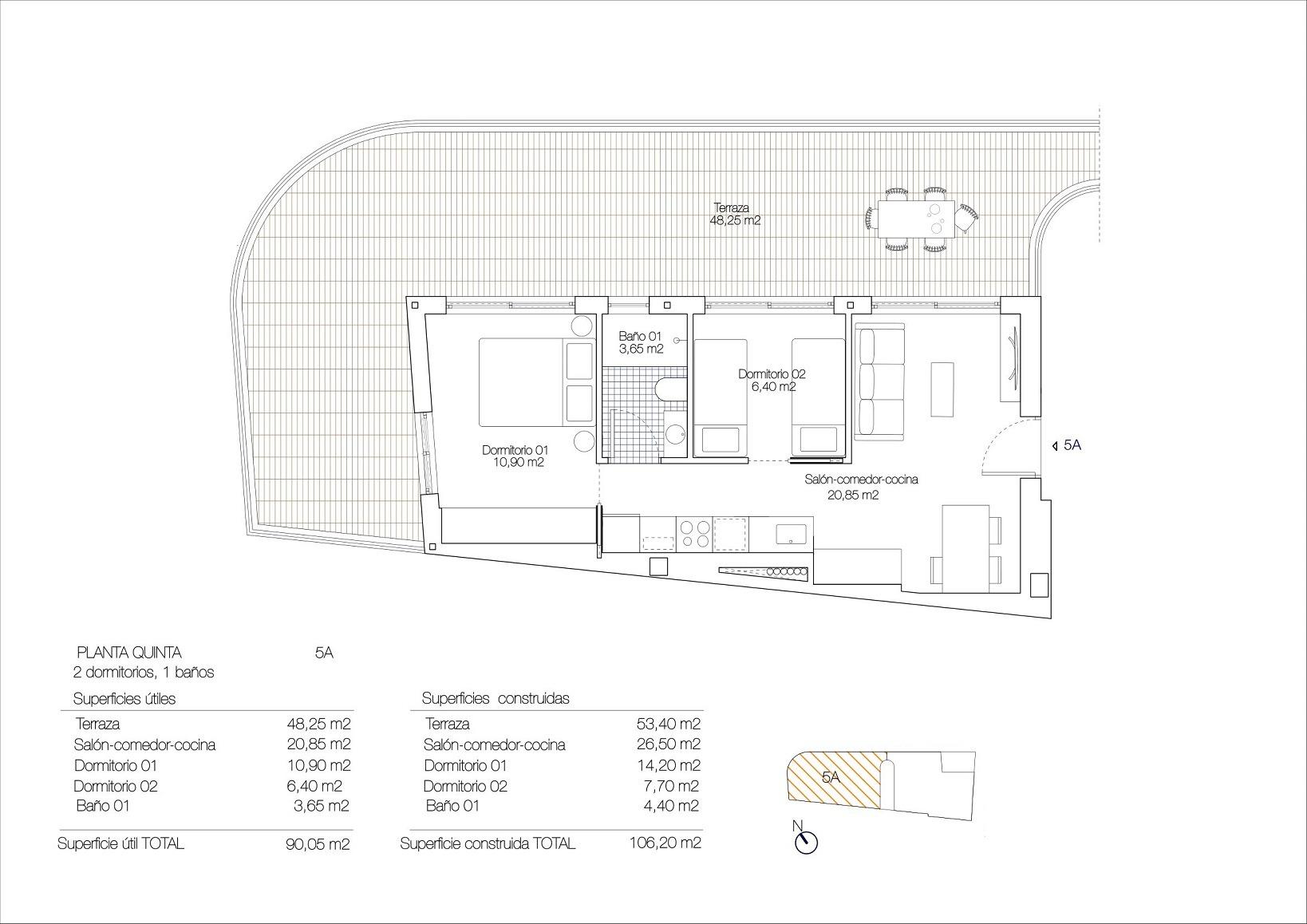
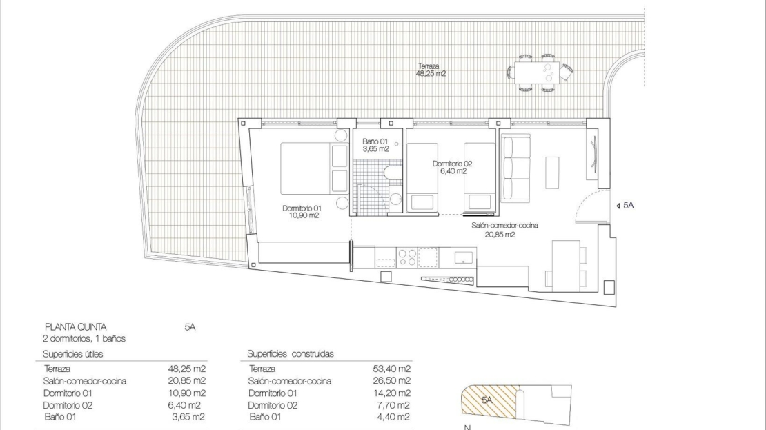
Bolig består av leiligheter med 2 og 3 soverom og toppleiligheter med 1 og 2 soverom, åpen planløsning med romslig planløsning, kjøkken utstyrt med topp merkevareapparater og garderober, fullt utstyrte bad med gulvvarme.
Nybygget boligkompleks med moderne design og finish av høy kvalitet.
Torreviejas Playa de Los Locos har en hyggelig promenade med en rekke barer, restauranter og chiringuitos hvor du kan nyte autentiske spanske paellaer.
Torrevieja er en spansk by i provinsen Alicante, på Costa Blanca.
Den er kjent for sitt typiske middelhavsklima og kystlinje. Den har strandpromenader med feriesteder langs sandstrendene.
Det lille hav- og saltmuseet har utstillinger om byens fiske- og salthistorie.
I innlandet har naturparken Lagunas de La Mata-Torrevieja stier og to salte laguner, en rosa og en grønn.
Alicante flyplass ligger 40 minutter unna og Murcia flyplass ca. 1 time unna.














