Descripción
APARTAMENTOS Y ÁTICOS DE OBRA NUEVA CERCA DE LA PLAYA EN TORREVIEJA
Apartamentos de obra nueva con una de las mejores ubicaciones que se pueden encontrar, situados a 50 metros de la playa de Los Locos.
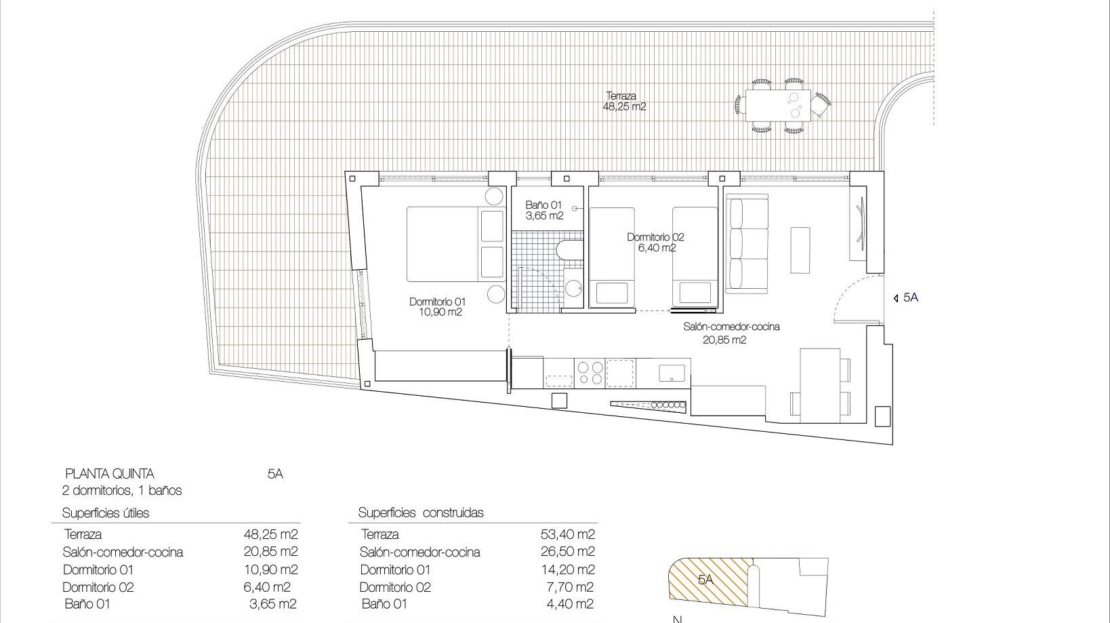
Residencial consiste apartamentos de 2 y 3 dormitorios y áticos de 1 y 2 dormitorios, salón diáfano con amplia distribución, cocina equipada con electrodomésticos de primeras marcas y armarios empotrados, baños completos con calefacción por suelo radiante.
Complejo residencial de obra nueva con diseño moderno y acabados de alta calidad.
Torreviejas Playa de Los Locos cuenta con un agradable paseo marítimo con gran variedad de bares, restaurantes y chiringuitos donde poder saborear auténticas paellas españolas.
Torrevieja es una ciudad española de la provincia de Alicante, en la Costa Blanca.
Es conocida por su clima y su costa típicamente mediterráneos. Cuenta con paseos marítimos con complejos turísticos a lo largo de sus playas de arena.
El pequeño Museo del Mar y de la Sal alberga exposiciones sobre la historia pesquera y salinera de la ciudad.
En el interior, el Parque Natural de las Lagunas de La Mata-Torrevieja cuenta con senderos y dos lagunas saladas, una rosa y otra verde.
El aeropuerto de Alicante está a 40 minutos y el de Murcia, a 1 hora.














