Descripción
Desde Esentya, te presentamos una propiedad única.
Ubicada en Finestrat, esta vivienda tiene todo lo que necesitas para disfrutar de la Costa Blanca.
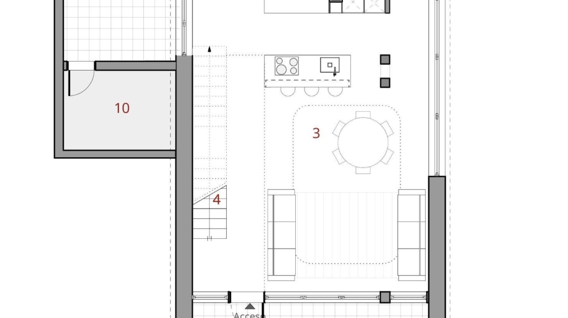
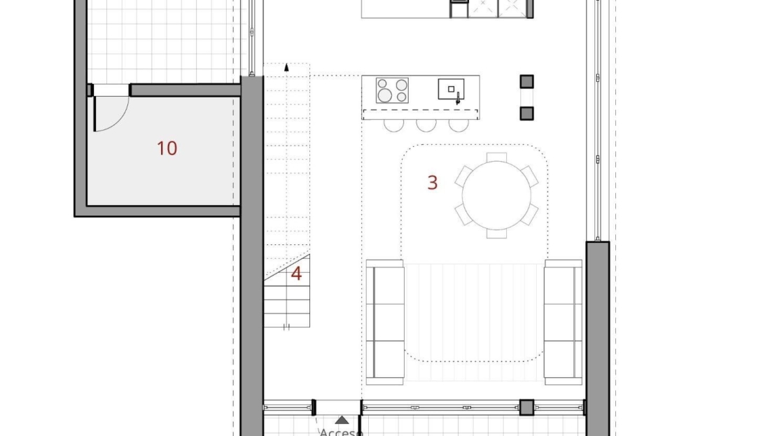
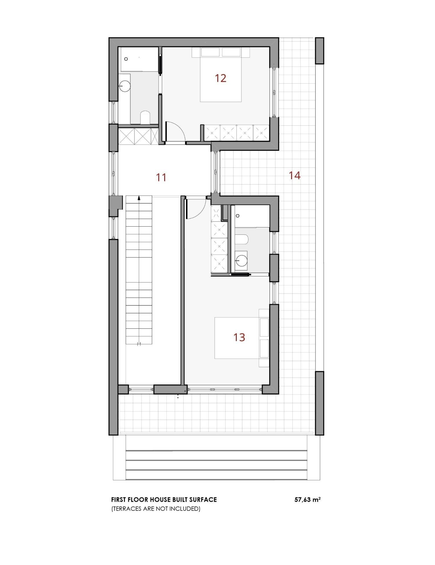
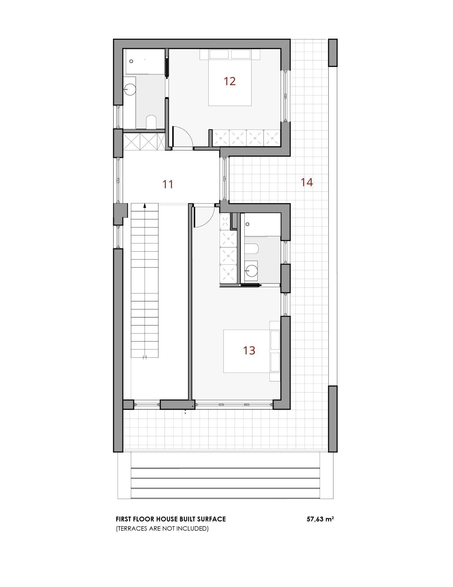
La vivienda cuenta con 3 habitaciones y 3 baños. Distribuidos en una superficie construida de 198 m², cada rincón de este hogar está diseñado meticulosamente para tu bienestar.
Características destacadas
Piscina: Sí, Tipo: Privada.
Vistas: Mar.
Distancia al mar: 3 kilómetros.
Características generales de la vivienda:
3 Habitaciones
3 Baños
Superficie Construida: 198 m².
Terreno Total: 564 m².
Terraza: 1.
Tamaño: 60 m².
Descubre esta vivienda y más completando el formulario de contacto
En Esentya, contamos con un equipo internacional con vasta experiencia en el sector inmobiliario. Estaremos encantados de ayudarte a encontrar la vivienda que deseas.

























