Description
VILLA JUMELÉE PRÊTE À L’EMPLOI À FUENTE ALAMO, MURCIA
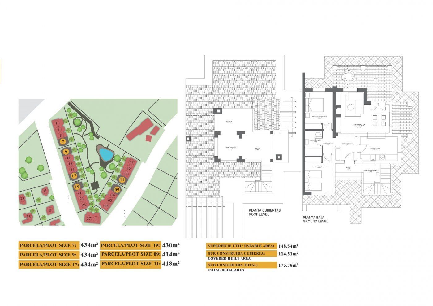
Résidence de maisons de ville, villas indépendantes et jumelées à Fuente Álamo, Murcia.
Vous pouvez choisir parmi sept modèles de maisons différents, conçus pour répondre aux goûts de chacun.
Des conceptions rustiques combinées à des matériaux de première qualité et un accent mis sur un espace de vie confortable, il y en a pour tous les goûts.
Les résidents de cette communauté privée de belles maisons spacieuses pourront également profiter de leurs propres jardins et piscines communs.
Cette villa jumelée au design inhabituel comprend 2 chambres à coucher et 1 salle de bains, une cuisine indépendante, un salon avec des portes-fenêtres donnant sur le porche couvert et une terrasse semi-couverte sur le toit.
Une option pour une piscine privée à un coût supplémentaire.
Fuente Álamo de Murcia est une ville et une municipalité de la région de Murcie, dans le sud de l’Espagne. Elle est située à 22 km au nord-ouest de Carthagène et à 35 km au sud-ouest de Murcie.
La ville se trouve dans le bassin de la Mar Menor, entourée par les montagnes d’Algarrobo, Los Gómez, Los Victorias et le Carrascoy.
L’eau de ces montagnes s’écoule dans la Rambla de Fuente Álamo et ensuite dans la Mar Menor.
Fuente Álamo se trouve à 30 minutes de l’aéroport de Murcia – Corvera.



































































































