Description
BELLE GRANDE VILLA AVEC VUE SUR LE GOLF “LA MARQUESA” !
Cette belle villa, située à 50 mètres du parcours de golf de La Marquesa, en plus d’avoir une vue dégagée et belle et d’offrir la tranquillité d’être dans un environnement calme, se trouve à quelques mètres du centre commercial avec commerces, supermarché, bars et restaurants internationaux. À seulement 5 minutes de la ville de Rojales avec tous les services et à 15 minutes des spectaculaires plages Pavillon bleu de Guardamar del Segura. L’aéroport d’Alicante-Elche est à 35 minutes.
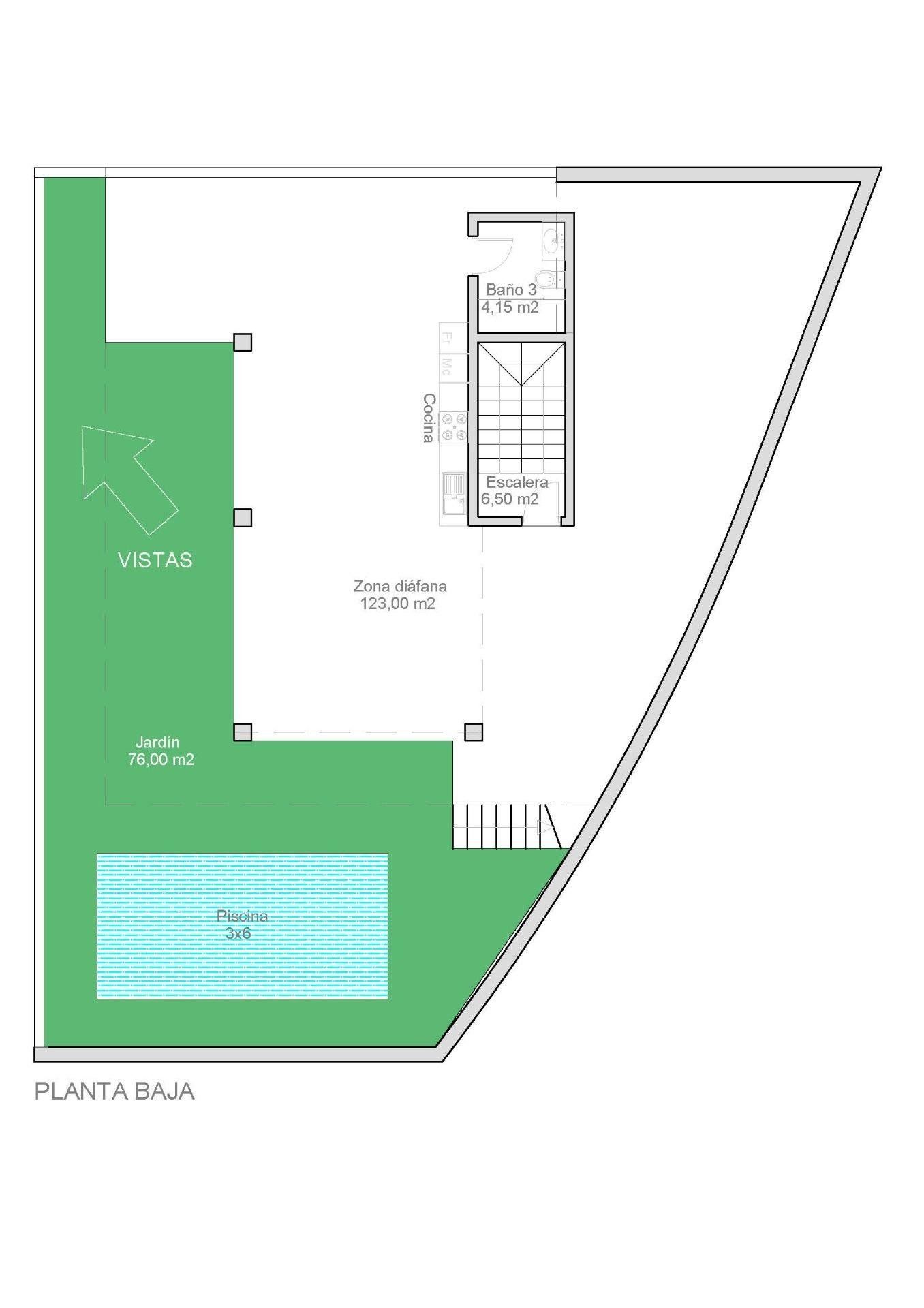
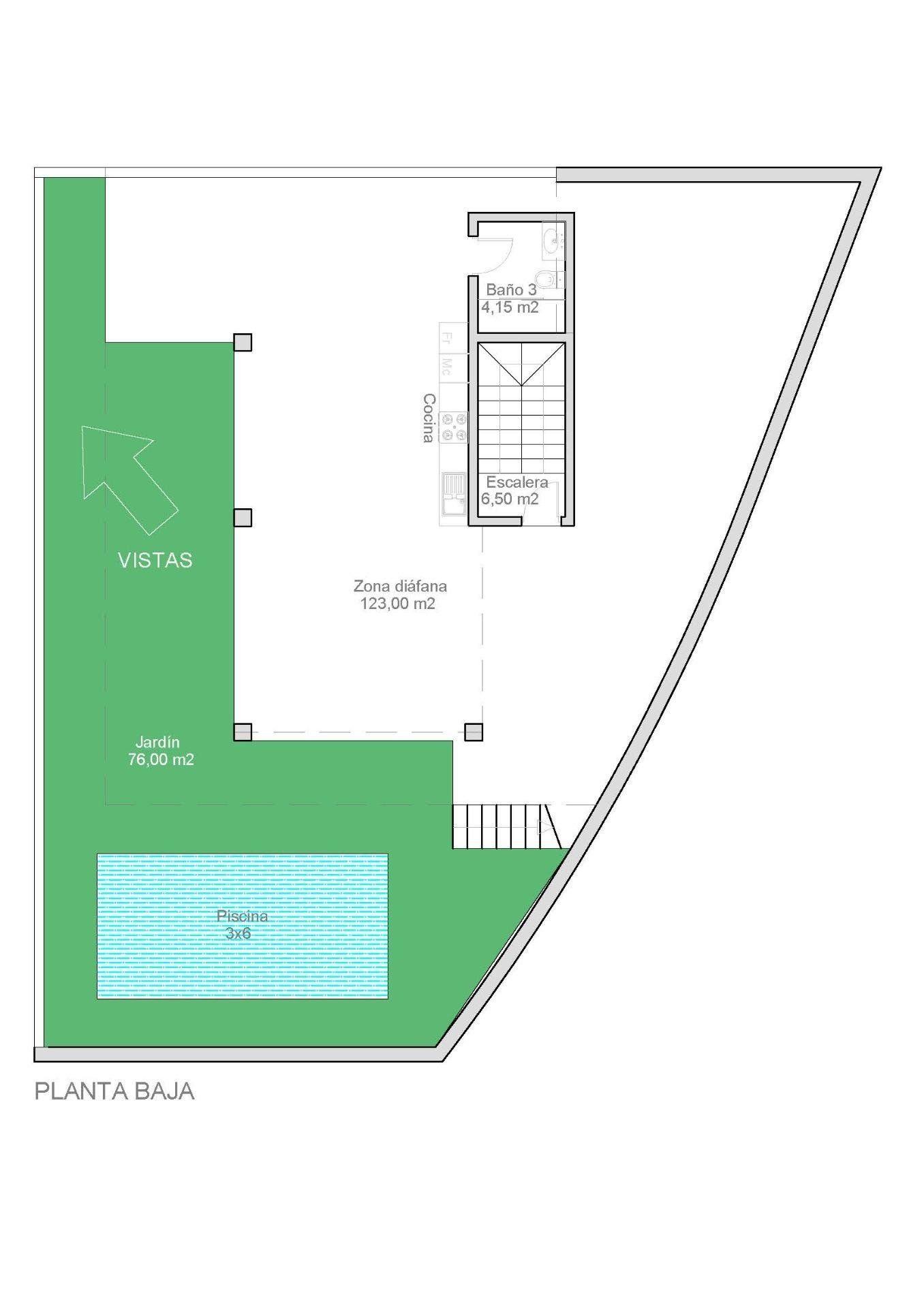
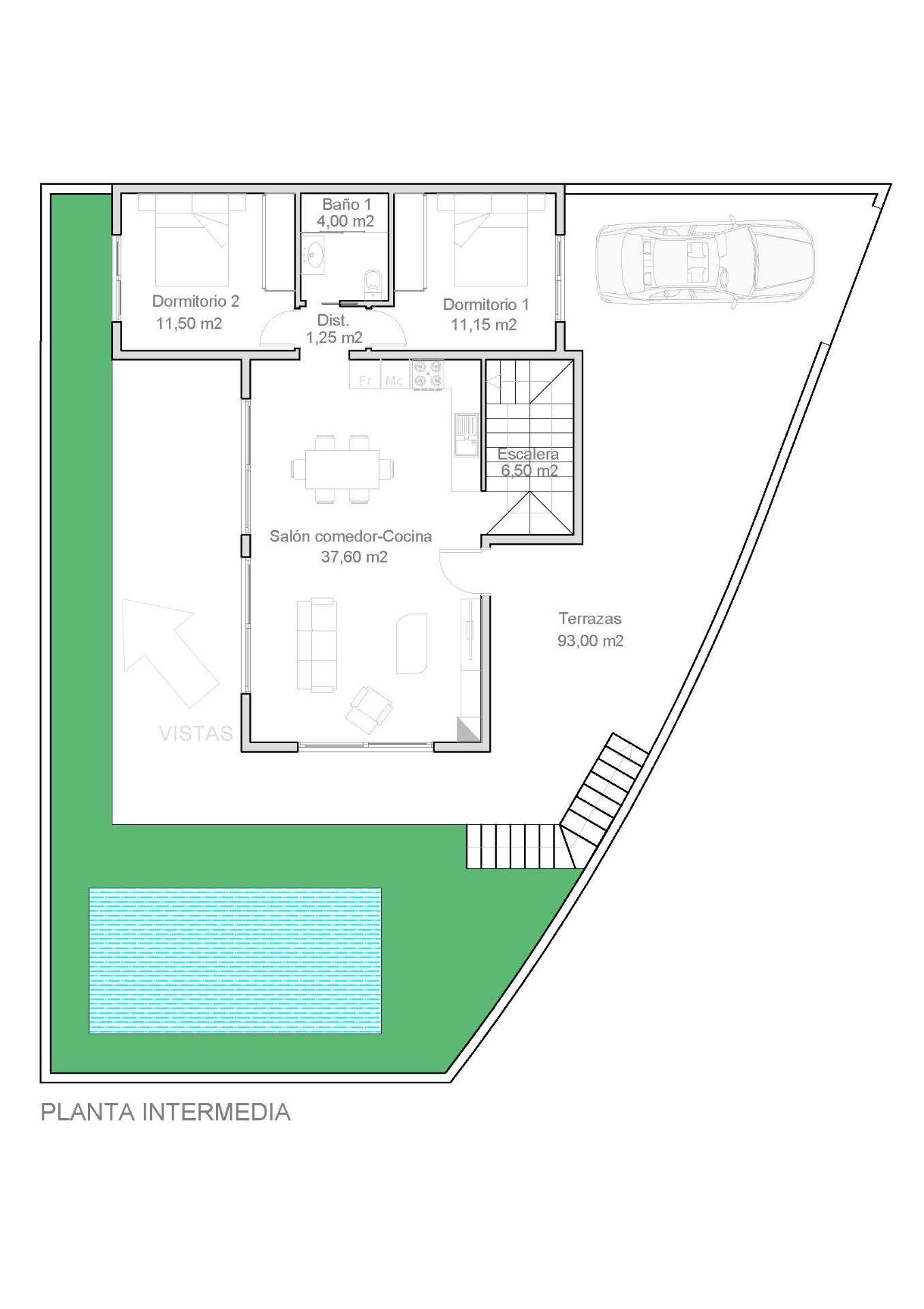
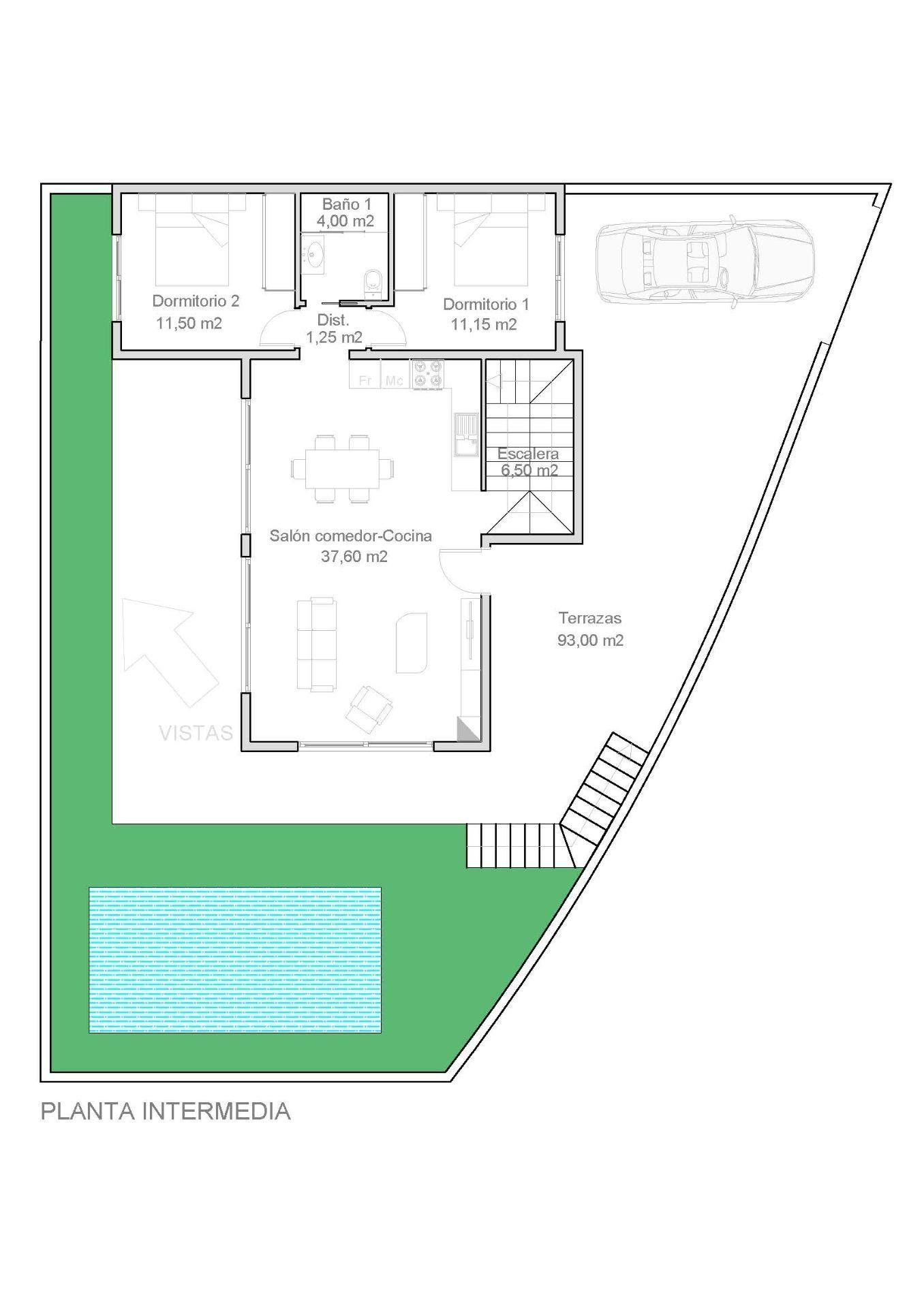
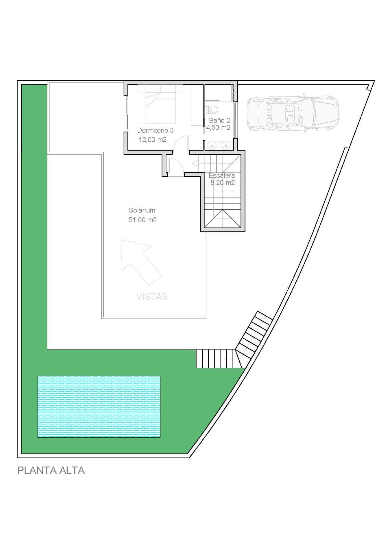
La villa a 335 m2 de surface de terrain, 433 m2 de surface construite, répartis sur 3 étages, l’un d’eux étant un semi-sous-sol diaphane de 126 m2. La villa dispose de 3 chambres et 2 salles de bains. La piscine de 3×6 m et les grandes terrasses dans le jardin et la piscine vous permettront de profiter du soleil et du climat de la Costa Blanca tout au long de l’année. De plus, la villa dispose d’un solarium et d’un grand parking.
Vivez dans une grande villa moderne, profitant du golf, de la plage, du climat et du style de vie méditerranéen !























































